

作品包括:
word版本说明书一份,共29页,约10000字
CAD版本图纸,共13张
前 言 4
一、概述 5
1.1 塑料工业简介 5
1.2 我国塑料模现状 6
1.3 塑料模发展趋势 7
二、塑件材料的选择 8
2.1 一般塑料的组成 8
2.2 吊扇开关盒ABS材料的选择 8
2.3 聚氯乙烯的性能 9
三、塑件结构、尺寸及精度 10
3.1尺寸精度 10
3.2脱模斜度 10
3.3 壁厚 10
3.4 表面粗糙度 10
四、 注射机的选择及校核 12
4.1 锁模力的校核 13
4.2注射压力的校核 13
4.3 其它尺寸校核 14
五、成型总体方案 14
5.1 塑件性能分析 14
5.2 注射模结构设计 15
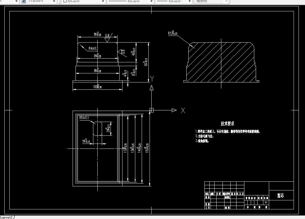
六、 成型部份设计 15
6.1型腔数的确定 16
6.2 分型面的设计 16
6.3 一般凹模机构设计 16
6.4 一般凸模结构设计 17
6.5 型腔壁厚计算 17
6.6 成型工作尺寸计算及脱模斜度的计算 17
6.7 成型表面要求 19
6.8 成型材料及材性要求 19
七、浇注系统设计 19
7.1 主流道设计 19
7.2 分流道设计 20
7.3 浇口设计 21
7.4 冷料穴和拉料杆设计 22
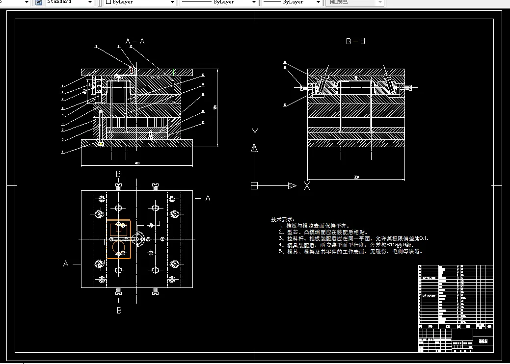
八、推出机构设置 23
8.1推出机构的结构组成 23
8.2 推杆推出机构 23
8.3 推出机构中附属零部件 23
九、合模导向机构设计 25
9.1 导向机构的作用 25
9.2导柱导向机构 25
十、模具温度调节系统计 26
10.1 冷却装置设计要点。 26
10.2 冷却水道的形式 27
10.3 冷却管传热面积计算式为 27
总结 29
参考文献 29
塑料注塑模具设计
摘要:塑料工业是当今世界上增长最快的工业门类之一,而注塑模具是其中发展较快的种类,因此,研究注塑模具对了解塑料产品的生产过程和提高产品质量有很大意义。
本设计介绍了注射成型的基本原理,特别是单分型面注射模具的结构与工作原理,对注塑产品提出了基本的设计原则;详细介绍了冷流道注射模具浇注系统、温度调节系统和顶出系统的设计过程,并对模具强度要求做了说明;最后介绍了当今世界上最为普及的三维CAD/CAM系统标准软件PRO/ENGNEER的PROGRAM模块,对导柱和导套进行了参数化设计。
通过本设计,可以对注塑模具有一个初步的认识,注意到设计中的某些细节问题,了解模具结构及工作原理;通过对PROGRAM的学习,可以建立较简单零件的零件库,从而有效的提高工作效率。
关键词:塑料模具;参数化;镶件;分型面
温馨提示:
1、题目前面的备注【字母数字编号】为本站整理分类的编号,与课题内容无关,请选题时忽视;
2、若题目上备注三维,则表示文件里包含三维源文件,由于三维组成零件数量较多,为保证预览截图的简洁性,本站将三维文件夹进行了打包。三维及CAD预览截图,均为本站电脑打开软件进行截图的,保证能够打开,下载原件超高清,下载后解压即可;
3、本站所有资源如无特殊说明,都需要本地电脑安装Office2007。图纸软件为AutoCAD,PROE,UG,SolidWorks,CATIA等;
4、本站所有图文资料仅供用户学习参考,不作为任何商用或其他用途;
5、本站不保证下载资源的准确性、安全性和完整性, 不包修改,不支持退换,同时也不承担用户因使用这些下载资源对自己和他人造成任何形式的伤害或损失;
6、 下载文件中如有侵权或不适当内容,请与我们联系,我们立即纠正。