

作品包括:
说明书1份,共42页,约14000字左右
CAD版本本图纸,共14张
三维图纸一份
毕业设计说明书(论文)中文摘要
摘要
塑料工业是当今世界上增长最快的工业门类之一,而注塑模具是其中发展较快的种类。因此研究注塑模具对了解塑料产品的生产过程和提高产品质量有很大意义。
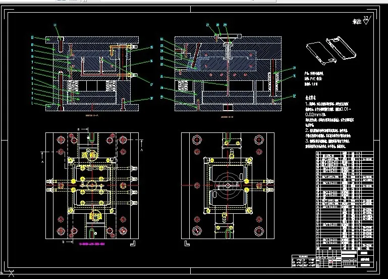
本设计介绍了注射成型的基本原理,特别是侧向分型与抽芯机构的结构与工作原理,并对注塑产品提出了基本的设计原则。详细介绍了注射模具的材料及工艺分析,浇注系统、主要零部件、侧向分型与抽芯机构、推出机构、温度调节系统和排气系统的设计过程,并对模具各参数选取和校核做相应说明。本设计利用Auto CAD和世界最先进的三维CAD/CAM软件UG,对导柱、导套及各标准件和标准模架进行了参数化设计。
关键词:塑料模具;参数化;镶件;分型面;成型
目 录
引 言 6
第1章 绪 论 7
1.1 模具介绍 7
1.2 模具在加工工业中的地位 7
1.3 模具的发展趋势 7
1.4 设计在学习模具专业中的作用 8
第2章 产品及模具的三维造型 9
第3章 塑件材料分析和工艺性分析 11
3.1 材料分析 11
3.2 工艺分析 11
第4章 拟定的成型工艺 13
4.1 塑件的成型方法 13
4.2 塑件的成型参数 13
4.3 确定型腔数目 13
第5章 浇注系统的设计 15
5.1塑件在模具中的位置 15
5.1.1型腔的布置 15
5.1.2分型面的选择 15
5.2 浇口的设计 15
5.3 主流道的设计 16
5.4 分流道设计 17
5.5 冷料穴设计 18
第6章 成型零部件的设计 19
6.1 成型零部件的结构设计 19
6.2 成型零部件工作尺寸计算 20
6.3 成型零部件的强度与刚度计算 22
第7章 结构零部件的设计 23
7.1 选用标准注射模架 23
7.1.1初选注射机 23
7.1.2选标准模架 24
7.2 支承零部件的设计 24
7.3 定模板与动模板的设计 25
7.4 合模导向机构的设计 25
第8章 推出机构的设计 27
第9章 侧向分型与抽芯机构设计 30
9.1 计算斜导柱倾斜角 30
9.2 计算斜导柱直径 30
9.3 计算斜导柱长度 31
第10章 温度调节系统设计 32
1.01冷却系统的设计原则 32
10.2 冷却水体积流量 32
10.3冷却管道直径的确定 33
10.4 冷却回路所需的总表面积 33
10.5 冷却回路的总长度 33
10.6 冷却水道的结构 33
第11章 排气系统设计 35
第12章 注塑机参数校核 35
12.1 最大注射量、锁模力、注射压力、模具厚度的校核 35
12.2 开模行程的校核 35
12.3 模具与注射机安装相关部分尺寸校核 35
第13章 绘制图纸并编写技术文件 36
13.1绘制各非标准零件图纸 36
13.2编写加工工艺和装配技术 37
设计总结 40
致谢 41
参考文献 42
温馨提示:
1、题目前面的备注【字母数字编号】为本站整理分类的编号,与课题内容无关,请选题时忽视;
2、若题目上备注三维,则表示文件里包含三维源文件,由于三维组成零件数量较多,为保证预览截图的简洁性,本站将三维文件夹进行了打包。三维及CAD预览截图,均为本站电脑打开软件进行截图的,保证能够打开,下载原件超高清,下载后解压即可;
3、本站所有资源如无特殊说明,都需要本地电脑安装Office2007。图纸软件为AutoCAD,PROE,UG,SolidWorks,CATIA等;
4、本站所有图文资料仅供用户学习参考,不作为任何商用或其他用途;
5、本站不保证下载资源的准确性、安全性和完整性, 不包修改,不支持退换,同时也不承担用户因使用这些下载资源对自己和他人造成任何形式的伤害或损失;
6、 下载文件中如有侵权或不适当内容,请与我们联系,我们立即纠正。