

作品包括:
说明书1份,共33页,约13000字左右
CAD版本本图纸,共12张
摘要
本设计的题目为衬板冲压工艺及模具设计,体现了薄板类冲裁零件的要求、内容及方向,有一定的设计意义。通过对该零件模具的设计,进一步加强了本人冲压模设计的基础知识,为设计更复杂的冲压模具做好了铺垫和吸取更深刻的经验。
本设计运用冲压成型工艺及模具设计的基础知识,首先分析了冲裁件的冲压工艺性,为确定冲裁工艺方案做好了准备;然后计算冲裁力和模具刃口尺寸,便于选取压力机及确定工作零件的尺寸和结构;最后分析了制件的特征,确定模具的设计参数、设计要点及推件装置的选取。
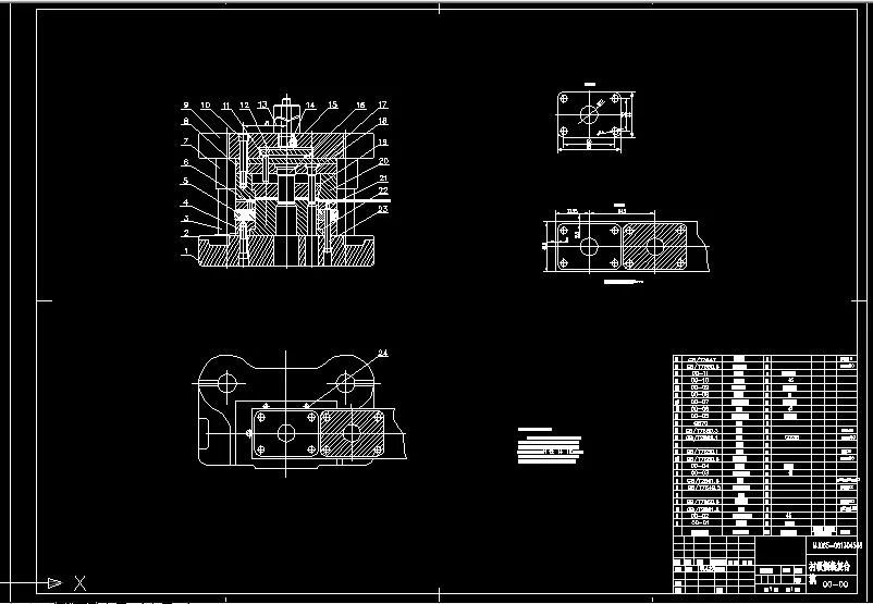
本冲裁件上孔为非规则形状的孔,为了便于冲孔凸模的加工,所以在设计时把冲孔凸模设计成直通式,然后,将其铆接在凸模固定板上。此外,该制件的尺寸较大,为保证凹模的加工精度,在设计时应将其设计成凹模组件。为了方便制件的取出,本副模具采用倒装结构形式,同时,为了简化模具结构采用弹性推件装置。
关键词 冲压模 倒装复合 凹模组件 弹性推件
目 录
1 绪 论…………………………………………………………………1
1.1 冲压的概念,特点及应用……………………………………………1
1.2 国内模具的现状方向以及冲压技术现状及发展方向………………2
1.2.1国内模具的现状………………………………………………………2
1.2.2国内模具的发展趋势…………………………………………………3
1.2.3冲压标准化及专业化生产方面趋势…………………………………4
1.3 衬板冲孔落料模具设计与制造方面…………………………………5
1.3.1衬板冲孔落料模具设计的设计思路…………………………………5
1.3.2衬板冲压模具设计的进度……………………………………………5
2 衬板的冲压工艺性分析………………………………………………6
3 分析比较和确定工艺方案……………………………………………7
4 模具结构型式的选择…………………………………………………8
4.1 模具结构型式…………………………………………………………8
4.2 推件装置………………………………………………………………8
4.3 卸料装置………………………………………………………………8
4.4 导向装置………………………………………………………………8
4.5 定位装置………………………………………………………………9
5 工艺计算………………………………………………………………10
5.1 排样设计及毛坯尺寸计算…………………………………………10
5.1.1 确定零件的排样方案………………………………………………10
5.1.2 条料宽度、导尺间宽度的计算……………………………………10
5.1.3材料利用率的计算…………………………………………………11
5.2 冲裁工序总力的计算………………………………………………11
5.3 初选压力机…………………………………………………………13
5.4 压力中心的计算……………………………………………………13
5.5 确定凸凹模间隙,计算凸凹刃口尺寸………………………………14
5.5.1 凸凹模刃口尺寸的计算基本原则…………………………………14
5.5.2 凸凹模具间隙的确定………………………………………………14
5.5.3 落料凸凹模刃口尺寸计算…………………………………………15
5.5.4 落料凸凹模尺寸计算………………………………………………17
6 设计、选用模具零部件………………………………………………19
6.1 冲孔凸模的设计……………………………………………………19
6.1.1冲大圆孔凸模的设计………………………………………………19
6.1.2冲小圆形孔凸模的设计……………………………………………20
6.2 落料凹模的设计……………………………………………………22
6.2.1 落料凹模的刃口型式………………………………………………22
6.2.2落料凹模外形尺寸的确定…………………………………………22
6.2.3 落料凹模的结构形式及固定方式…………………………………23
6.3 凸凹模的设计…………………………………………………………24
6.4 定位零件的设计与选用………………………………………………26
6.4.1 挡料销的选用………………………………………………………26
6.5 卸料与推件零件的选用………………………………………………26
6.5.1 推杆和顶干的选用…………………………………………………26
6.5.2 推件块的设计………………………………………………………26
6.5.3卸料螺钉的选用……………………………………………………26
6.5.4卸料板的设计………………………………………………………27
6.6 导向零件的选用………………………………………………………27
6.7 固定零件的选用………………………………………………………28
6.8 弹性元件的选用………………………………………………………28
6.9 模架的及模柄选用……………………………………………………28
7 模具总装图……………………………………………………………29
7.1 模具总装图…………………………………………………………29
7.2 冲压设备的确定………………………………………………………30
8 结束语…………………………………………………………………31
致谢…………………………………………………………………………32
参考文献…………………………………………………………………33
温馨提示:
1、题目前面的备注【字母数字编号】为本站整理分类的编号,与课题内容无关,请选题时忽视;
2、若题目上备注三维,则表示文件里包含三维源文件,由于三维组成零件数量较多,为保证预览截图的简洁性,本站将三维文件夹进行了打包。三维及CAD预览截图,均为本站电脑打开软件进行截图的,保证能够打开,下载原件超高清,下载后解压即可;
3、本站所有资源如无特殊说明,都需要本地电脑安装Office2007。图纸软件为AutoCAD,PROE,UG,SolidWorks,CATIA等;
4、本站所有图文资料仅供用户学习参考,不作为任何商用或其他用途;
5、本站不保证下载资源的准确性、安全性和完整性, 不包修改,不支持退换,同时也不承担用户因使用这些下载资源对自己和他人造成任何形式的伤害或损失;
6、 下载文件中如有侵权或不适当内容,请与我们联系,我们立即纠正。