

作品包括:
word说明书一份,共39页,约17000字
任务书一份
开题报告一份
外文翻译一份
CAD版本图纸,共14张
摘 要
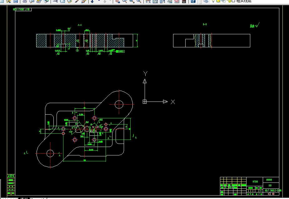
本设计为一止转垫板的冷冲压连续模具设计,根据设计零件的尺寸、材料、批量生产等要求,首先分析零件的工艺性,确定冲裁工艺方案及模具结构方案,然后通过工艺设计计算,确定排样和裁板,计算冲压力和压力中心,冲孔、落料压力,初选压力机,计算凸、凹模刃口尺寸和公差,最后设计选用零、部件,对压力机进行校核,绘制模具总装草图,以及对模具主要零件的加工工艺规程进行编制。其中在结构设计中,主要对落料凸模、凹模、凸凹模、定位零件、卸料与出件装置、模架、冲压设备、紧固件等进行了设计,对于部分零部件选用的是标准件,并且在结构设计的同时,对部分零部件进行了加工工艺分析,最终才完成这篇毕业设计。本次对止转垫板进行的连续模设计,利用CAXA软件对制件进行设计绘图。明确了设计思路,确定了冲压成型工艺过程并对各个具体部分进行了详细的计算和校核。如此设计出的结构可确保模具工作运用可靠,保证了与其他部件的配合。并绘制了模具的装配图和零件图。
关键词:止转垫板;冲压工艺;排样;连续模
目 录
摘 要III
ABSTRACTIV
目 录V
1 绪论1
1.1本课题的研究内容和意义1
1.2国内外的发展概况1
1.2.1 国外模具发展概况1
1.2.2国内模具发展概况2
1.3本课题应达到的要求3
2 冲压工艺设计4
2.1 冲压件简介4
2.2 冲压的工艺性分析4
2.3 冲压工序5
2.4冲裁间隙5
2.5 冲压工艺方案的确定6
3 止转垫板连续模设计7
3.1 模具结构7
3.2 确定其搭边值8
3.3 确定排样图8
3.4 材料利用率计算9
3.5 凸、凹模刃口尺寸的确定9
3.5.1 落料部份凸、凹模刃口尺寸的确定9
3.5.2 冲4个小孔凸、凹模刃口尺寸的确定10
3.5.3 中间大孔凸、凹模刃口尺寸的确定12
3.6 冲压力计算12
3.6.1 落料部分冲压力13
3.6.2 冲孔部分冲压力13
3.6.3 侧刃部分冲压力14
3.6.4 总冲压力14
3.7压力机选用14
3.8 压力中心计算15
3.9 模具主要零部件的结构设计15
3.9.1 凹模结构及设计16
3.9.2 小凸模1设计17
3.9.3 小孔凸模2设计18
3.9.4 落料凸模设计18
3.9.5 中间大孔凸模设计19
3.9.6 卸料板设计20
3.9.7 凸模固定板设计21
3.9.8 凸模垫板设计21
3.9.9 侧刃设计22
3.9.10 侧刃挡块设计23
3.9.11 前侧导板设计23
3.9.12 后侧导板设计24
3.10 标准件确定24
3.10.1 模架确定24
3.10.2 上模螺钉确定24
3.10.3 上模销确定25
3.10.4 下模螺钉确定25
3.10.5 下模销确定25
3.10.6 卸料螺钉确定25
3.10.7 弹性元件设计25
3.10.8 模柄确定26
3.10.9 模柄上止转销的确定26
3.11 模具闭合高度、校验压力机26
4 结论与展望27
4.1 结论27
4.2 不足之处及未来展望27
致 谢28
参考文献29
温馨提示:
1、题目前面的备注【字母数字编号】为本站整理分类的编号,与课题内容无关,请选题时忽视;
2、若题目上备注三维,则表示文件里包含三维源文件,由于三维组成零件数量较多,为保证预览截图的简洁性,本站将三维文件夹进行了打包。三维及CAD预览截图,均为本站电脑打开软件进行截图的,保证能够打开,下载原件超高清,下载后解压即可;
3、本站所有资源如无特殊说明,都需要本地电脑安装Office2007。图纸软件为AutoCAD,PROE,UG,SolidWorks,CATIA等;
4、本站所有图文资料仅供用户学习参考,不作为任何商用或其他用途;
5、本站不保证下载资源的准确性、安全性和完整性, 不包修改,不支持退换,同时也不承担用户因使用这些下载资源对自己和他人造成任何形式的伤害或损失;
6、 下载文件中如有侵权或不适当内容,请与我们联系,我们立即纠正。