

作品包括:
Word版设计说明书1份,共41页,约13000字
外文翻译一份
开题报告一份
CAD版本图纸,共11张
复印机小端盖注塑模具设计
摘 要
塑料工业是当今世界上增长最快的工业门类之一,而注射模具是其中发展较快的一种。因此,研究注射模具对了解塑料产品的生产过程和提高产品质量有很大意义。
本文主要是设计复印机小端盖的注射模具,论述了注射成型的基本原理,特别是单分型面注射模具的结构设计,详细介绍了注射模具的成型工艺及设备选择、浇注系统、抽芯机构和成型零部件的设计过程,并对模具制造工艺要求做了说明,最后通过CAD软件绘制出模具图。
通过本设计,可以对注射模具有一个初步的认识,注意到设计中的细节问题,了解模具结构及工作原理,系统的复习了大学四年所学的专业知识。
关键词:注射模具;注射成型工艺;模具设计;分型面
目 录
1 绪论 1
1.1 题目的背景和意义 1
1.2 国内外模具工业的发展状况 1
1.3 塑料模具发展走势 2
1.4 课题研究的意义及主要研究内容 2
2 复印机小端盖的工艺性分析 4
2.1 塑件的材料与结构分析 4
2.1.1 塑件的体积及质量计算 4
2.1.2 塑件的结构与材料 5
2.2 塑件的尺寸精度及表面质量 7
2.2.1 塑件的尺寸精度 7
2.2.2 塑件的表面质量 7
2.3 工艺性分析 7
3 注塑模具结构设计 8
3.1 分型面的确定 8
3.2 浇口的确定 10
3.3 型腔数目的确定 11
3.4 浇注系统设计 12
3.4.1 主流道 12
3.4.2 分流道 13
3.4.3 浇口的设计 13
3.4.4 浇口套的形式及固定方式 14
3.5 成型零部件设计 14
3.5.1 成型零部件结构设计 15
3.5.2 成型零件工作尺寸计算 18
3.6 导向零件的设计 19
3.7 抽芯机构和顶出机构的设计 21
3.7.1 抽芯机构的设计 21
3.7.2 顶出机构的设计 22
3.8 脱模结构的设计 24
3.8.1 脱模力的计算 24
4 冷却设计及排气系统 26
4.1 冷却水道热传面积 26
4.1.1 塑料传给模具的热量 26
4.1.2 冷却水的体积流量 26
4.1.3 冷却水道热传面积 27
4.2 排气系统的设计 27
5 注射机的选择及校核 28
5.1 选择注射机 28
5.2 注射机的校核 28
5.2.1 注射压力的校核 29
5.2.2 最大注射量的校核 30
5.2.3 锁模力的校核 30
5.2.4 喷嘴尺寸校核 30
5.2.5 注射机固定模板定位孔与模具定位圈的关系 31
5.2.6 模具外形尺寸校核 31
5.2.7 模具的安装紧固 31
5.3 本章小结 31
6 模具材料的选择 32
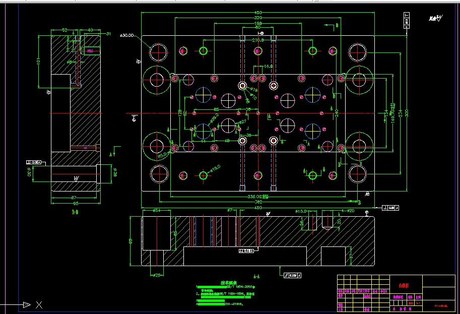
7 模具装配图及制造工艺 33
7.1 模具装配图 33
7.2 模具制造工艺 35
7 模具可行性分析 36
8.1 本模具的特点 36
8.2 市场效益及经济效益分析 36
9 结论 37
致谢 38
参考文献 39
毕业设计(论文)知识产权声明 40
毕业设计(论文)独创性声明 41
附录 42
温馨提示:
1、题目前面的备注【字母数字编号】为本站整理分类的编号,与课题内容无关,请选题时忽视;
2、若题目上备注三维,则表示文件里包含三维源文件,由于三维组成零件数量较多,为保证预览截图的简洁性,本站将三维文件夹进行了打包。三维及CAD预览截图,均为本站电脑打开软件进行截图的,保证能够打开,下载原件超高清,下载后解压即可;
3、本站所有资源如无特殊说明,都需要本地电脑安装Office2007。图纸软件为AutoCAD,PROE,UG,SolidWorks,CATIA等;
4、本站所有图文资料仅供用户学习参考,不作为任何商用或其他用途;
5、本站不保证下载资源的准确性、安全性和完整性, 不包修改,不支持退换,同时也不承担用户因使用这些下载资源对自己和他人造成任何形式的伤害或损失;
6、 下载文件中如有侵权或不适当内容,请与我们联系,我们立即纠正。