

作品包括:
Word版说明书1份,共38页,12000字
任务书一份
CAD版本图纸,共13张
UG三维图一份

摘要
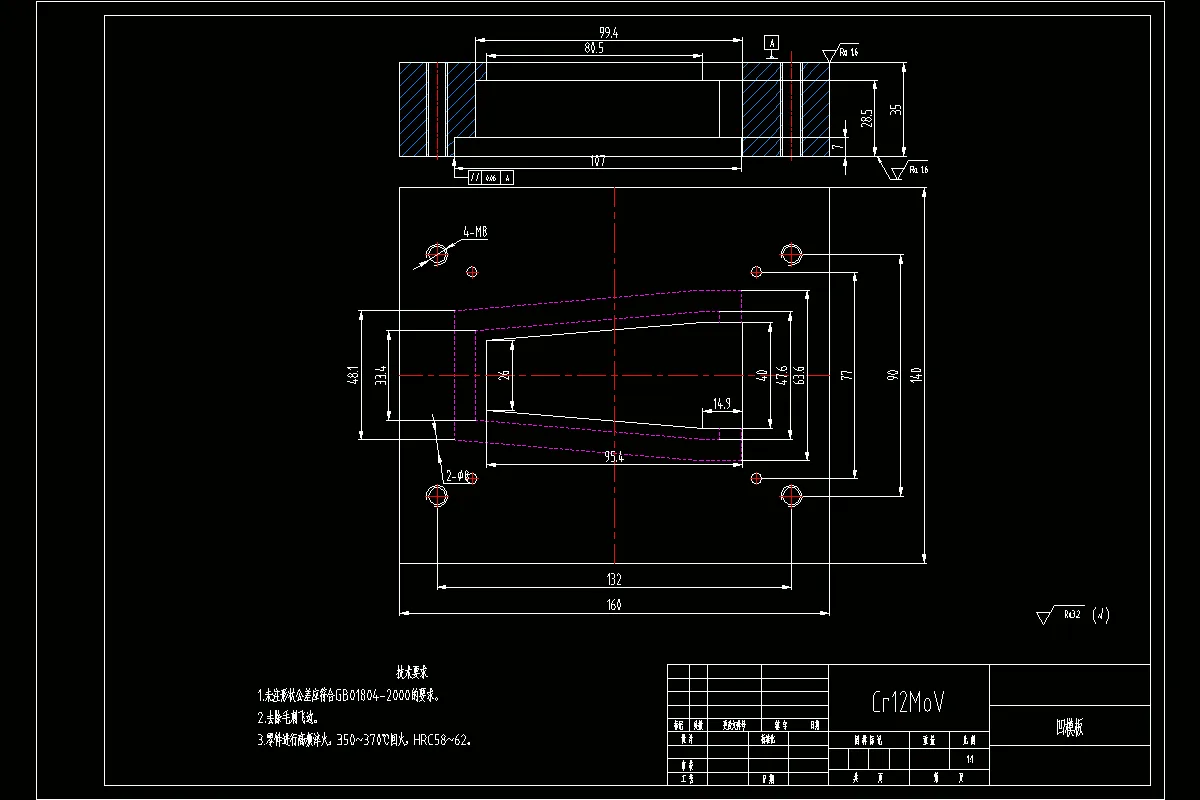
盖板是用于零部件安装中的连接和垫片的作用,本次设计的是冲裁内部圆孔和外周的落料的冲压工艺特征。设计主要结合冲压成形中的冲孔和落料的特征进行的,针对批量化的生产方式,采用复合模具完成盖板的落料冲孔特。
盖板落料冲孔模具的设计,首先以产品的工艺性分析展开,确定了盖板产品可以采用常规的倒装复合模具的结构完成,这种模具结构废料可以直接从凸凹模的型腔的内孔落下,便于操作。在具体的参数设计环节,首先确定了冲裁相关的作用力,完成了压力设备的拟定和工作刃口的参数计算。模具设计环节,从整体结构布置开始,完成了凹模参数的计算,凸模参数的计算,凸凹模尺寸结构的确定,及其它模具零部件的设计和计算,并在这个基础上确定了后侧导柱的模架的形式,并最终完成了盖板落料模装配图的绘制和J23-40冲压设备的校核,经过验证,压力机参数符合冲裁要求。该盖板冲孔落料模冲裁质量较好,产品的经济性也可以得到保障。
关键词:盖板;复合模具;冲孔落料;冲压工艺;弯曲
目录
1绪论1
1.1设计的目的和意义1
1.2冲模技术研究概况1
1.3冲模技术发展趋势2
1.4设计的工作内容3
2工艺性分析及排样设计4
2.1产品结构分析4
2.2冲裁工艺性分析4
2.3冲裁工艺方案的确定5
2.4毛坯参数的确定6
2.5下料尺寸的确定7
2.6排样图的设计8
3冲裁参数的计算11
3.1冲压力的计算11
3.2卸料力和推件力11
3.3压力设备拟定12
3.4压力中心的确定12
3.5工作刃口尺寸的计算13
4模具零部件设计16
4.1模具结构的布置16
4.2凹模结构的设计16
4.3冲孔凸模结构的设计18
4.4凸凹模结构的设计19
4.5顶件块的设计21
4.6固定板的设计21
4.7卸料板结构的设计23
4.8垫板选用24
4.9模架结构的确定25
5模具的装配图27
5.1模具装配图27
5.2模具闭合高度确定28
5.3冲压设备的校核28
5.4模具的运动过程简述29
结论31
参考文献32
致谢34
温馨提示:
1、题目前面的备注【字母数字编号】为本站整理分类的编号,与课题内容无关,请选题时忽视;
2、若题目上备注三维,则表示文件里包含三维源文件,由于三维组成零件数量较多,为保证预览截图的简洁性,本站将三维文件夹进行了打包。三维及CAD预览截图,均为本站电脑打开软件进行截图的,保证能够打开,下载原件超高清,下载后解压即可;
3、本站所有资源如无特殊说明,都需要本地电脑安装Office2007。图纸软件为AutoCAD,PROE,UG,SolidWorks,CATIA等;
4、本站所有图文资料仅供用户学习参考,不作为任何商用或其他用途;
5、本站不保证下载资源的准确性、安全性和完整性, 不包修改,不支持退换,同时也不承担用户因使用这些下载资源对自己和他人造成任何形式的伤害或损失;
6、 下载文件中如有侵权或不适当内容,请与我们联系,我们立即纠正。