

作品包括:
Word版说明书1份,共32页,约9600字
CAD版本图纸,共10张
UG三维图一份


摘要
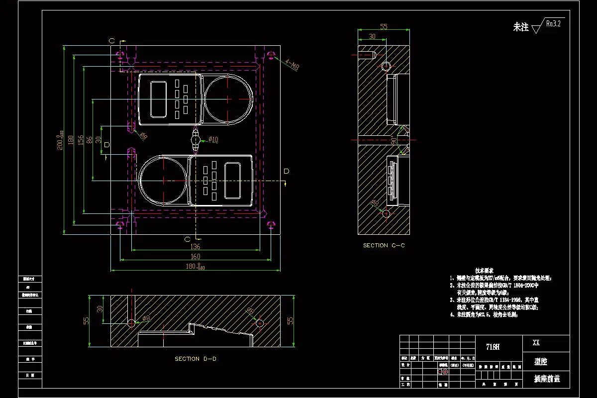
根据智能插座前盖塑料制品的要求,了解塑件的用途,分析塑件的工艺性、尺寸精度等技术要求,考量塑件制件尺寸。本模具采用一模两腔,潜伏式进胶口搭底进料,注射机采用海天HTF300XB型号,设置冷却系统,CAD和3D绘制二维总装图和零件图,选择模具合理的加工方法。附上说明书,系统地运用简要的文字,简明的示意图和和计算等分析塑件,从而作出合理的注塑模具设计。
关键字:智能插座前盖;一模两腔;注射机;海天HTF300XB;冷却系统;注塑模具
目录
摘要I
Abstract II
第一章绪论- 1-
第二章注塑工艺分析及成型方法- 2-
2.1智能插座前盖塑件分析- 2-
2.1.1材料分析- 3-
2.1.2塑件的结构及成型工艺分析- 3-
2.2材料ABS的注射成型过程及工艺参数- 4-
2.2.1注射成型过程- 4-
2.2.2材料ABS的注塑成型参数- 4-
2.2.3材料ABS性能- 5-
第三章注塑模具结构设计- 7-
3.1拟定模具结构设计- 7-
3.1.1分型面位置的确定- 7-
3.1.2确定型腔数量及排列方式- 8-
3.1.3模具结构形式的确定- 9-
3.1.4注射机型号的确定- 9-
3.1.5注塑机的参数较核- 11-
3.2浇注系统、关键零部件设计- 13-
3.2.1浇注系统形式和浇口的设计- 13-
3.2.2成型零件设计- 16-
3.2.3排气系统的设计- 18-
3.2.4温度调节系统设计- 18-
3.2.5脱模机构的设计- 21-
第四章总结- 26-
4.1模具设计过程体会- 26-
4.2设计存在问题及解决设想- 26-
第五章注塑模具工作原理- 27-
参考文献- 28-
致谢- 29-
温馨提示:
1、题目前面的备注【字母数字编号】为本站整理分类的编号,与课题内容无关,请选题时忽视;
2、若题目上备注三维,则表示文件里包含三维源文件,由于三维组成零件数量较多,为保证预览截图的简洁性,本站将三维文件夹进行了打包。三维及CAD预览截图,均为本站电脑打开软件进行截图的,保证能够打开,下载原件超高清,下载后解压即可;
3、本站所有资源如无特殊说明,都需要本地电脑安装Office2007。图纸软件为AutoCAD,PROE,UG,SolidWorks,CATIA等;
4、本站所有图文资料仅供用户学习参考,不作为任何商用或其他用途;
5、本站不保证下载资源的准确性、安全性和完整性, 不包修改,不支持退换,同时也不承担用户因使用这些下载资源对自己和他人造成任何形式的伤害或损失;
6、 下载文件中如有侵权或不适当内容,请与我们联系,我们立即纠正。