

作品包括:
Word版说明书1份,共36页,约16000字
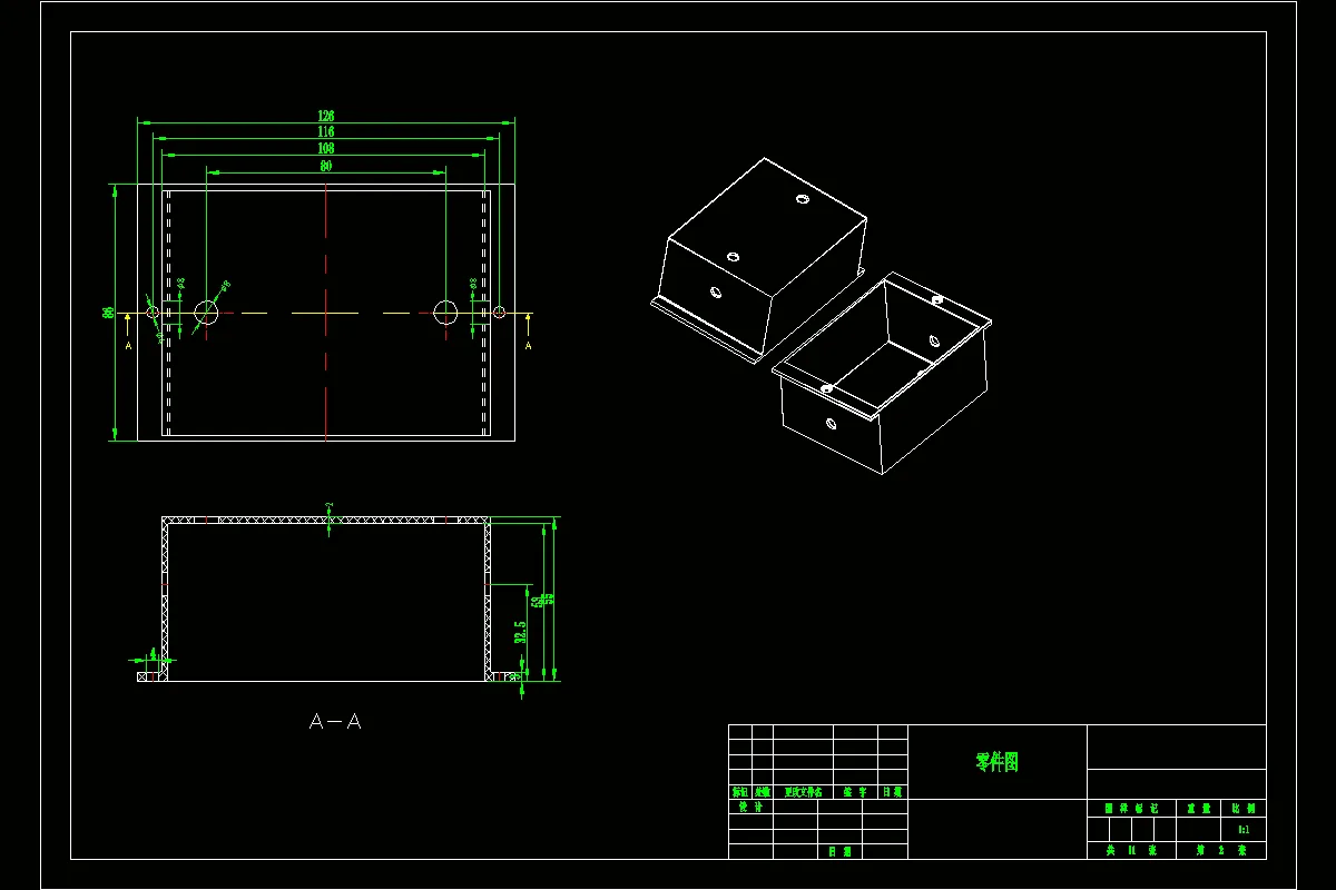
CAD版本图纸,共13张
UG三维图一份


摘要
现代社会,不管是国内还是国外,经济的发展都是相当的快,针对塑料模的设计,在实际的应用还有关于它的研究都是很广泛的,这篇不仅对产品的性能还有功能都非常了解,对于产品的工艺还有大小要求都是非常高的,关于这些在里面都进行了分析。
根据塑料制品的要求,了解塑件的用途,分析塑件的工艺性、尺寸精度等技术要求,选择塑件制件尺寸。本模具采用一模二件,侧浇口进料,注射机采用海天330XC型号,设置冷却系统,CAD绘制二维总装图和零件图,UG绘制3D模具图,选择模具合理的加工方法。对侧孔进行抽芯。在对模具进行设计的时候,主要设计的东西有,设计笔盖,确定笔盖的材质,确定注塑机的类型,设计分型面,设计型腔,设计浇筑系统,对型腔的大小进行计算,对型芯的大小进行计算,将图纸画出来等等。我们这篇在对塑料产品的外形,大小还有精确度分析之后,确定了注射加工的工艺,设计了抽芯装置。在分析的时候,着重关注了模具的整体受到的负荷,设计出模具的退出装置,合模装置,冷却系统还有排气系统,将一个总的装配图还有零部件的图纸画出来。在进行设计的时候,一定要确保模具的构造不能复杂,要合理,要紧凑,在进行工作的时候可靠性要高,在进行工作的时候可以全自动进行。附上说明书,系统地运用简要的文字,简明的示意图和和计算等分析塑件,从而作出合理的模具设计。
关键词:方形盒;模具设计;二维图;注射机选择:侧抽
目录
摘要I
Abstract III
第1章绪论1
1.1塑料简介1
1.2注塑成型及注塑模1
第2章塑料材料分析3
2.1塑料材料的基本特性3
2.2塑件材料成型性能3
2.3塑件材料主要用途3
第3章塑件的工艺分析3
3.1塑件的结构设计4
3.2塑件尺寸及精度5
3.3塑件表面粗糙度6
3.4塑件的体积和质量6
第4章注射成型工艺方案及模具结构的分析和确定7
4.1、注射成型工艺过程分析[5] 7
4.2浇口种类的确定8
4.3型腔数目的确定8
4.4注射机的选择和校核8
4.4.1注射量的校核9
4.4.2塑件在分型面上的投影面积与锁模力的校核10
4.4.3、模具与注射机安装模具部分相关尺寸校核10
第5章注射模具结构设计12
5.1分型面的设计12
5.2型腔的布局12
5.3浇注系统的设计13
5.3.1浇注系统组成13
5.3.2确定浇注系统的原则13
5.3.3主流道的设计14
5.3.4分流道的设计15
5.3.5浇口的设计16
5.3.6冷料穴的设计17
5.4注射模成型零部件的设计[7] 17
5.4.1成型零部件结构设计17
5.4.2成型零部件工作尺寸的计算18
5.5排气结构设计19
5.6脱模机构的设计20
5.6.1脱模机构的选用原则20
5.6.2脱模机构类型的选择20
5.6.3推杆机构具体设计20
5.7注射模温度调节系统22
5.7.1温度调节对塑件质量的影响22
5.8.2冷却系统之设计规则23
5.9模架及标准件的选用24
5.9.1模架的选用24
第6章模具材料的选用26
6.1成型零件材料选用26
6.2注射模用钢种26
第7章总结28
附录30
致谢31
参考文献32
温馨提示:
1、题目前面的备注【字母数字编号】为本站整理分类的编号,与课题内容无关,请选题时忽视;
2、若题目上备注三维,则表示文件里包含三维源文件,由于三维组成零件数量较多,为保证预览截图的简洁性,本站将三维文件夹进行了打包。三维及CAD预览截图,均为本站电脑打开软件进行截图的,保证能够打开,下载原件超高清,下载后解压即可;
3、本站所有资源如无特殊说明,都需要本地电脑安装Office2007。图纸软件为AutoCAD,PROE,UG,SolidWorks,CATIA等;
4、本站所有图文资料仅供用户学习参考,不作为任何商用或其他用途;
5、本站不保证下载资源的准确性、安全性和完整性, 不包修改,不支持退换,同时也不承担用户因使用这些下载资源对自己和他人造成任何形式的伤害或损失;
6、 下载文件中如有侵权或不适当内容,请与我们联系,我们立即纠正。