

作品包括:
Word版说明书1份,共40页,约16000字
CAD版本图纸,共9张
UG三维图一份
Proe三维图一份

摘要
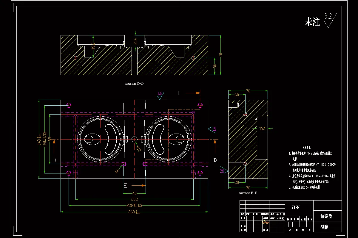
根据塑料制品的要求,了解塑件的用途,分析塑件的工艺性、尺寸精度等技术要求,选择塑件制件尺寸。本模具采用一模两腔,侧浇口进料,注射机采用海天160X2A型号,设置冷却系统,CAD和UG绘制二维总装图和零件图,选择模具合理的加工方法。附上说明书,系统地运用简要的文字,简明的示意图和和计算等分析塑件,从而作出合理的模具设计。
关键词:模具设计;CAD绘制二维图;UG绘制3D图,注射机的选择
目录
摘要I
第1章绪论5
1.1塑料简介5
1.2注塑成型及注塑模5
第2章塑料材料分析8
2.1塑料材料的基本特性8
2.2塑件材料成型性能8
2.3塑件材料主要用途9
第3章塑件的工艺分析10
3.1塑件的结构设计10
3.2塑件尺寸及精度11
3.3塑件表面粗糙度12
3.4塑件的体积和质量12
第4章13
4.1、注射成型工艺过程分析[5] 13
4.2浇口种类的确定14
4.3型腔数目的确定14
4.4注射机的选择和校核14
4.4.1注射量的校核15
4.4.2塑件在分型面上的投影面积与锁模力的校核15
4.4.3、模具与注射机安装模具部分相关尺寸校核16
第5章注射模具结构设计18
5.1分型面的设计18
5.2型腔的布局18
5.3浇注系统的设计19
5.3.1浇注系统组成19
5.3.2确定浇注系统的原则19
5.3.3主流道的设计20
5.3.4分流道的设计22
5.3.5浇口的设计22
5.3.6冷料穴的设计23
5.4注射模成型零部件的设计[7] 23
5.4.1成型零部件结构设计23
5.4.2成型零部件工作尺寸的计算25
5.5排气结构设计26
5.5.1凹模宽度尺寸的计算26
5.5.2凹模长度尺寸的计算27
5.5.3凹模高度尺寸的计算27
5.5.4凸模宽度尺寸的计算27
5.5.5凸模长度的计算27
5.5.6凸模高度尺寸的计算27
5.6脱模机构的设计27
5.6.1脱模机构的选用原则27
5.6.2脱模机构类型的选择28
5.6.3推杆机构具体设计28
5.7注射模温度调节系统29
5.7.1温度调节对塑件质量的影响30
5.7.2冷却系统之设计规则31
5.8模架及标准件的选用31
第6章36
6.1成型零件材料选用36
6.2注射模用钢种36
总结37
致谢39
温馨提示:
1、题目前面的备注【字母数字编号】为本站整理分类的编号,与课题内容无关,请选题时忽视;
2、若题目上备注三维,则表示文件里包含三维源文件,由于三维组成零件数量较多,为保证预览截图的简洁性,本站将三维文件夹进行了打包。三维及CAD预览截图,均为本站电脑打开软件进行截图的,保证能够打开,下载原件超高清,下载后解压即可;
3、本站所有资源如无特殊说明,都需要本地电脑安装Office2007。图纸软件为AutoCAD,PROE,UG,SolidWorks,CATIA等;
4、本站所有图文资料仅供用户学习参考,不作为任何商用或其他用途;
5、本站不保证下载资源的准确性、安全性和完整性, 不包修改,不支持退换,同时也不承担用户因使用这些下载资源对自己和他人造成任何形式的伤害或损失;
6、 下载文件中如有侵权或不适当内容,请与我们联系,我们立即纠正。