

作品包括:
Word版说明书1份,共33页
外文翻译一份
CAD版本图纸,共19张

摘要
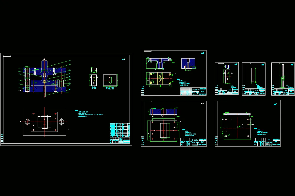
关于学校这次的设计,我设计了加工中心移门支架的坯料冲孔落料复合模一套,还有加工中心移门支架弯曲模一套,经过设计的整个课题精心制作,对我所学的模具设计与制造所有知识得到了一个全面的复习,经过查询我们的教材还有我们学校图书馆里的和我这次设计课题有关的书本,根据模具设计的相关流程进行一步一步的不折不扣制作,把我这次设计的整个设计过程给很清楚的写在这份说明书上了。
在这次设计加工中心移门支架弯曲时同样先进行了工艺的分析,工艺的计算,确定压力机型号,再将弯曲模的各主要零部件的设计表达出来。
这次设计加工中心移门支架设计说明书的第一个部分是对我这次设计课题的第一套模具,加工中心移门支架坯料的冲孔落料复合模的工艺的分析,工艺的计算,主要零部件的设计。这次加工中心移门支架设计说明书的第二部分主要是对加工中心移门支架弯曲模的工艺分析,工艺计算,主要零件的设计。这都为选择冲压设备提供重要依据。也为本次模具设计的AutoCAD装配图,以及AutoCAD主要零件图绘制提供了依据。
利用江阴职业技术学院现有的数控加工中心、普通车床、磨床、线切割机床等设备和条件对这次设计的主要零部件进行制造。
目录
摘要Ⅰ
AbstractⅡ
第一张概述1
1.1设计的目的1
1.2设计的要求1
1.3设计的注意事项1
第二章加工中心移门支架坯料工艺设计2
2.1分析加工中心移门支架坯料的工艺性2
2.2加工中心移门支架坯料的工艺计算3
第三章加工中心移门支架坯料冲孔落料复合模模具零部件设计7
3.1加工中心移门支架坯料冲孔落料复合模,冲Φ10mm孔凸模的设计7
3.2加工中心移门支架坯料冲孔落料复合模落料凹模设计8
3.3加工中心移门支架坯料冲孔落料复合模凸凹模设计8
3.4加工中心移门支架坯料冲孔落料复合模,凸模固定板设计9
3.5加工中心移门支架坯料冲孔落料复合模,凸凹模固定板设计10
3.6加工中心移门支架坯料冲孔落料复合模,推件块设计11
3.7加工中心移门支架坯料冲孔落料复合模,垫板设计12
第四章加工中心移门支架坯料冲孔落料复合模具结构设计14
4.1加工中心移门支架坯料冲孔落料复合模模架的选择14
4.2加工中心移门支架坯料冲孔落料复合模压力中心计算14
4.3加工中心移门支架坯料冲孔落料复合模模具装配图和零件的绘制14
第五章加工中心移门支架弯曲模具结构设计15
5.1加工中心移门支架的工艺分析15
5.2加工中心移门支架的工艺计算15
5.3加工中心移门支架弯曲模工作部分设计17
第六章加工中心移门支架弯曲模主要零件设计19
6.1加工中心移门支架弯曲模凸模计19
6.2加工中心移门支架弯曲模凹模设计20
6.3加工中心移门支架弯曲模顶板设计21
第七章加工中心移门支架弯曲模具结构设计22
7.1加工中心移门支架弯曲模模架的选择22
7.2加工中心移门支架弯曲模压力中心计算22
7.3加工中心移门支架弯曲模装配图和零件的绘制22
总结23
致谢24
参考文献25
温馨提示:
1、题目前面的备注【字母数字编号】为本站整理分类的编号,与课题内容无关,请选题时忽视;
2、若题目上备注三维,则表示文件里包含三维源文件,由于三维组成零件数量较多,为保证预览截图的简洁性,本站将三维文件夹进行了打包。三维及CAD预览截图,均为本站电脑打开软件进行截图的,保证能够打开,下载原件超高清,下载后解压即可;
3、本站所有资源如无特殊说明,都需要本地电脑安装Office2007。图纸软件为AutoCAD,PROE,UG,SolidWorks,CATIA等;
4、本站所有图文资料仅供用户学习参考,不作为任何商用或其他用途;
5、本站不保证下载资源的准确性、安全性和完整性, 不包修改,不支持退换,同时也不承担用户因使用这些下载资源对自己和他人造成任何形式的伤害或损失;
6、 下载文件中如有侵权或不适当内容,请与我们联系,我们立即纠正。