

作品包括:
Word版说明书1份,共25页,约9100字
任务书一份
开题报告一份
PPT答辩一份
CAD版本图纸,共7张
UG三维图一份

摘要
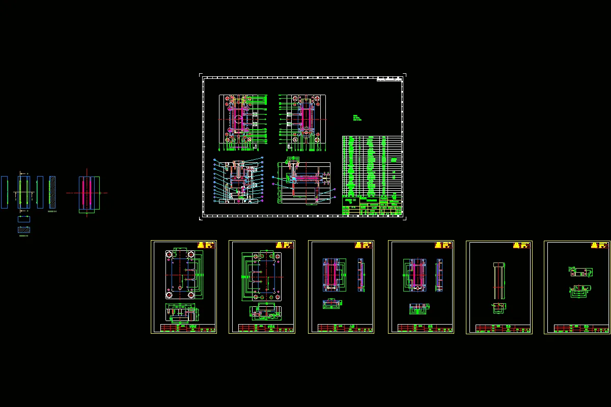
本说明书是透明圆珠笔筒注射模设计的详细设计过程,包括分析,说明,与计算过程。说明书由九章节组成,主要阐述了此模具设计的全过程。对模具的浇注系统、模具的成型部分的结构、顶出系统、冷却系统、注射机的选择及有关参数的校核,都有详细的设计说明。本次设计课题来源于生活,应用广泛,成型难度较大,模具结构较为简单。它能加强对塑料模具成型原理的理解,同时锻炼对塑料成型模具的设计和制造能力。
此次设计以透明圆珠笔筒注射模具设计为主线,综合了成型工艺分析,模具结构设计,最后到模具零件的加工方法,模具总的装配等一系列模具生产的所有过程。能很好的学习致用的效果。在设计该模具的同时总结了以往模具设计的一般方法、步骤,模具设计中常用的公式、数据、模具结构及零部件。把以前学过的基础课程融汇到综合应用本次设计当中来,所谓学以致用。在设计中除使用传统方法外,同时引用了CAD、UG画图技术,使用Office软件排版说明书,力求达到减小劳动强度,提高工作效率的目的。
目录
摘要1
Abstract 2
1概论3
2塑件的设计4
2.1塑料的材料选择4
2.1.1透明塑料的工艺特性4
2.1.2透明塑料的注塑成型工艺4
2.2.1结构分析5
2.2.2工艺性分析5
2.2.3精度等级5
3注射成型模具的设计6
3.1确定型腔数目6
3.2型芯、型腔工作部位尺寸的确定于计算6
3.3确定分型面位置7
3.4确定浇口形式及位置7
3.5型腔位置的排布8
3.6初步设计主流道及分流道形状和尺寸8
4标准模架的选用9
4.1型腔强度和刚度的计算9
4.2初选注射机10
4.2.1注射量10
4.2.2注射压力10
4.2.3锁模力10
4.2.4选择注射机型号10
4.2.5主流道衬套形式11
4.3模架的选择11
4.3.1模仁尺寸的确定12
4.3.2凹凸模版尺寸的确定12
5合模导向机构的设计13
5.1定义13
5.2合模导向机构的总体设计13
6抽芯系统的设计14
6.1定义14
6.2侧抽芯的组成14
6.3影响侧抽芯胶力的因素15
6.4侧抽芯脱模力(抽拔力)的确定15
6.5抽芯距离的确定15
6.6侧抽芯机构的分类16
7推出机构的设计16
7.1推出机构16
7.2顶出机构的设计16
8温度调节系统的设计18
8.1定义18
8.2温度调节对塑件质量的影响18
8.3对温度调节系统的要求19
8.4冷却系统设计19
9排气系统的设计20
结论21
参考文献22
温馨提示:
1、题目前面的备注【字母数字编号】为本站整理分类的编号,与课题内容无关,请选题时忽视;
2、若题目上备注三维,则表示文件里包含三维源文件,由于三维组成零件数量较多,为保证预览截图的简洁性,本站将三维文件夹进行了打包。三维及CAD预览截图,均为本站电脑打开软件进行截图的,保证能够打开,下载原件超高清,下载后解压即可;
3、本站所有资源如无特殊说明,都需要本地电脑安装Office2007。图纸软件为AutoCAD,PROE,UG,SolidWorks,CATIA等;
4、本站所有图文资料仅供用户学习参考,不作为任何商用或其他用途;
5、本站不保证下载资源的准确性、安全性和完整性, 不包修改,不支持退换,同时也不承担用户因使用这些下载资源对自己和他人造成任何形式的伤害或损失;
6、 下载文件中如有侵权或不适当内容,请与我们联系,我们立即纠正。