

作品包括:
Word版说明书1份,共29页
CAD版本图纸,共7张
摘要
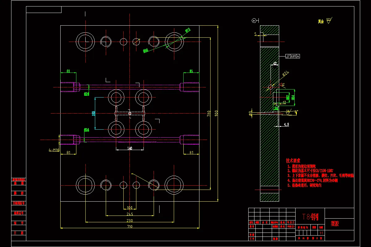
根据工程实际的需要完成ABS塑料衬套的注射模设计。在设计中采用塑料注射成型中具体分析了产品的工艺性,确定了所采用塑料的工艺参数和所采用的成型设备,确定了模具制作的总体方案,分析并解决了模具的总体结构和各工作部分的具体结构,并进行了一些必要的尺寸计算和强度的校核。中还对分型面、浇注系统、脱模机构和温度调节系统进行了分析设计,完成了工件工程图设计,圆满完成了模具设计所要求的各项工作。
本文中针对ABS塑料衬套注射模具制定出合理的设计结构,其中包括成型部分及其零部件设计,浇注系统设计,脱模机构设计,冷却系统设计等。根据分析,设计了一套塑料注射模具,并对模具以及主要零件进行了CAD绘图。
目录
摘要II
目录III
第1章前言1
第2章塑件的工艺分析2
2.1塑件的工艺性分析2
2.2塑件的结构和尺寸精度及表面质量分析3
2.2.1结构分析3
2.2.2尺寸精度分析3
2.2.3表面质量分析4
2.3计算塑件的体积和质量4
2.4注射机的初选4
第3章分型面选择和浇注系统设计5
3.1注射模具分型面的选择5
3.1.1分型面的基本形式5
3.1.2分型面选择的基本原则5
3.1.3分型面的选择5
3.2浇注系统的设计6
3.2.1浇注系统的组成6
3.2.2注射模具主流道的设计6
3.2.3分流道的设计9
第4章成型零件的设计11
4.1模具型腔的结构设计11
4.2型芯的结构设计13
4.3成型零件的尺寸确定13
第5章顶出机构的设计18
第6章冷却系统的设计20
第7章排气系统21
第8章成型设备有关参数校核21
第9章模具特点和工作原理23
总结24
参考文献25
温馨提示:
1、题目前面的备注【字母数字编号】为本站整理分类的编号,与课题内容无关,请选题时忽视;
2、若题目上备注三维,则表示文件里包含三维源文件,由于三维组成零件数量较多,为保证预览截图的简洁性,本站将三维文件夹进行了打包。三维及CAD预览截图,均为本站电脑打开软件进行截图的,保证能够打开,下载原件超高清,下载后解压即可;
3、本站所有资源如无特殊说明,都需要本地电脑安装Office2007。图纸软件为AutoCAD,PROE,UG,SolidWorks,CATIA等;
4、本站所有图文资料仅供用户学习参考,不作为任何商用或其他用途;
5、本站不保证下载资源的准确性、安全性和完整性, 不包修改,不支持退换,同时也不承担用户因使用这些下载资源对自己和他人造成任何形式的伤害或损失;
6、 下载文件中如有侵权或不适当内容,请与我们联系,我们立即纠正。