

作品包括:
Word版说明书1份,共26页
CAD版本图纸,共10张

摘要:
在综合分析塑件结构,使用要求。成型质量和模具制造成本的基础上,介绍结构简单,形状规则的塑件成型。采用侧向分型抽芯机构,使塑件能一次成型。设计了相应的的侧向分型抽芯的注射模。并介绍了模具的工作过程
目录
摘要…………………………2
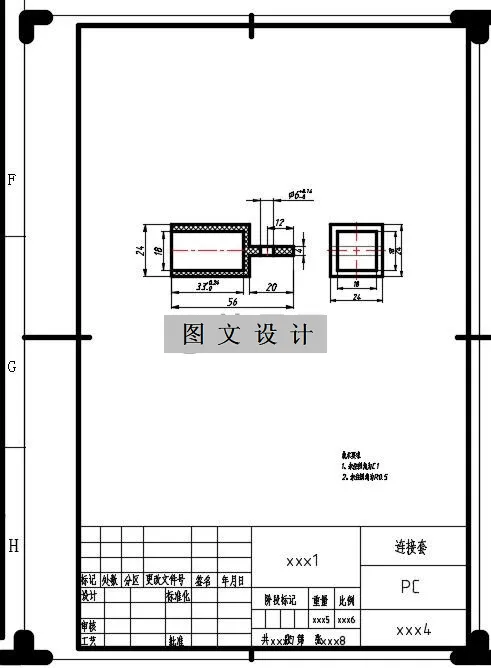
一:塑件的工艺特性分析………………………………………………………………….3
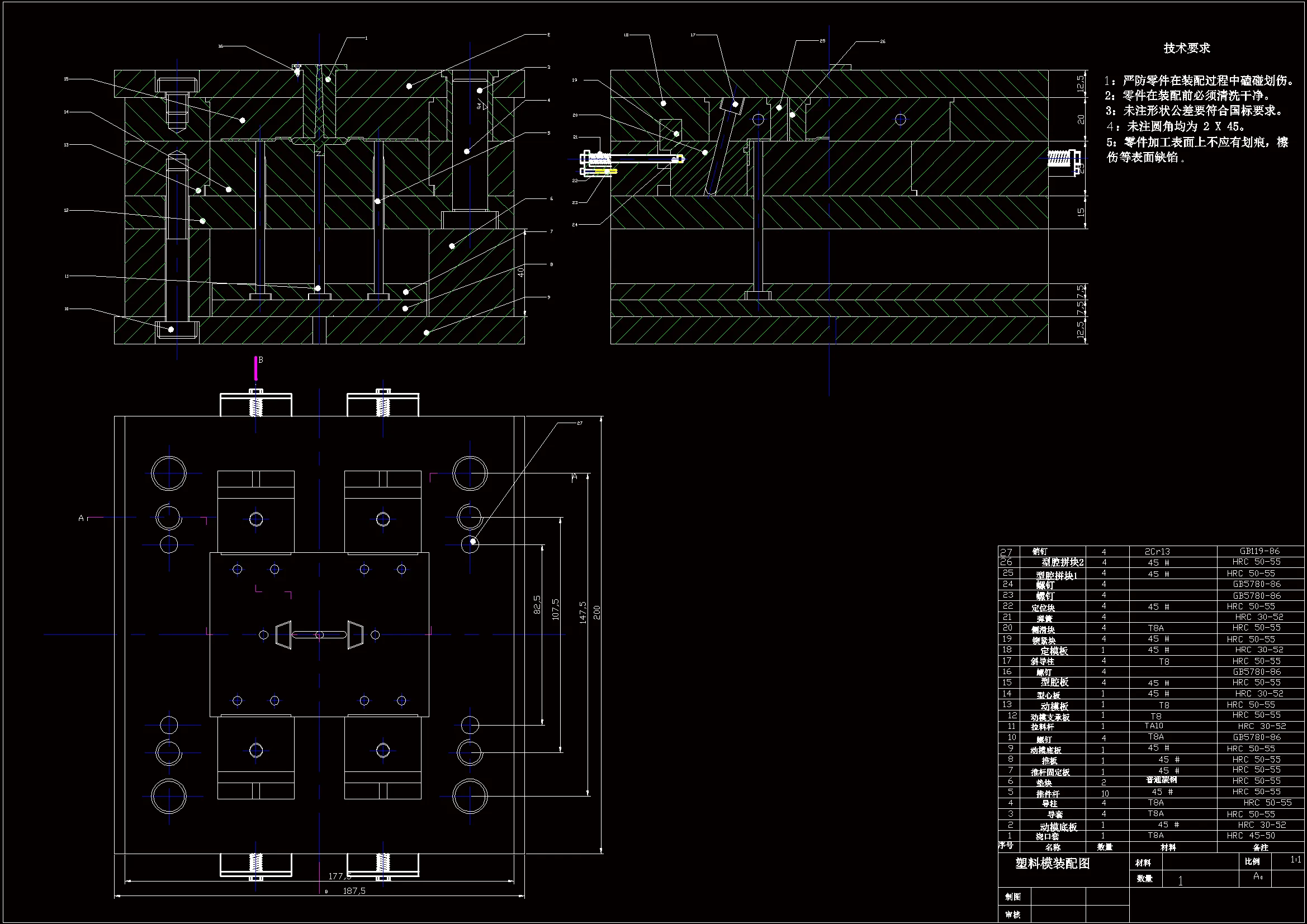
二:模具结构设计………………………………………………………………..…………6
1.型腔数量以及排列方式……………………………………………….………6
2.分型面的选择…………………………………………………………………6
3.注射机的选定…………………………………………………..…………….8
4.主流道的设计……………………………………………………………………… 9
5.分流道的设计……………………………………………………………….……10
三.成型零件的设计与计算………………………………………………….……….12
1.成型零件的设计…………………………………………………….………12
2.模具型腔侧壁和底版厚度的计算……………………………….….………17
四.合模导向机构的设计………………………………………………….……………19
五.推出机构的设计……………………………………………………….…..………23
六.侧向分型与抽芯机构的设计…………………………………………..….……..24
七.连接件的选用…………………………………………………….…….….……..25
八.模具的装配………………………………………………………….….….…….26
九.答谢语……………………………………………………………….……..……..26
温馨提示:
1、题目前面的备注【字母数字编号】为本站整理分类的编号,与课题内容无关,请选题时忽视;
2、若题目上备注三维,则表示文件里包含三维源文件,由于三维组成零件数量较多,为保证预览截图的简洁性,本站将三维文件夹进行了打包。三维及CAD预览截图,均为本站电脑打开软件进行截图的,保证能够打开,下载原件超高清,下载后解压即可;
3、本站所有资源如无特殊说明,都需要本地电脑安装Office2007。图纸软件为AutoCAD,PROE,UG,SolidWorks,CATIA等;
4、本站所有图文资料仅供用户学习参考,不作为任何商用或其他用途;
5、本站不保证下载资源的准确性、安全性和完整性, 不包修改,不支持退换,同时也不承担用户因使用这些下载资源对自己和他人造成任何形式的伤害或损失;
6、 下载文件中如有侵权或不适当内容,请与我们联系,我们立即纠正。