

作品包括:
Word版设计说明书1份,共30页,约10000字
CAD版本图纸,共3张
![1735717177281668.webp GQVTSUX}]L{YOKFGW8W06NV.webp](/static/upload/image/20250101/1735717177281668.webp)
摘 要
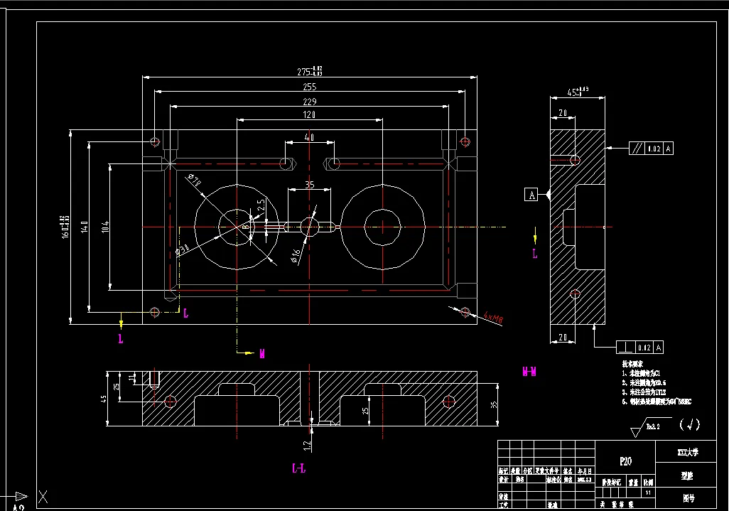
本文研究的是仪表盖的注塑成型。首先分析产品的成型工艺,然后根据产品结构,设计如何分型,及型腔数目,进胶方式。过程中要充分考虑到零件的加工方法,尽量简便精准,并进行相关尺寸的计算和校核,再设计浇注系统,冷却系统,排气系统,脱模机构,导向机构,以及模架的选择。通过CAD,UG ,等软件辅助分析设计是否合理,选择合理的工艺参数和设计方案。
关键词:注塑模具;成型工艺;结构设计;加工方法
目 录
1 引 言 1
1.1 模具工业在国民经济中的地位 1
2 塑件的工艺分析 2
2.1 塑件成型工艺性分析 2
2.2 塑件结构工艺性分析 2
2.2.1 塑件的尺寸精度分析 3
2.2.2塑件表面质量分析 3
2.2.3 塑件脱模斜度分析 3
2.2.4 塑件的壁厚分析 3
3 拟定模具的结构形式和初选注射机 4
3.1 分型面位置的确定 4
3.2 型腔数量和排位方式的确定 4
3.3 注射机型号的确定 6
4 浇注系统的设计 7
4.1 普通浇注系统的设计原则 7
4.2 主流道的设计 7
4.3 分流道的设计 8
4.3.1分流道设计要点 8
4.3.2分流道的长度 8
4.3 浇口的设计 9
4.4 冷料穴的设计 10
4.5 排气方式的设计 10
5 成型零件的结构设计及计算 11
5.1 成型零件的结构设计 11
5.1.1 型腔的结构设计 11
5.1.2 型芯的结构设计 12
5.2 成型零件钢材的选用 12
5.3 成型零件工作尺寸的计算 12
6 模架及其他零件的选择 14
6.1 模架的选择 14
6.2 其他零件的选择 14
7 导向机构的设计 15
7.1导柱的设计 15
7.2 导套的设计 15
8 脱模推出机构的设计 16
8.1 推出方式的确定 16
8.2推出力的计算 16
8.3 复位机构的设计 17
8.4 垃圾钉的设计 17
9 冷却系统的设计 18
温度对塑件质量的影响 18
9.1冷却介质 18
9.2 冷却系统的简单计算 18
9.2.1 单位时间内注入模具中的塑料熔体的总质量W 18
9.2.2 确定单位质量的塑件在凝固时所放出的热量 18
10 排气系统的设计 20
11 校核 21
11.1注射机有关工艺校核 21
11.2模具厚度与注射机闭合高度 21
11.3 模架各尺寸的校核 21
12模具工作过程 23
结 论 24
致 谢 25
参考文献 26
温馨提示:
1、题目前面的备注【字母数字编号】为本站整理分类的编号,与课题内容无关,请选题时忽视;
2、若题目上备注三维,则表示文件里包含三维源文件,由于三维组成零件数量较多,为保证预览截图的简洁性,本站将三维文件夹进行了打包。三维及CAD预览截图,均为本站电脑打开软件进行截图的,保证能够打开,下载原件超高清,下载后解压即可;
3、本站所有资源如无特殊说明,都需要本地电脑安装Office2007。图纸软件为AutoCAD,PROE,UG,SolidWorks,CATIA等;
4、本站所有图文资料仅供用户学习参考,不作为任何商用或其他用途;
5、本站不保证下载资源的准确性、安全性和完整性, 不包修改,不支持退换,同时也不承担用户因使用这些下载资源对自己和他人造成任何形式的伤害或损失;
6、 下载文件中如有侵权或不适当内容,请与我们联系,我们立即纠正。