

作品包括:
Word版说明书1份,共30页,约7000字
任务书一份
开题报告一份
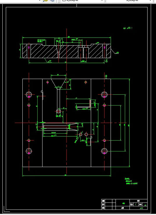
CAD版本图纸,共6张
![1701435181265409.webp UIAW_LU5T5)JF5`]P8`I)77.webp](/static/upload/image/20231201/1701435181265409.webp)
摘 要
本设计为简单形状的弯曲件冲压模具设计,根据制件的尺寸、材料批量生产等要求,首先分析零件的工艺性,确定冲裁工艺方案及模具结构方案。然后通过工艺设计计算,确定排样方式。计算冲裁力和压力中心,初选压力机,计算凸、凹模刃口尺寸和公差。最后设计、选用标准零部件。在结构设计中,主要对凸模、凹模、定位零件、卸料与出件装置、模架、冲压设备、紧固件等进行了设计或选
取,对模具主要零件的加工工艺规程进行编制,对压力机进行校核,绘制模具总装图及零件图,最终完成模具设计。
关键词:冲压 模具 凸模 凹模
目 录
第一章 绪 论 ........................................ 5
第二章 冲压工艺设计 .................................. 7
2.1 冲压件简介 ....................................... 7
2.2 冲压的工艺性分析 ................................. 7
2.3 工艺方案的确定 ....................................8
第三章 冲压工艺的设计与计算…………………………..….. .9
3.1 排样的设计与计算 ..................................9
3.2 冲裁力的计算 ..................................... 10
3.3 凹模轮廓尺寸的确定 ................................11
3.4 模具结构零部件的选择………………………….…………. 13
3.5凸、凹模刃口工作尺寸计算………………………..….……12
3.6 弯曲凸模结构及设计 ............................... 17
第四章 模具零件设计 ...................................15
4.1 凹模的设计 ....................................... 15
4.2 圆凸模结构及设计 ................................. 15
4.3 圆凸模定位、固定方式...............................16
4.4 凸模固定板设计 ....................................18
4.5卸料板设计………………………………………….………… 18
第五章 选用及校核压力机 ................................20
第六章 结论 ...............................................24
参考文献……………………………………………………….….…… 25
致谢………………………………………………………….…….…… 26
设计小结……………………………………………………………..… 27
温馨提示:
1、题目前面的备注【字母数字编号】为本站整理分类的编号,与课题内容无关,请选题时忽视;
2、若题目上备注三维,则表示文件里包含三维源文件,由于三维组成零件数量较多,为保证预览截图的简洁性,本站将三维文件夹进行了打包。三维及CAD预览截图,均为本站电脑打开软件进行截图的,保证能够打开,下载原件超高清,下载后解压即可;
3、本站所有资源如无特殊说明,都需要本地电脑安装Office2007。图纸软件为AutoCAD,PROE,UG,SolidWorks,CATIA等;
4、本站所有图文资料仅供用户学习参考,不作为任何商用或其他用途;
5、本站不保证下载资源的准确性、安全性和完整性, 不包修改,不支持退换,同时也不承担用户因使用这些下载资源对自己和他人造成任何形式的伤害或损失;
6、 下载文件中如有侵权或不适当内容,请与我们联系,我们立即纠正。