

作品包括:
说明书1份,共36页,约13000字左右
CAD版本本图纸,共6张
摘 要
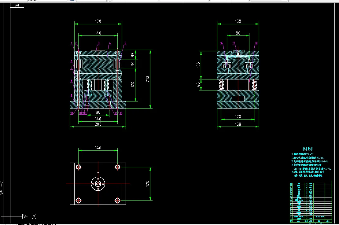
模具是现代工业的重要工艺设备,随着科学技术的不断进步,它在国民经济中占有越来越重要的地位,发展前景十分广阔。装备制造业在2007年的迅速发展,尤其是汽车和电子电器产品的高速增长,为模具工业的发展营造了良好的市场环境。本次设计的是底座盖的注塑模具,材料是PC,从零件的工艺性分析到模具结构的设计再到工艺计算,一直到最后的模具装配图。
关键词:底座盖; 注塑模具; 装配图
目 录
1.概述 9
1.1 本次设计的目的 9
1.2 本次设计的要求 9
1.3 本次设计的步骤流程 9
2.拟定模具结构设计 10
2.1 塑件成型工艺性分析 10
2.1.1 塑件结构分析 11
2.1.2 成型工艺分析 11
2.1.3 塑件材料性能分析 11
2.2 分型面的确定 12
2.2.1 分型面的选择原则 12
2.2.2 塑件分型面的确定 12
2.3.1 型腔数量的确定 13
2.3.2 型腔的排列方式 13
2.3.3模具结构形式的确定 13
2.4 注塑机型号的选择 14
2.4.1 注塑机选择的一般原则 15
2.4.2按预选型腔数选择注塑机 16
2.4.3 校核注塑机的技术参数 17
3.浇注系统的设计 17
3.1浇注系统的设计的基本要点 18
3.2 流道的设计 18
3.2.1 主流道的设计 18
3.2.2 分流道的设计 18
3.3 浇口的设计 18
3.3.1 浇口形式的选择 19
3.3.2浇口位置的选择 19
3.3.3浇口的尺寸的确定 20
3.3.4点浇口剪切速率的确定 21
3.4 浇注系统的平衡与冷料井的设计 21
3.4.1 浇注系统的平衡 22
3.4.2 冷料井的设计 22
4.成型零件的设计 23
4.1成型零件的设计要点 24
4.2 成型零件的结构设计 24
4.2.1 凹模(斜滑块) 24
4.2.2 型芯 24
4.3 成型零件工作尺寸的计算 25
5.模架的确定和标准件的选用 25
5.1 模架的确定 25
5.2 各模板的尺寸及材料 25
6.合模导向机构的设计 26
6.1导向机构的整体设计 26
6.1.1导向机构的设计原则 26
7.脱模机构的设计 29
7.1 脱模推出机构的设计原则 29
7.2 塑件的推出基本方式 29
7.3底座盖II的推出机构 29
8.温度调节系统的设计 30
8.1 加热系统 31
8.2 冷却系统 32
8.2.1 冷却介质 33
8.2.2 冷却系统的计算 34
参考文献 35
总结 36
温馨提示:
1、题目前面的备注【字母数字编号】为本站整理分类的编号,与课题内容无关,请选题时忽视;
2、若题目上备注三维,则表示文件里包含三维源文件,由于三维组成零件数量较多,为保证预览截图的简洁性,本站将三维文件夹进行了打包。三维及CAD预览截图,均为本站电脑打开软件进行截图的,保证能够打开,下载原件超高清,下载后解压即可;
3、本站所有资源如无特殊说明,都需要本地电脑安装Office2007。图纸软件为AutoCAD,PROE,UG,SolidWorks,CATIA等;
4、本站所有图文资料仅供用户学习参考,不作为任何商用或其他用途;
5、本站不保证下载资源的准确性、安全性和完整性, 不包修改,不支持退换,同时也不承担用户因使用这些下载资源对自己和他人造成任何形式的伤害或损失;
6、 下载文件中如有侵权或不适当内容,请与我们联系,我们立即纠正。