

作品包括:
Word版设计说明书1份,共36页,约12000字
CAD版本图纸,共12张
UG三维图一份
摘要
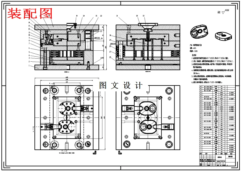
本次设计的参考件是以电饭煲控制盒下盖为设计任务,此产品外形光滑简单,用UG三维软件绘制产品。在绘制过程中要考虑到抜模斜度,方便顶出脱模。绘制完成后,根据需求排列出一模二腔计算出他的模架,然后确定它的分析面。分型面的选择也要考虑到脱模的方向和零件的外形,还要考虑到型芯型腔的机械加工方便性和顶出机构的受力均匀。根据产品的排列和原料的流动性收缩率选择进料口使其填面不缺料。冷却方法根据模具的设计产品的摆放来确定,一般采用环绕式的水管。推出机构通常采用圆顶针,这种推模方式会留有顶出痕迹,如不能有顶出痕迹可使用推板推出或者使用机型手取出,选用的方式根据产品的使用和外观要求而定。三维软件绘制完成后根据图形再使用CAD绘制二维装配图和零件图,这样绘制二维装配图时思路清晰不容易出错。在设计过程中需考虑到模具在机械加工方面的制造工艺,还有就是在制造完成后模具使用的安全设备维修的方便跟换宜受损部分的简便,这都是在设计过程不可缺少的。
温馨提示:
1、题目前面的备注【字母数字编号】为本站整理分类的编号,与课题内容无关,请选题时忽视;
2、若题目上备注三维,则表示文件里包含三维源文件,由于三维组成零件数量较多,为保证预览截图的简洁性,本站将三维文件夹进行了打包。三维及CAD预览截图,均为本站电脑打开软件进行截图的,保证能够打开,下载原件超高清,下载后解压即可;
3、本站所有资源如无特殊说明,都需要本地电脑安装Office2007。图纸软件为AutoCAD,PROE,UG,SolidWorks,CATIA等;
4、本站所有图文资料仅供用户学习参考,不作为任何商用或其他用途;
5、本站不保证下载资源的准确性、安全性和完整性, 不包修改,不支持退换,同时也不承担用户因使用这些下载资源对自己和他人造成任何形式的伤害或损失;
6、 下载文件中如有侵权或不适当内容,请与我们联系,我们立即纠正。