

作品包括:
说明书一份,48页,约25000字
CAD版本图纸,共17张
微型电机定子片和转子片级进模设计
摘 要:本课题介绍了微型电动机定、转子片多工位级进模的冲压工艺和模具结构设计,并应用Pro/E软件对其进行级进模具设计,解决了模具排样的难点,设计的模具机构应用于工程实践,产生了较好的效益。本文主要介绍了现代模具的基本概述,冷冲压模具的发展状况以及特点,级进模的概念、工作过程及特点,提出了本课题研究的内容以及选题的意义,以及本课题的整个设计过程,根据课题所提供的数据进行设计,包括:设计步距与定距的方式、排样图的设计、对冲压力、卸料力、推件力、压力中心、冲裁间隙、凸凹模刃口尺寸的计算、压力机的选择、本模具的总体设计以及主要零部件的设计。
关键词: 定子片;转子片; 级进模; Pro/E软件;排样
目录
摘要………………………………………………………………………………1
关键词……………………………………………………………………………1
1 前言 …………………………………………………………………………2
1.1 模具概述 ………………………………………………………………2
1.2 级进模概述 ……………………………………………………………3
1.3 Pro/ENGINEER的基础知识…………………………………………4
1.3.1 Pro/ENGINEER的诞生…………………………………………4
1.3.2 Pro/ENGINEER的功能和特点…………………………………4
1.3.3 Pro/ENGINEER在模具制造中的应用…………………………5
1.4 课题内容选题意义 ………………………………………………………6
1.5 本章小结 ………………………………………………………………7
2 微型电动机定子、转子片级进模设计 ……………………………………7
2.1 设计资料 ………………………………………………………………7
2.2 设计步距与定距方式 …………………………………………………7
2.3 排样图设计 ……………………………………………………………8
2.4 主要计算 ……………………………………………………………9
2.4.1 冲压力的计算 ………………………………………………9
2.4.2 压力中心的计算 ………………………………………………10
2.4.3 卸料力与推件力的计算 ……………………………………12
2.4.4 冲裁间隙 ……………………………………………………12
2.4.5 凸、凹模刃口尺寸的计算 ……………………………………12
2.5 压力机的选择 ………………………………………………………16
2.6 模具总体设计 ………………………………………………………18
2.6.1 模架 …………………………………………………………18
2.6.2 卸料板 ………………………………………………………18
2.6.3 导柱和导套 …………………………………………………19
2.6.4 弹压装置 ……………………………………………………19
2.6.5 凹模 …………………………………………………………19
2.6.6 定位装置 ……………………………………………………21
2.6.7 导料装置 ……………………………………………………22
2.7 主要零部件设计 ……………………………………………………22
2.7.1 线槽冲模设计 ………………………………………………22
2.7.2 校正模设计 …………………………………………………26
2.7.3 小凸模设计 …………………………………………………27
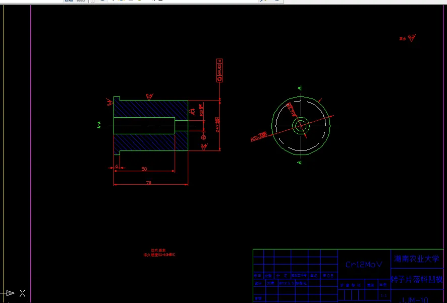
2.7.4 转子片落料模设计 …………………………………………28
2.7.5 异行孔冲模设计 ……………………………………………29
2.7.6 切废模设计 …………………………………………………30
2.7.7 切断模设计 …………………………………………………31
2.8 本章小结 ……………………………………………………………32
3 Pro/ENGINEER的模具造型 ………………………………………………33
3.1 总装配图的建立 ……………………………………………………33
3.2 零件图的建立 ………………………………………………………34
3.3 本章小结 ……………………………………………………………38
4 结论……………………………………………………………………38
参考文献 ………………………………………………………………………39
致谢 ……………………………………………………………………………39
温馨提示:
1、题目前面的备注【字母数字编号】为本站整理分类的编号,与课题内容无关,请选题时忽视;
2、若题目上备注三维,则表示文件里包含三维源文件,由于三维组成零件数量较多,为保证预览截图的简洁性,本站将三维文件夹进行了打包。三维及CAD预览截图,均为本站电脑打开软件进行截图的,保证能够打开,下载原件超高清,下载后解压即可;
3、本站所有资源如无特殊说明,都需要本地电脑安装Office2007。图纸软件为AutoCAD,PROE,UG,SolidWorks,CATIA等;
4、本站所有图文资料仅供用户学习参考,不作为任何商用或其他用途;
5、本站不保证下载资源的准确性、安全性和完整性, 不包修改,不支持退换,同时也不承担用户因使用这些下载资源对自己和他人造成任何形式的伤害或损失;
6、 下载文件中如有侵权或不适当内容,请与我们联系,我们立即纠正。