

作品包括:
Word版设计说明书1份
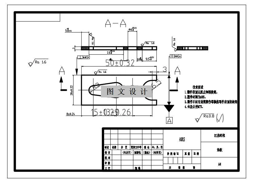
CAD版本图纸,共8张
摘要
模具作为工业的基石有着十分重要的地位和作用,模具也分作很多个种类,其中RTM模具在模具中的应用最为广泛,我们生活中的大多数东西都是通过RTM模具来完成生产的,本次设计就是将电池箱盖作为核心进行RTM模具设计。RTM工艺属于重要工艺之一的成型纤维增强塑料,又称树脂传递模塑工艺。文中运用了计算机电脑仿真软件辅助设计,它们的便捷性和重要性更有力详细地阐述了模具设计的原则、材料选择、结构设计、密封锁模、浇口的设计等。反之正因为文中针对,模具设计原则、材料选择、结构设计、密封锁模、浇口设计等的阐述,又说明那些仿真软件辅助设计的重要与便捷。模具设计的合理性关乎着成型模具的各方面,此工艺又需要强度高,变形力足够小,寿命够长,模腔尺寸准确的要求,又需要模具要有一定的尺寸的稳定,耐热,和一定强度等特点。首先要分析结构及工艺性能,分型面的选择也是非常关键的一部分,根据RTM模具设计原则确定分型面的位置,通常情况下分型面选用塑件较大的平面。然后是对出模数量的分析,根据塑件的结构特点和实际生产确定出模的数量。完成好型腔布局后考虑浇注系统的形式和位置,浇注系统的设计主要针流道浇注方式进行设计,既要保证充填均匀又要减少废料。树脂和纤维层合板复合材料的设计也仅适合尺寸精度较低与产量较大的模具,RTM工艺中,又产量和精度与模具的材料相挂钩;对于成型部件的设计采用了嵌入式的型芯、型腔,成型零部件因为是与塑件直接接触的所以精度要求更高,设计结构再对整零件的尺寸进行计算设计。
温馨提示:
1、题目前面的备注【字母数字编号】为本站整理分类的编号,与课题内容无关,请选题时忽视;
2、若题目上备注三维,则表示文件里包含三维源文件,由于三维组成零件数量较多,为保证预览截图的简洁性,本站将三维文件夹进行了打包。三维及CAD预览截图,均为本站电脑打开软件进行截图的,保证能够打开,下载原件超高清,下载后解压即可;
3、本站所有资源如无特殊说明,都需要本地电脑安装Office2007。图纸软件为AutoCAD,PROE,UG,SolidWorks,CATIA等;
4、本站所有图文资料仅供用户学习参考,不作为任何商用或其他用途;
5、本站不保证下载资源的准确性、安全性和完整性, 不包修改,不支持退换,同时也不承担用户因使用这些下载资源对自己和他人造成任何形式的伤害或损失;
6、 下载文件中如有侵权或不适当内容,请与我们联系,我们立即纠正。