

作品包括
Word版说明书1份,共33页,约11000字
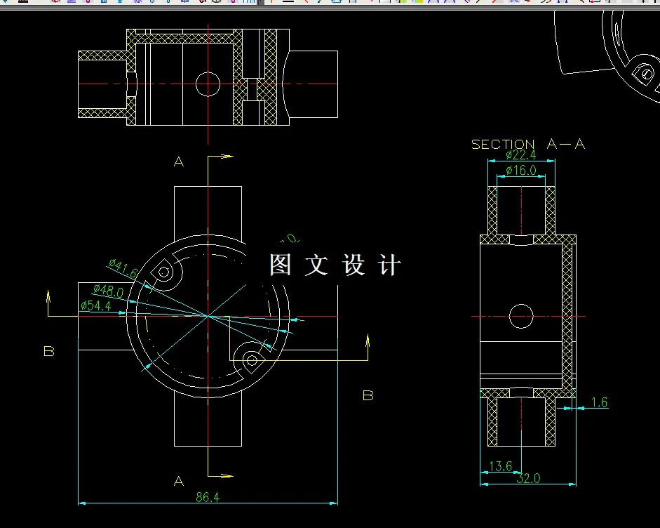
CAD版本图纸,共8张
UG三维图一份

摘 要
本文针对“分线盒”注塑模具设计,首先选择并分析适合了这个塑件的高分子树脂材料,其次,分析了塑件的注塑成型工艺。结合塑件的实际结构特点与尺寸大小和精度要求。选择了合适的出模数量。针对整套模具的结构设计上面,本文采用了对应的成型系统来保证模具加工的可行性、浇注系统方面尽可能的贴合实际注塑生产工艺需求、冷却系统设计方面能够使得塑件的冷却更加均匀合理。根据GB国家标准,采用了龙记的标准模架系统,同时采用了其他的模具标准件,使得设计和制造更加的简单。
关键词: 机械设计;模具设计;结构设计;注塑工艺;校核;
目 录
摘 要 1
Abstract 2
目 录 3
第1章 绪论 5
1.1 注塑模具的简介 5
1.2 注塑模具发展国内外现状 5
1.3 国内模具的优劣势 6
1.4 本课题研究内容 7
第2章 注塑成型工艺分析 8
2.1 分线盒零件图 8
2.2零件的工艺分析 9
2.3 塑料材料的基本特性 9
2.3.1 PVC的性能指标 9
2.3.2 塑件材料成型性能 9
2.4 注射机型号的初步确定 10
2.5 塑件注射工艺参数的确定 12
第3章 注射模的结构设计 13
3.1 分型面的选择 13
3.2 确定型腔局部结构形式 13
3.3 浇注系统的设计 14
3.3.1 浇注系统的设计原则 14
3.4 推出机构的设计 16
3.4.1 顶出脱模机构概述 18
3.4.2顶出机构零件 18
3.4.3 顶出脱模机构的分类 18
3.5 模具冷却系统 18
3.5.1水路的布置形式 19
3.5.2 冷却系统简单计算 20
3.6 抽芯机构设计 21
3.6.1 抽芯机构的概述 21
3.6.2 抽芯机构的类型 21
3.6.3 抽芯距离和脱模力的计算 21
第4章 模具成型尺寸 23
4.1 型腔工作尺寸计算 23
4.2 型芯工作尺寸计算 24
第5章 模架的选择 26
5.1 模具选择 26
5.2 模架的安装 26
第6章 导向机构的设计 27
6.1 主要导向定位机构 27
6.2 导柱导套的结构形式 27
第7章 注射机的校核 28
7.1 最大注射量的校核 28
7.2 注射压力的校核 28
7.3 锁模力的校核 28
7.4 模具外形尺寸校核 29
7.5 开模行程的校核 29
设计总结 30
致 谢 31
参考文献 32
温馨提示:
1、题目前面的备注【字母数字编号】为本站整理分类的编号,与课题内容无关,请选题时忽视;
2、若题目上备注三维,则表示文件里包含三维源文件,由于三维组成零件数量较多,为保证预览截图的简洁性,本站将三维文件夹进行了打包。三维及CAD预览截图,均为本站电脑打开软件进行截图的,保证能够打开,下载原件超高清,下载后解压即可;
3、本站所有资源如无特殊说明,都需要本地电脑安装Office2007。图纸软件为AutoCAD,PROE,UG,SolidWorks,CATIA等;
4、本站所有图文资料仅供用户学习参考,不作为任何商用或其他用途;
5、本站不保证下载资源的准确性、安全性和完整性, 不包修改,不支持退换,同时也不承担用户因使用这些下载资源对自己和他人造成任何形式的伤害或损失;
6、 下载文件中如有侵权或不适当内容,请与我们联系,我们立即纠正。