

作品包括:
Word版设计说明书1份
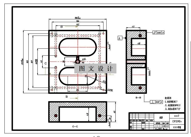
CAD版本图纸,共6张
摘要
设置冷却效果良好的冷却水回路的模具是缩短成型周期、提高生产效率最有效的方法,也是成型出高质量塑件的重要因素。设置冷却回路,应注意以下几点: (1)冷却水道应尽量多、截面尺寸应尽量大,以使型腔表面的温度趋于均匀,防止塑件不均匀收缩和产生残余应力。 (2)冷却水道离模具型腔表面的距离一般为10~15㎜。 (3)冷却水道出入口的布置应注意两个问题,即浇口处加强冷却和冷却水道的出入口温差应尽量小。 (4)冷却水道应沿着塑料收缩方向设置。 (5)冷却水道的布置应避开塑件易产生熔接痕的部位。而且各连接处应保持密封,防止冷却水外泄。1461403
温馨提示:
1、题目前面的备注【字母数字编号】为本站整理分类的编号,与课题内容无关,请选题时忽视;
2、若题目上备注三维,则表示文件里包含三维源文件,由于三维组成零件数量较多,为保证预览截图的简洁性,本站将三维文件夹进行了打包。三维及CAD预览截图,均为本站电脑打开软件进行截图的,保证能够打开,下载原件超高清,下载后解压即可;
3、本站所有资源如无特殊说明,都需要本地电脑安装Office2007。图纸软件为AutoCAD,PROE,UG,SolidWorks,CATIA等;
4、本站所有图文资料仅供用户学习参考,不作为任何商用或其他用途;
5、本站不保证下载资源的准确性、安全性和完整性, 不包修改,不支持退换,同时也不承担用户因使用这些下载资源对自己和他人造成任何形式的伤害或损失;
6、 下载文件中如有侵权或不适当内容,请与我们联系,我们立即纠正。