

作品包括:
Word版设计说明书1份
CAD版本图纸,共12张
UG三维图一套
摘要
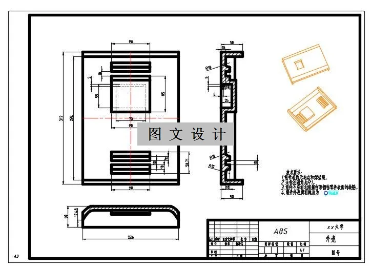
净化器控制部分外壳是空气净化器的主要组成部分,一个完整、优化的模具设计对其成型质量至关重要,通过对控制部分外壳模具的设计,不仅加深了我们对专业知识的进一步掌握及运用,同时也让我们学到的模具设计过程中更多的相关知识和提高了我们在实际生产中解决问题的能力。 本次设计主要根据所给的空气净化器控制部分外壳零件来进行模具的设计,考虑到空气净化器控制部分外壳塑料制品的结构工艺性和成型工艺性,塑料注射成型工艺及其控制。利用UG对控制部分外壳进行模型的建立,然后根据其体积和质量选择注射机的型号,并通过查阅书籍设计了空气净化器控制部分外壳的模架,选择了分型面的位置,确定型腔的排列方式,进行浇注系统的设计,设计推出机构,选择内侧抽芯机构类型,计算模具的冷却系统。除此以外还计算了型芯和型腔各个尺寸,并且对模具进行了安装校核,完成了浇注系统和型腔的布局的设计,并完成了二维图的绘制。
温馨提示:
1、题目前面的备注【字母数字编号】为本站整理分类的编号,与课题内容无关,请选题时忽视;
2、若题目上备注三维,则表示文件里包含三维源文件,由于三维组成零件数量较多,为保证预览截图的简洁性,本站将三维文件夹进行了打包。三维及CAD预览截图,均为本站电脑打开软件进行截图的,保证能够打开,下载原件超高清,下载后解压即可;
3、本站所有资源如无特殊说明,都需要本地电脑安装Office2007。图纸软件为AutoCAD,PROE,UG,SolidWorks,CATIA等;
4、本站所有图文资料仅供用户学习参考,不作为任何商用或其他用途;
5、本站不保证下载资源的准确性、安全性和完整性, 不包修改,不支持退换,同时也不承担用户因使用这些下载资源对自己和他人造成任何形式的伤害或损失;
6、 下载文件中如有侵权或不适当内容,请与我们联系,我们立即纠正。