

作品包括:
Word版设计说明书1份
CAD版本图纸,共13张
UG三维图一套
摘要
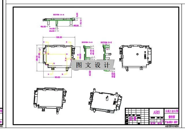
本论文主要是传真机外壳座注塑模具,注射材料是ABS,首先对塑件的结构形状进行了分析和测量,并绘制出二维和三维图。然后进行模具设计,包括对塑件的材料和工艺参数分析和计算,模具工作部分设计和模具结构设计,其中重点介绍了分型面的选择,点浇口浇注系统,斜顶机构,顶杆顶出机构和冷却系统。通过整个设计过程表明该模具能够达到此塑件所要求的加工工艺。并对计算数据进行分析,在分析数据的基础上再对模具设计进行优化和改进。
温馨提示:
1、题目前面的备注【字母数字编号】为本站整理分类的编号,与课题内容无关,请选题时忽视;
2、若题目上备注三维,则表示文件里包含三维源文件,由于三维组成零件数量较多,为保证预览截图的简洁性,本站将三维文件夹进行了打包。三维及CAD预览截图,均为本站电脑打开软件进行截图的,保证能够打开,下载原件超高清,下载后解压即可;
3、本站所有资源如无特殊说明,都需要本地电脑安装Office2007。图纸软件为AutoCAD,PROE,UG,SolidWorks,CATIA等;
4、本站所有图文资料仅供用户学习参考,不作为任何商用或其他用途;
5、本站不保证下载资源的准确性、安全性和完整性, 不包修改,不支持退换,同时也不承担用户因使用这些下载资源对自己和他人造成任何形式的伤害或损失;
6、 下载文件中如有侵权或不适当内容,请与我们联系,我们立即纠正。