

作品包括:
Word版说明书1份,共17页,约3000字
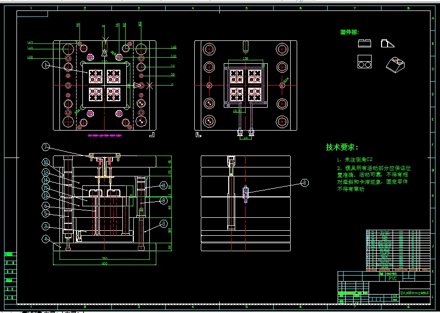
CAD版本图纸,共4张
UG三维图一份
目 录
前 言1
1 塑件分析2
1.1 塑件材料2
1.2 结构分析2
1.3 成型分析2
1.4 结构设计2
1.5 具体尺寸设计3
1.6 分型面选择3
2 模仁设计4
2.1 模仁尺寸设计4
2.1.1 母模仁设计5
2.1.2 公模仁结构设计5
2.2 运水系统设计6
2.2.1 运水系统尺寸设计6
3 模架设计7
3.1 模架选择7
3.2 唧嘴和定位环尺寸选择7
3.3 点胶口位置8
3.4 拉料针尺寸及固定方式8
3.5 顶针位置及尺寸9
4 模具装配图绘制10
总 结11
致 谢12
附 录13
参考文献14
温馨提示:
1、题目前面的备注【字母数字编号】为本站整理分类的编号,与课题内容无关,请选题时忽视;
2、若题目上备注三维,则表示文件里包含三维源文件,由于三维组成零件数量较多,为保证预览截图的简洁性,本站将三维文件夹进行了打包。三维及CAD预览截图,均为本站电脑打开软件进行截图的,保证能够打开,下载原件超高清,下载后解压即可;
3、本站所有资源如无特殊说明,都需要本地电脑安装Office2007。图纸软件为AutoCAD,PROE,UG,SolidWorks,CATIA等;
4、本站所有图文资料仅供用户学习参考,不作为任何商用或其他用途;
5、本站不保证下载资源的准确性、安全性和完整性, 不包修改,不支持退换,同时也不承担用户因使用这些下载资源对自己和他人造成任何形式的伤害或损失;
6、 下载文件中如有侵权或不适当内容,请与我们联系,我们立即纠正。