

作品包括:
Word版设计说明书1份
CAD版本图纸,共19张
UG三维图一份
摘要
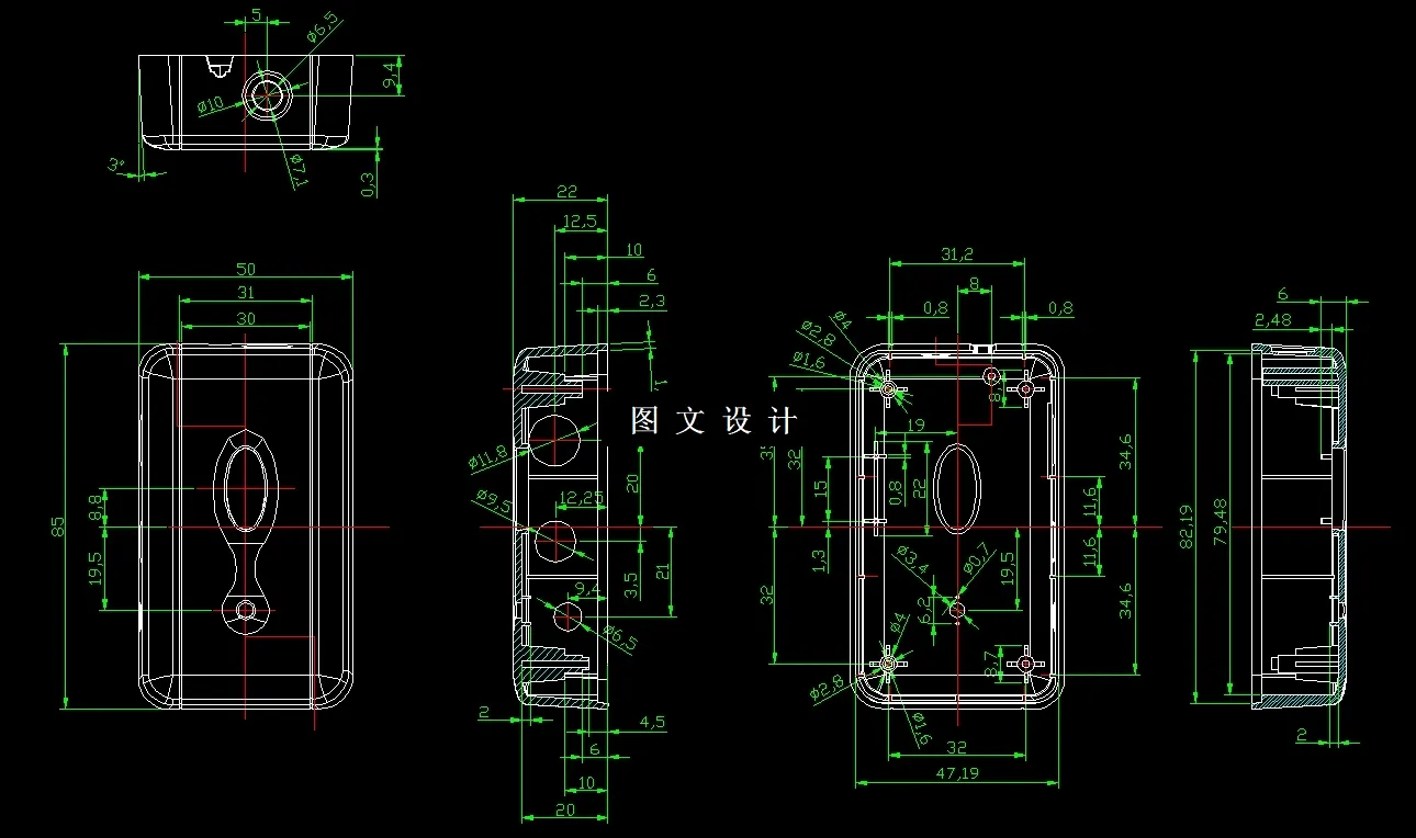
此设计为视频发射器上盖注塑模具设计,采用一模二腔,侧浇注口进行填充,提供三维(UG格式)+二维装配图1张及主要零件图18张+设计报告文档( 文档约2.0W字 51页)。为了更好的完成本次设计,需要做非常多的工作。第一步是要清楚地认识 和了解该塑件的基本信息,比如它的用途、基本形状构造和所用塑胶的材料。第二步是要考虑该塑件的分型面,这是非常重要的一步,分型面影响到塑件的整套模具设计的脱模机构设计以及塑件的外观。第三步是确定型腔的数量和布局。 第四步根据塑件的结构,判断塑件需不需要进行侧抽芯。第五步是完成塑件的浇注系统,其中包括进胶口、流道、进胶系统相关配件等等。第六步是确定塑件的顶出系统,常见的顶出系统有推杆和推板。第七步是确定塑件的冷却系统,原则是要冷却均匀。第八步是要结合前面的数据选择合适的模架
温馨提示:
1、题目前面的备注【字母数字编号】为本站整理分类的编号,与课题内容无关,请选题时忽视;
2、若题目上备注三维,则表示文件里包含三维源文件,由于三维组成零件数量较多,为保证预览截图的简洁性,本站将三维文件夹进行了打包。三维及CAD预览截图,均为本站电脑打开软件进行截图的,保证能够打开,下载原件超高清,下载后解压即可;
3、本站所有资源如无特殊说明,都需要本地电脑安装Office2007。图纸软件为AutoCAD,PROE,UG,SolidWorks,CATIA等;
4、本站所有图文资料仅供用户学习参考,不作为任何商用或其他用途;
5、本站不保证下载资源的准确性、安全性和完整性, 不包修改,不支持退换,同时也不承担用户因使用这些下载资源对自己和他人造成任何形式的伤害或损失;
6、 下载文件中如有侵权或不适当内容,请与我们联系,我们立即纠正。