

作品包括:
Word设计说明书1份
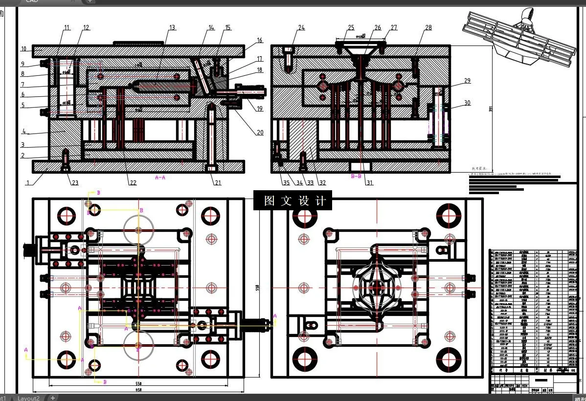
CAD版本图纸,共10张
UG三维图一份
摘要
本设计采用CAD、UG软件,进行了塑料模具设计,根据注射模设计,分型面选择在大断面处,进行了浇注系统设计,成型后,塑件成型的产品放在注塑机上。设计需要计算塑件的尺寸,确定尺寸精度,然后注射机的选择。检查注塑机参数包括厚度,模具安装尺寸,模具闭模行程,注塑机锁模力等参数,所有符合要求在确定注射机的类型。在设计过程中,为了更清晰地表达模具的内部结构,所以有很多的模具结构和模具的局部图,并绘制二维图。
温馨提示:
1、题目前面的备注【字母数字编号】为本站整理分类的编号,与课题内容无关,请选题时忽视;
2、若题目上备注三维,则表示文件里包含三维源文件,由于三维组成零件数量较多,为保证预览截图的简洁性,本站将三维文件夹进行了打包。三维及CAD预览截图,均为本站电脑打开软件进行截图的,保证能够打开,下载原件超高清,下载后解压即可;
3、本站所有资源如无特殊说明,都需要本地电脑安装Office2007。图纸软件为AutoCAD,PROE,UG,SolidWorks,CATIA等;
4、本站所有图文资料仅供用户学习参考,不作为任何商用或其他用途;
5、本站不保证下载资源的准确性、安全性和完整性, 不包修改,不支持退换,同时也不承担用户因使用这些下载资源对自己和他人造成任何形式的伤害或损失;
6、 下载文件中如有侵权或不适当内容,请与我们联系,我们立即纠正。