

作品包括:
Word设计说明书1份
CAD版本图纸,共6张
摘要
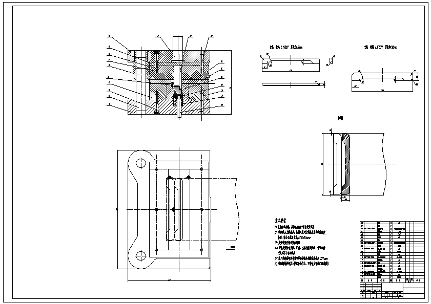
支架零件复合模具设计 本设计是对支架的落料、翻边复合模的设计,完成的内容为:对模具在工业生产中的作用,模具发展历史与现状,未来模具的发展前景做了概述。进行零件的形状、尺寸、精度工艺分析,确定合理的工艺方案,确定工序数目。确定毛坯尺寸,判断能否一次拉成,合理排样,绘制排样图,计算冲裁力、推件力、顶件力、卸料力、翻边力,确定压力中心。确定翻边凸、凹模间隙,计算落料、翻边、冲孔的凸、凹模刃口尺寸。确定凸、凹模结构,并绘制零件图,设计定位零件,压料、卸料、出件零部件,设计固定零件,选择模架标注紧固件。最后绘制模具非标准零件图,用CAD画出二维装配图。
温馨提示:
1、题目前面的备注【字母数字编号】为本站整理分类的编号,与课题内容无关,请选题时忽视;
2、若题目上备注三维,则表示文件里包含三维源文件,由于三维组成零件数量较多,为保证预览截图的简洁性,本站将三维文件夹进行了打包。三维及CAD预览截图,均为本站电脑打开软件进行截图的,保证能够打开,下载原件超高清,下载后解压即可;
3、本站所有资源如无特殊说明,都需要本地电脑安装Office2007。图纸软件为AutoCAD,PROE,UG,SolidWorks,CATIA等;
4、本站所有图文资料仅供用户学习参考,不作为任何商用或其他用途;
5、本站不保证下载资源的准确性、安全性和完整性, 不包修改,不支持退换,同时也不承担用户因使用这些下载资源对自己和他人造成任何形式的伤害或损失;
6、 下载文件中如有侵权或不适当内容,请与我们联系,我们立即纠正。