

作品包括:
Word设计说明书1份
CAD版本图纸,共20张

摘要
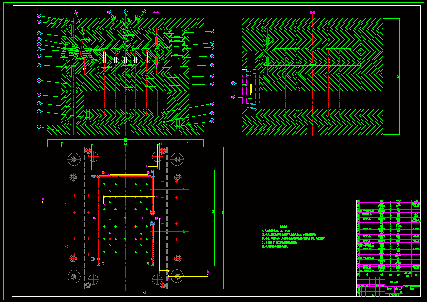
华为手机110外壳注塑模具设计【含20张CAD图纸】本设计主要介绍的是智能手机外壳注塑模具的设计方法,手机外壳在市面上不断出现着各种款式,本设计选用一款手机外壳(ABS)进行模具设计。手机外壳是一类体积小,形状、结构复杂的塑料零件,对模具设计制造要求较高。
温馨提示:
1、题目前面的备注【字母数字编号】为本站整理分类的编号,与课题内容无关,请选题时忽视;
2、若题目上备注三维,则表示文件里包含三维源文件,由于三维组成零件数量较多,为保证预览截图的简洁性,本站将三维文件夹进行了打包。三维及CAD预览截图,均为本站电脑打开软件进行截图的,保证能够打开,下载原件超高清,下载后解压即可;
3、本站所有资源如无特殊说明,都需要本地电脑安装Office2007。图纸软件为AutoCAD,PROE,UG,SolidWorks,CATIA等;
4、本站所有图文资料仅供用户学习参考,不作为任何商用或其他用途;
5、本站不保证下载资源的准确性、安全性和完整性, 不包修改,不支持退换,同时也不承担用户因使用这些下载资源对自己和他人造成任何形式的伤害或损失;
6、 下载文件中如有侵权或不适当内容,请与我们联系,我们立即纠正。