

作品包括:
Word设计说明书1份
CAD版本图纸,共12张
摘要
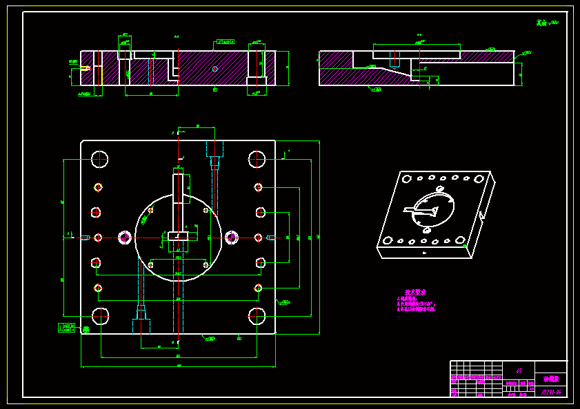
塑件结构比较复杂,表面质量要求也较高。如上图所示,塑件的前端有三处凹槽,且在圆筒内部,因而需要考虑内抽芯机构的设置。塑件外表面是环状的凹槽,内部是条状是凸梗,且相互垂直,开口处结构斜度达 ,深腔出结构斜度 左右。塑件外观质量要求高,外表面应避免出现划伤、气泡、缩孔、熔接痕等缺陷, 因而选用点浇口。脱模斜度较小,可考虑在此设置推推板顶出装置。
温馨提示:
1、题目前面的备注【字母数字编号】为本站整理分类的编号,与课题内容无关,请选题时忽视;
2、若题目上备注三维,则表示文件里包含三维源文件,由于三维组成零件数量较多,为保证预览截图的简洁性,本站将三维文件夹进行了打包。三维及CAD预览截图,均为本站电脑打开软件进行截图的,保证能够打开,下载原件超高清,下载后解压即可;
3、本站所有资源如无特殊说明,都需要本地电脑安装Office2007。图纸软件为AutoCAD,PROE,UG,SolidWorks,CATIA等;
4、本站所有图文资料仅供用户学习参考,不作为任何商用或其他用途;
5、本站不保证下载资源的准确性、安全性和完整性, 不包修改,不支持退换,同时也不承担用户因使用这些下载资源对自己和他人造成任何形式的伤害或损失;
6、 下载文件中如有侵权或不适当内容,请与我们联系,我们立即纠正。