

作品包括:
Word版设计说明书1份,共49页,约15000字
CAD版本图纸,共12张
UG三维图一份

摘要
机械以及塑料模具这些行业,他们在所有的制造业中都占有了很大很大的比重,特别是模具行业中领域也比较多种类和多样化,我们可以使用计算机辅助设计软件,这样就可以大大的提高了所有设计行业中的设计效率。但是由于模具行业的发展太快了,特别是塑料模具对市场的需求越来越多,所以要对塑料模具的设计提出更高的设计方法所以要对塑料模具的设计提出更高的设计方法提高效率。因为现代社会是一个信息技术的时代,所有的技术都在不断的发展,不断的升级。随着信息技术的不断升级与发展,CAD与CAM技术在机械设计建模以及实际设计过程中,出现的频率都是很高的,所以三维建模技术的作用要提高并且需要普及。
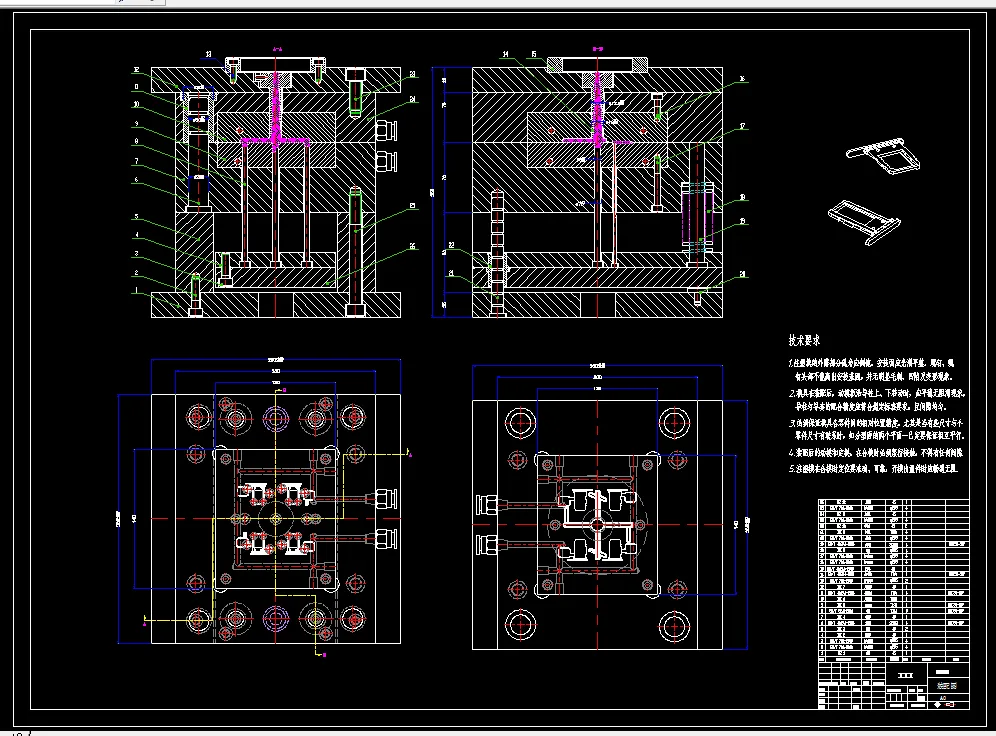
本篇的产品设计说明书阐述的是一块关于手机卡卡槽注塑模具的设计,由于机械手机卡卡槽注塑产量大,塑胶塑胶制件相对简单制作成本较低,因此适合使用塑胶模具进行大规模生产制造,为此设计出适合机械手机卡卡槽注塑生产制造的塑胶模具,关于塑胶制件的外观与结构做出分析,该产品的外观尺寸属于小型塑胶制件,产品结构相对简单尚无复杂的弧度与外观,对于最基本的产品分析确定塑胶制件的方案,经过分析后,该塑胶使用一模四腔的加工工艺进行生产与制造,并且设计机械手机卡卡槽注塑完整的塑胶模具示意图,参考机械塑胶模具的参数以及设计相关塑胶制件的尺寸,完成机械塑胶模具示意图和模具零件的装配图。
关 键 词:注塑模;模具的工艺与分析;注塑成型工艺
目录
第1章 绪 论 1
1.1 机械塑胶模具在工业制造行业中的地位 1
1.2模具相关技术趋势 2
1.3毕业设计的目的 3
第二章 塑件及注塑模可行性分析 4
2.1塑胶制件分析 4
2.2塑胶料的选用 5
第三章 注塑模具的机构和注射机的选用 7
3.1 塑胶制品的分模面位置的确定 7
3.1.1选择塑胶制件的塑胶制品的分模面 7
3.2.3机械塑胶模具结构形式的设计 7
3.3 注塑成型机器型号的确定 7
3.3.1注塑量的设计计算 8
3.3.2凝料体积的初步估算 8
3.3.3塑胶制件需锁模力的设计 9
3.3.4注塑成型机器的选择 10
3.4注塑成型机器的相关参数的计算 10
3.4.1注射压力计算 10
3.4.2锁模力计算 10
3.4.3注射量的校核 11
第四章 浇注系统的设计 12
4.1 主流道的设计 12
4.1.1主流道尺寸 13
4.1.2主流道的凝料体积 13
4.1.3主流道浇口套的形式 13
4.2 分流道的设计 15
4.2.1 分流道布置形式 15
4.3 浇口设计与布置 15
4.4 冷料穴及拉料杆的设计 16
第五章 成型部件结构及冷却设计 18
5.1 成型零件的结构设计 18
5.1.1动模仁(型芯)的结构设计 18
5.2 成型零件的钢材选用 19
5.3 成型零件工作尺寸的设计 19
5.4排气结构设计 23
5.5 注射模温度调节系统 24
5.5.1 冷却计算 24
第六章 脱模机构及模架选择校核 27
6.1 脱模机构的设计 27
6.1.1 脱模机构的选用 27
6.1.2 推杆机构的设计 27
6.2 模具的选择 28
6.2.1各模板尺寸的确定 28
5.1 注塑模具定位导向机构 29
5.2导向机构的设计 30
5.2.1 导柱的设计 30
6.4 模具外形安安装尺寸校核 30
6.5 注塑机的开模行的校核 30
结 论 32
参 考 文 献 33
感 谢 36
附录 37
温馨提示:
1、题目前面的备注【字母数字编号】为本站整理分类的编号,与课题内容无关,请选题时忽视;
2、若题目上备注三维,则表示文件里包含三维源文件,由于三维组成零件数量较多,为保证预览截图的简洁性,本站将三维文件夹进行了打包。三维及CAD预览截图,均为本站电脑打开软件进行截图的,保证能够打开,下载原件超高清,下载后解压即可;
3、本站所有资源如无特殊说明,都需要本地电脑安装Office2007。图纸软件为AutoCAD,PROE,UG,SolidWorks,CATIA等;
4、本站所有图文资料仅供用户学习参考,不作为任何商用或其他用途;
5、本站不保证下载资源的准确性、安全性和完整性, 不包修改,不支持退换,同时也不承担用户因使用这些下载资源对自己和他人造成任何形式的伤害或损失;
6、 下载文件中如有侵权或不适当内容,请与我们联系,我们立即纠正。