

作品包括:
Word版说明书1份,共26页,约5600字
外文翻译一份
CAD版本图纸,共4张
UG三维图一份
摘 要
塑料是可塑性很好的一种合成高分子材料,在现如今早已被应用到生活中各个领域,为了大批量生产各种塑件,因此塑料模具是必不可少的,此篇论文是关于拔键器的塑料模具设计,主要内容包括塑料件材料工艺分析,塑件结构公艺分析,型芯型腔尺寸确定,分型面的选择,冷却系统的设计,顶出机构的布置。本模具采用一模两腔、侧浇口进料的两板式机构,在结构公艺分析之后,使用AutoCAD、UG8.5等软件来设计注塑模
关键词:分型面;塑料;浇注系统
目 录
前 言 1
1 设计任务 2
2 塑件成型工艺分析 3
2.1 塑件结构材料分析 3
2.1.1 塑件材料分析 3
2.1.2 塑件结构分析 3
2.1.3 尺寸精度 4
2.1.4 拔模斜度 4
2.2 注塑机的选择 4
2.2.1 计算塑件体积与质量 4
2.2.2 确定型腔数量 4
2.2.3 选择注塑机的工艺参数 4
2.2.4 选择注塑机 5
2.3冷却系统的设置 6
3 分型面的选择与浇注系统的设计 7
3.1 分型面的选择 7
3.2 浇注系统的设计 8
3.2.1 主流道设计 8
3.2.2 分流道设计 8
3.2.3 浇口的设计 9
4 模具设计方案 10
4.1 型腔的位置的设计 10
4.2 成型零件的结构位置的设计 10
4.3 推出机构的设计 11
4.3.1 顶出方向 11
4.3.2 顶出距离 11
4.3.3 顶出方式 11
4.3.4 圆推杆规格大小设计 11
5 模架选择与计算 12
5.1 模架设计思路 12
5.2 模架型号的选用 12
6 相关数据的校验 13
6.1动定模尺寸 13
6.2 高度尺寸 13
6.3 开模行程 13
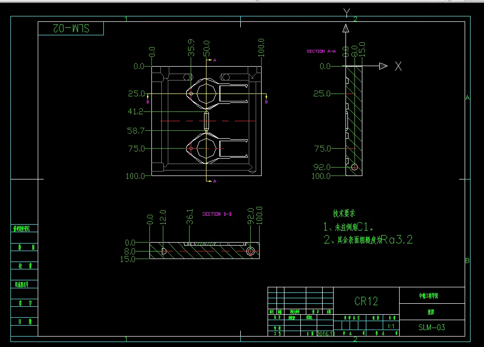
7 模具制图 14
总 结 17
致 谢 18
附 录 19
参考文献 20
温馨提示:
1、题目前面的备注【字母数字编号】为本站整理分类的编号,与课题内容无关,请选题时忽视;
2、若题目上备注三维,则表示文件里包含三维源文件,由于三维组成零件数量较多,为保证预览截图的简洁性,本站将三维文件夹进行了打包。三维及CAD预览截图,均为本站电脑打开软件进行截图的,保证能够打开,下载原件超高清,下载后解压即可;
3、本站所有资源如无特殊说明,都需要本地电脑安装Office2007。图纸软件为AutoCAD,PROE,UG,SolidWorks,CATIA等;
4、本站所有图文资料仅供用户学习参考,不作为任何商用或其他用途;
5、本站不保证下载资源的准确性、安全性和完整性, 不包修改,不支持退换,同时也不承担用户因使用这些下载资源对自己和他人造成任何形式的伤害或损失;
6、 下载文件中如有侵权或不适当内容,请与我们联系,我们立即纠正。