

作品包括:
Word版说明书1份,共23页,约5000字
开题报告一份
CAD版本图纸,共6张
UG三维图一份
摘 要
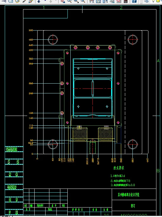
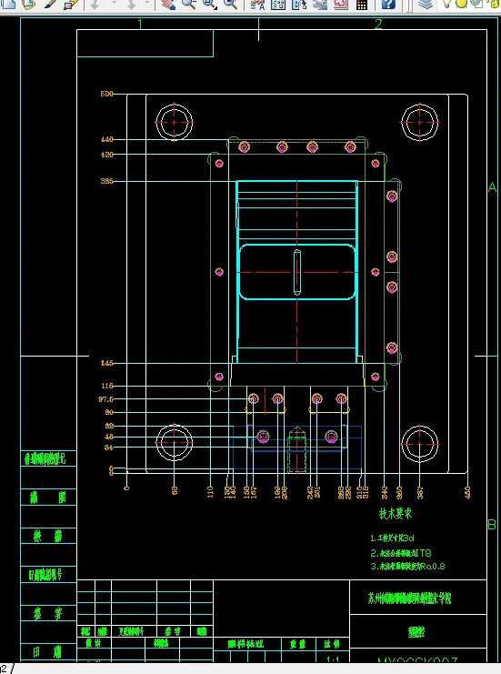
本论文是将模型汽车上壳作为设计模型,并且将所学的模具制造与设计作为论文依据,阐述了整个模型汽车上壳的设计过程。首先,利用UG对模型汽车上壳进行三维建模,并进行了产品结构的分析。其次,在UG中设计出浇注系统,脱模系统以及冷却系统。然后,模型汽车上壳的设计需要计算出塑件的尺寸以及尺寸精度,之后进行注塑机的选用,确定好注塑机的型号(厚度,模具的安装尺寸,模具的开模行程以及注塑机锁模力)。最后,采用了滑块推出的设计保证了模具工作时需要的强度和成本的节约。
关键词:塑料件;三维建模;滑块推出
目 录
前 言 1
1 工艺分析 2
1.1 产品分析 2
1.2 材料分析 2
2 成型分析 4
2.1 分型面的确定 4
2.2 模腔数量 4
2.3 塑件的质量和体积 5
2.4 模架选用 5
3 注塑机选用 6
4 冷却系统 7
4.1 水路设计原则 7
4.2 前后模水路设计 7
5 浇注系统 10
5.1 热流道浇注系统设计思路 10
5.2 主流道设计 10
5.3 主流道衬套(定位环)设计 11
6 抽芯机构设计 12
6.1 滑块设计 12
6.2 斜导柱设计 12
7 顶出机构设计 13
7.1 顶出机构概述 13
7.3 顶出机构设计 13
总 结 14
致 谢 15
附 录 16
参考文献 17
温馨提示:
1、题目前面的备注【字母数字编号】为本站整理分类的编号,与课题内容无关,请选题时忽视;
2、若题目上备注三维,则表示文件里包含三维源文件,由于三维组成零件数量较多,为保证预览截图的简洁性,本站将三维文件夹进行了打包。三维及CAD预览截图,均为本站电脑打开软件进行截图的,保证能够打开,下载原件超高清,下载后解压即可;
3、本站所有资源如无特殊说明,都需要本地电脑安装Office2007。图纸软件为AutoCAD,PROE,UG,SolidWorks,CATIA等;
4、本站所有图文资料仅供用户学习参考,不作为任何商用或其他用途;
5、本站不保证下载资源的准确性、安全性和完整性, 不包修改,不支持退换,同时也不承担用户因使用这些下载资源对自己和他人造成任何形式的伤害或损失;
6、 下载文件中如有侵权或不适当内容,请与我们联系,我们立即纠正。