

作品包括:
Word版说明书1份,共23页,约3600字
开题报告一份
CAD版本图纸,共4张
UG三维图一份
摘要
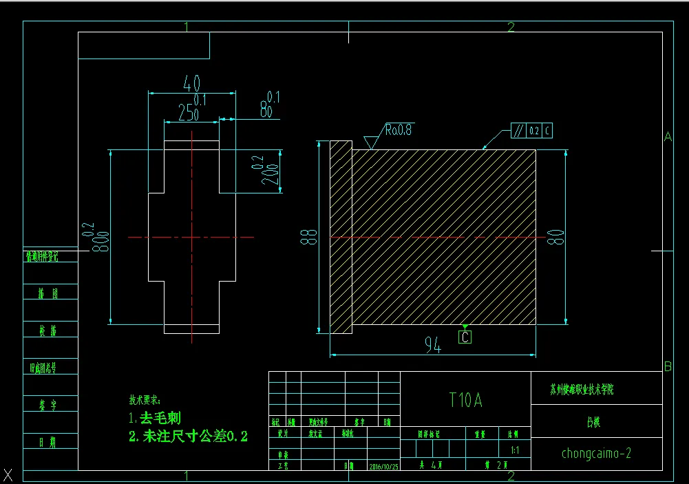
本设计通过分析片状垫片的产品特点,利用AutoCAD软件进行垫片模具的设计,详细的论述了垫片的整个设计过程。
本次毕业设计,主要包含了零件工艺性分析,冲压工艺方案的确定,工艺计算、模具结构形式等。通过对零件的冲压模具设计,巩固和深化了所学知识,掌握如何来设计模具,了解模具设计的关键所在。
关键词:片状垫片;冲压;模具
目录
前言1
1任务要求2
2零件工艺性分析3
2.1材料3
2.2零件结构3
2.3零件的尺寸精度3
3冲压工艺方案4
4工艺计算5
4.1工件尺寸及材料利用率5
4.2冲压力和压力中心计算5
4.3冲裁刃口尺寸计算6
4.3.1冲裁件尺寸及标注6
4.3.2冲裁间隙6
4.3.3确定刃口尺寸公差6
5模具类型及总体结构8
6.压力机型号与标准件选用9
6.1压力机型号9
6.2模架规格选择9
7协调模具尺寸,完成模具设计10
总结11
致谢12
附录13
参考文献16
前言
温馨提示:
1、题目前面的备注【字母数字编号】为本站整理分类的编号,与课题内容无关,请选题时忽视;
2、若题目上备注三维,则表示文件里包含三维源文件,由于三维组成零件数量较多,为保证预览截图的简洁性,本站将三维文件夹进行了打包。三维及CAD预览截图,均为本站电脑打开软件进行截图的,保证能够打开,下载原件超高清,下载后解压即可;
3、本站所有资源如无特殊说明,都需要本地电脑安装Office2007。图纸软件为AutoCAD,PROE,UG,SolidWorks,CATIA等;
4、本站所有图文资料仅供用户学习参考,不作为任何商用或其他用途;
5、本站不保证下载资源的准确性、安全性和完整性, 不包修改,不支持退换,同时也不承担用户因使用这些下载资源对自己和他人造成任何形式的伤害或损失;
6、 下载文件中如有侵权或不适当内容,请与我们联系,我们立即纠正。