

作品包括:
word版设计说明书一份,33页,约14000字
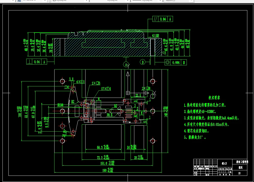
CAD版本图纸,共16张
玩具四驱车底座的成型工艺与模具设计
摘要:塑料工业是当今世界上增长最快的工业门类之一,而注塑模具是其中发展较快的种类,因此,研究注塑模具对了解塑料产品的生产过程和提高产品质量有很大意义。
本设计介绍了注射成型的基本原理,特别是单分型面注射模具的结构与工作原理,对注塑产品提出了基本的设计原则;详细介绍了冷流道注射模具浇注系统、温度调节系统和顶出系统的设计过程,并对模具强度要求做了说明;
通过本设计,可以对注塑模具有一个初步的认识,注意到设计中的某些细节问题,了解模具结构及工作原理;通过对UG的学习,可以建立较简单零件的零件库,从而有效的提高工作效率。
关键词:塑料模具;参数化;镶件;分型面
第1章 绪 论 1
1.1 引言 1
1.2 课题研发背景及意义 3
1.3 玩具四驱车底座注塑模设计基本设计思路 4
第2章 工艺分析 6
2.1产品三维造型 6
2.2塑件使用材料的分析 7
2.3塑件结构工艺性分析 8
第3章 模具设计 9
3.1概述 9
3.2确定型腔数目 9
3.3 注射机型号确定 9
3.4注射机及型腔数目的校核 10
3.5浇口设计 12
3.6冷料井的设计 14
3.7分型面的设计 14
3.8侧向抽芯机构的设计 15
第四章 和模导向机构设计 16
4.1机构的作用 16
4.1.1 导向机构的作用 16
4.1.2定位机构的作用 16
4.2导向机构的总体设计 16
4.3导柱的设计 16
4.4导套的设计 17
4.5导柱与导套的配合形式 17
4.6脱模阻力的计算 17
第五章模架的确定和标准件的选用 16
5.1模架的选用 17
5.2凹模部分的结构设计 17
5.2.1形式………………………………………………………………………… 20
5.2.2尺寸的计算…………………………………………………………………..20
5.3凸模部分的结构设计………………………………………………………………..22
结束语 26
参 考 文 献 27
致 谢 29
附录…………………………………………………………………………………………..30
温馨提示:
1、题目前面的备注【字母数字编号】为本站整理分类的编号,与课题内容无关,请选题时忽视;
2、若题目上备注三维,则表示文件里包含三维源文件,由于三维组成零件数量较多,为保证预览截图的简洁性,本站将三维文件夹进行了打包。三维及CAD预览截图,均为本站电脑打开软件进行截图的,保证能够打开,下载原件超高清,下载后解压即可;
3、本站所有资源如无特殊说明,都需要本地电脑安装Office2007。图纸软件为AutoCAD,PROE,UG,SolidWorks,CATIA等;
4、本站所有图文资料仅供用户学习参考,不作为任何商用或其他用途;
5、本站不保证下载资源的准确性、安全性和完整性, 不包修改,不支持退换,同时也不承担用户因使用这些下载资源对自己和他人造成任何形式的伤害或损失;
6、 下载文件中如有侵权或不适当内容,请与我们联系,我们立即纠正。