

作品包括:
word说明书一份,共40页,约16000字
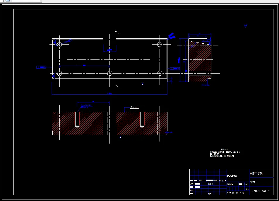
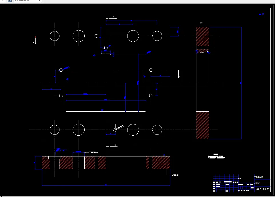
CAD版本图纸,共20张
摘要
塑料工业是当今世界上增长最快的工业门类之一,而注塑模具是其中发展较快的种类,因此,研究注塑模具对了解塑料产品的生产过程和提高产品质量有很大意义。本文的课题是游标卡尺盒注塑模具设计,文中首先对注塑件进行结构、工艺分析,然后通过测绘确定出了塑件的零件图。在已知塑件材料为PP1340的情况下,确定了PP1340的收缩率、塑件的尺寸精度、塑件的表面质量及成型的工艺参数,最后根据这些参数确定了注塑机的类型。在模具设计过程中,首先对分型面及型腔的数目进行确定,选择模架后分别对浇注系统、浇口、导向定位机构、滑块、顶出系统、排气系统、冷却系统进行设计。模具的初步设计完成后,用Solid works软件中的塑料顾问分别对浇口位置、塑料填充、冷却质量、注塑压力等进行分析,来验证模具设计的要否所合理,从而完成模具的设计。
关键词:塑料注塑模 塑件工艺分析 模具参数
目 录
1 引 言 1
2 注塑件的分析 2
2.1 注塑件零件图 2
2.2 塑件的工艺分析 2
2.3 PP1340塑料的主要工艺性能 3
2.4 PP1340的收缩率的确定 3
2.5 塑件的体积与质量计算 4
2.6 塑件的尺寸精度 4
3 注塑成型参数确定 8
3.1注塑成型工艺过程 8
3.2注塑机的选择 10
4 模具设计 13
4.1 模具设计的流程 13
4.2 分型面的确定及型腔数目的确定 14
4.3浇注系统设计 15
4.4.排气系统设计 19
4.5 成型零件的设计与计算 19
4.6. 温度调节系统的设计 24
5 注射机的校核 26
6 模具加工工艺流程 28
结论 30
参考文献 32
致谢 33
附录一 塑料制品的公差数值表 34
附录二 常用液压机的技术参数 35
附录三 部分国产常用注塑机的技术参数 36
温馨提示:
1、题目前面的备注【字母数字编号】为本站整理分类的编号,与课题内容无关,请选题时忽视;
2、若题目上备注三维,则表示文件里包含三维源文件,由于三维组成零件数量较多,为保证预览截图的简洁性,本站将三维文件夹进行了打包。三维及CAD预览截图,均为本站电脑打开软件进行截图的,保证能够打开,下载原件超高清,下载后解压即可;
3、本站所有资源如无特殊说明,都需要本地电脑安装Office2007。图纸软件为AutoCAD,PROE,UG,SolidWorks,CATIA等;
4、本站所有图文资料仅供用户学习参考,不作为任何商用或其他用途;
5、本站不保证下载资源的准确性、安全性和完整性, 不包修改,不支持退换,同时也不承担用户因使用这些下载资源对自己和他人造成任何形式的伤害或损失;
6、 下载文件中如有侵权或不适当内容,请与我们联系,我们立即纠正。