

作品包括:
Word版设计说明书1份
开题报告一份
CAD版本图纸,共5张
摘要
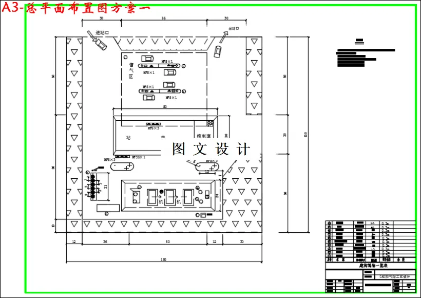
随着天然气工业迅速发展和人们对城市环境保护意识的加强,各国逐渐开始重视天然气这种新能源,认为它可以替代汽油和柴油作为汽车燃料能够有效的降低尾气污染物的排放。天然气汽车的推广是解决城市大气污染和汽车尾气污染问题的有效方式。天然气作为汽车燃料则具有环保性、安全性、经济性。因此建设压缩天然气加气站是非常必要的,具有极大社会效益和经济效益。CNG加气站主要包括了4个系统:脱硫脱水系统、压缩系统、储气系统,加气系统。本文对加气站4大系统主要作用和系统内的主要设备进行分析,找出了以下优化措施:(1)通过对脱硫系统优化选用固体脱硫剂的脱硫装置;(2)通过对压缩系统优化选用风冷型少油压缩机;(3)通过对储气设施优化选用储气井储气;(4)通过对加气系统优化选用智能型加气机。本设计主体内容包括设计说明书与计算书,其中设计说明书则包括设计依据、设计原则、设计内容、平面布置、遵循的标准、原始资料、工艺流程及平面布置说明、工艺计算结果。计算书包括管道选型的工艺计算,根据查阅的公式对不同管道的管径设计计算还有脱硫脱水系统的研究。图纸包括配气站总平面布置图和配气站站场工艺流程图。
温馨提示:
1、题目前面的备注【字母数字编号】为本站整理分类的编号,与课题内容无关,请选题时忽视;
2、若题目上备注三维,则表示文件里包含三维源文件,由于三维组成零件数量较多,为保证预览截图的简洁性,本站将三维文件夹进行了打包。三维及CAD预览截图,均为本站电脑打开软件进行截图的,保证能够打开,下载原件超高清,下载后解压即可;
3、本站所有资源如无特殊说明,都需要本地电脑安装Office2007。图纸软件为AutoCAD,PROE,UG,SolidWorks,CATIA等;
4、本站所有图文资料仅供用户学习参考,不作为任何商用或其他用途;
5、本站不保证下载资源的准确性、安全性和完整性, 不包修改,不支持退换,同时也不承担用户因使用这些下载资源对自己和他人造成任何形式的伤害或损失;
6、 下载文件中如有侵权或不适当内容,请与我们联系,我们立即纠正。