

作品包括:
Word版设计说明书1份,共75页,约28000字
任务书一份
开题报告一份
CAD版本图纸,共4张

摘 要
本设计是扩建年产4万吨淡色啤酒糖化工艺及糖化车间设计。进行了全厂工艺论证、设计及选择。主要原料为麦芽,辅料为大米,麦芽占75%、大米占25%。糖化工艺采用二次煮出糖化法,糊化温度100摄氏度,糊化时间85分钟,糖化温度100摄氏度,糊化时间130分钟,麦汁过滤温度为78摄氏度,麦汁煮沸采用传统煮沸方法,煮沸强度10%、煮沸时间90分钟,酒花添加采用酒花颗粒直接添加,啤酒酵母采用下面发酵酵母,啤酒发酵采用下面发酵法,前发酵温度8摄氏度、时间8天,主发酵温度6摄氏度、时间6天,后发酵及贮酒温度3摄氏度、时间7天。
进行了全厂物料衡算、热量衡算和耗冷计算。全年生产300天,旺季生产200天、旺季产量占全年产量的80%,日糖化6次。全年成品啤酒产量40868.5吨。全年耗用麦芽0.44万吨,大米0.15吨,酒花83588千克。全年耗蒸汽量2.7万吨,每小时最大蒸汽耗量6998千克。全年工艺耗水量每小时177.5吨。
进行了糖化车间主要设备选型和车间布置设计。糖化车间设备采用三锅两槽配置。主要设备糊化锅全容积8.75立方米、糖化锅全容积13.78立方米、过滤槽23.33立方米、麦汁煮沸锅32.38立方米、回旋沉淀槽29.62立方米,辅助设备大米粉碎机麦芽粉碎机、大米暂贮箱、大麦暂贮箱、大米粉暂贮箱、麦芽粉暂贮箱、麦汁暂贮箱、麦糟斗、热凝固物回收罐、冷却器、泵。
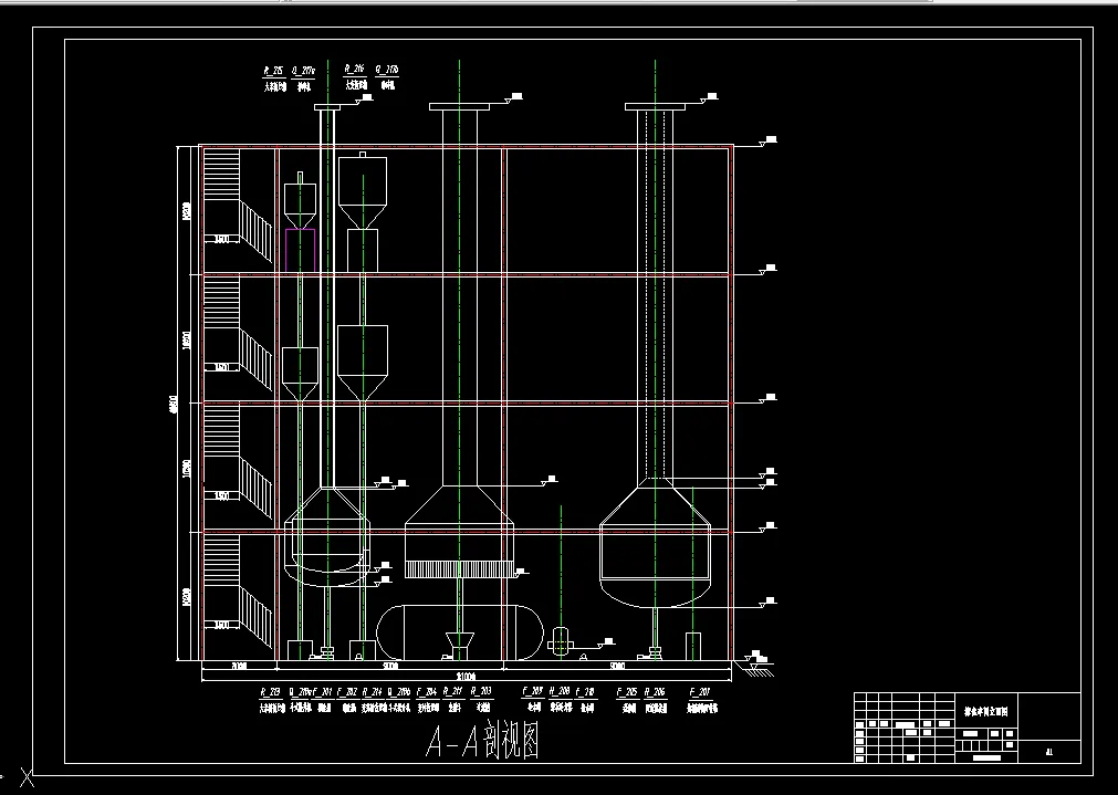
绘制全厂工艺流程方框图一张、糖化车间带控制点工艺流程图一张、糖化车间平面图布置图一张、糖化车间立面图布置图一张。
关键词:糖化;工艺设计;设备;车间布置;
目 录
摘要••••••••••••••••••••••••••••••••••••••••••••••••••••••••••••••••••••••••••••••••••••••••••••••••••••Ⅰ
1 绪论[1] 1
2 全厂工艺论证与设计 3
2.1 原料的选择[1] 3
2.1.1 麦芽 3
2.1.2 麦芽的分类 3
2.1.3 麦汁制造的工艺要求 5
2.1.4 酿造用水[1] 5
2.1.5 啤酒花[1] 9
2.1.6 其他辅料 12
2.2 麦芽汁的制备[2] 14
2.2.1 麦芽输送 14
2.2.2 麦芽干粉碎 15
2.2.3 原料糖化 16
2.2.4 麦缪过滤 20
2.2.5 麦汁的煮沸 21
2.2.6 麦汁后处理 23
2.3 啤酒发酵[3] 25
2.3.1 酵母的发酵机制 25
2.3.2 啤酒的发酵方法 26
2.3.3啤酒的发酵设备 28
2.4 啤酒过滤 28
2.4.1 啤酒过滤理论 28
2.4.2 啤酒过滤方式的选择与论证 29
2.5 啤酒的包装 29
2.6 全厂工艺流程图 30
3 工艺计算 31
3.1 物料衡算[4] 31
3.1.1 定额指标 31
3.1.2 糖化车间物料衡算 31
3.2 热量衡算[4] 35
3.2.1 糖化用水耗热量 35
3.2.2 第一次米醪煮沸耗热量Q2 36
3.2.3 第二次煮沸前混合醪升温至70℃的耗热量Q3 37
3.2.4 第二次煮沸混合醪的耗热量Q4 37
3.2.5 洗糟水耗热量Q5 38
3.2.6 麦汁煮沸过程耗热量Q6 38
3.2.7 糖化一次总耗热量Q总 39
3.2.8 糖化一次耗用蒸汽量D 39
3.2.9 糖化过程每小时最大蒸汽耗量Qmax 39
3.2.10蒸汽单耗 39
3.3 工艺耗水量计算 40
3.3.1 糖化用水量 40
3.3.2 洗糟用水量 40
3.3.3 糖化室洗刷用水量 40
3.3.4 麦汁冷却器冷却用水 40
3.3.5 澄清槽洗刷用水 41
3.3.6 麦芽冷却器清洗用水 41
3.3.7 CPI装置洗涤用水 41
3.3.8 CPI系统配洗液用水 41
3.3.9 过冷却器洗刷用水 41
3.3.10硅藻土过滤机洗刷用水 41
3.3.11清酒罐洗刷用水 41
3.3.12洗瓶机用水 42
3.3.13装酒机洗刷用水 42
3.3.14杀菌机用水 42
3.3.15鲜啤酒桶洗刷用水 42
3.3.16包装车间地面洗刷用水 42
3.3.17其他用水 42
4 设备选型及计算 43
4.1 糊化锅[5][6] 43
4.1.1 容器的计算 43
4.1.2 壁厚的计算 46
4.1.3 搅拌机 49
4.1.4 加热面积计算 50
4.1.5 支座设计 52
4.2 糖化锅 54
4.3 过滤槽 55
4.4 煮沸锅 55
4.5 回旋沉淀槽 56
4.6 其他附属设备选型 57
4.6.1 提升机 57
4.6.2 大米、麦芽粉碎机 57
4.6.3 大麦暂存箱 57
4.6.4 麦芽粉贮箱 58
4.6.5 大米暂存箱 59
4.6.6 大米粉贮箱 59
4.6.7 麦汁暂贮罐 60
4.6.8 麦糟斗 60
4.6.9 热凝固物回收罐 61
4.6.10麦汁冷却器 61
4.6.11泵的选择 62
5 糖化车间的布置 63
5.1 概述[2][7] 63
5.1.1 车间布置设计的目的和重要性 63
5.1.2 车间布置设计的依据 63
5.1.3 糖化车间布置设计的成果 64
5.2 车间布置设计的原则 64
5.3 车间布置设计的内容 64
5.3.1 厂房整体布置和轮廓设计 64
5.3.2 设备的排列和布置 64
5.4 车间布置设计的步骤方法 65
结论 66
参考文献 67
致 谢68
温馨提示:
1、题目前面的备注【字母数字编号】为本站整理分类的编号,与课题内容无关,请选题时忽视;
2、若题目上备注三维,则表示文件里包含三维源文件,由于三维组成零件数量较多,为保证预览截图的简洁性,本站将三维文件夹进行了打包。三维及CAD预览截图,均为本站电脑打开软件进行截图的,保证能够打开,下载原件超高清,下载后解压即可;
3、本站所有资源如无特殊说明,都需要本地电脑安装Office2007。图纸软件为AutoCAD,PROE,UG,SolidWorks,CATIA等;
4、本站所有图文资料仅供用户学习参考,不作为任何商用或其他用途;
5、本站不保证下载资源的准确性、安全性和完整性, 不包修改,不支持退换,同时也不承担用户因使用这些下载资源对自己和他人造成任何形式的伤害或损失;
6、 下载文件中如有侵权或不适当内容,请与我们联系,我们立即纠正。