

作品包括:
Word版设计说明书1份
CAD版本图纸,共6张
摘要
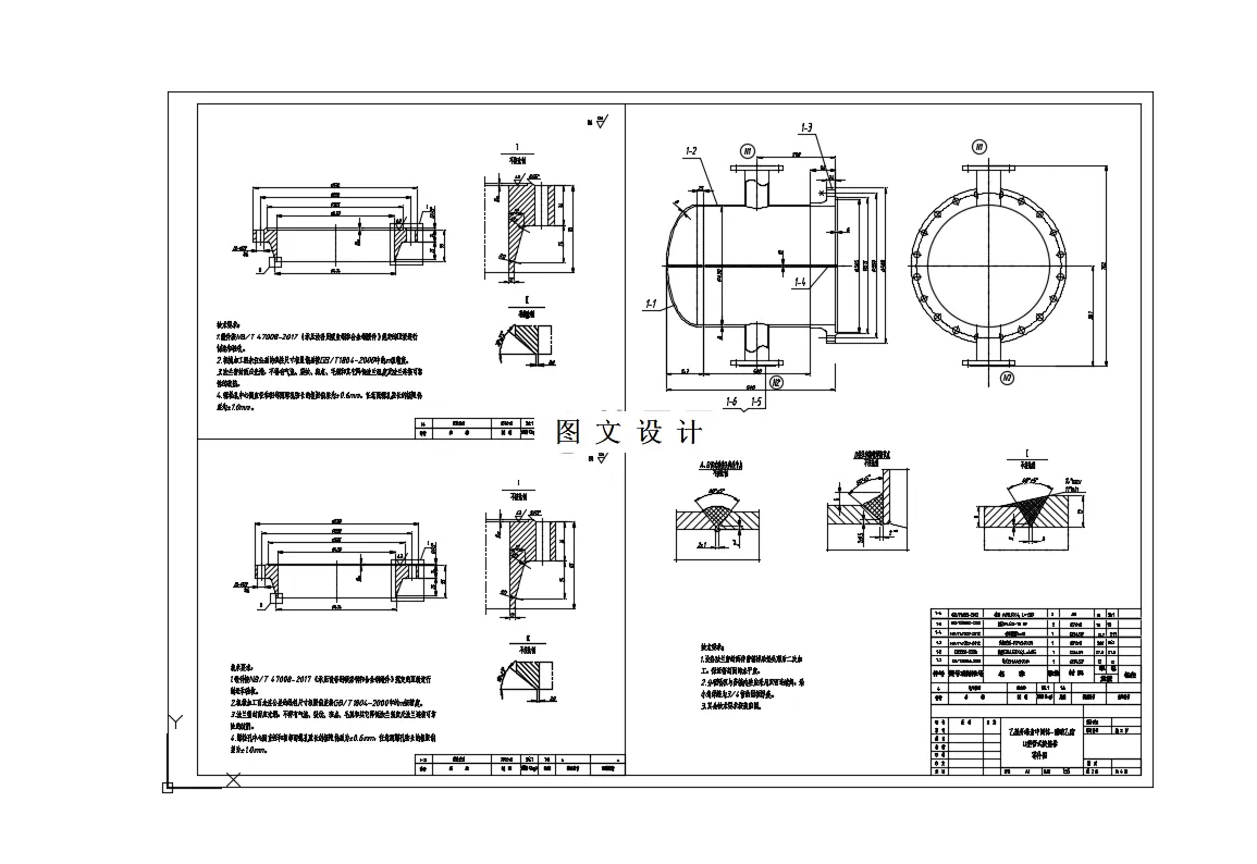
醋酸乙酯的用途广泛。本课题设计一套15万吨/年醋酸乙酯热交换装置。换热介质为循环水和乙酸异丙酯,易结垢,温差较小,所以选择的换热设备为管壳式换热器中的U型管换热器。其结构简单,造价实惠,无热应力,易于清洗,传热性能较好,且循环水走管程,乙酸异丙酯走壳程。本次设计的工艺计算主要包括确定流体物性参数、估算换热面积、确定换热管数和程数、计算流体流动阻力等。结构计算和强度校核主要包括筒体管箱设计和校核、封头设计和校核、接管设计、换热管设计、管箱法兰及其紧固件设计、接管法兰及其紧固件设计、拉杆和定距管设计、管板设计和校核、鞍座设计和校核等。本次设计主要结算结果如下:换热管规格为,管长为6000m,共106根,材料为20号钢。所设计压力容器属于长圆形截面容器,所以筒体,壳体和封头的直径、厚度相等。直径为400mm,厚度为8mm,材料都为Q345R,管箱和壳体封头都为EHA标准椭圆封头。所有校核均满足要求。925670
温馨提示:
1、题目前面的备注【字母数字编号】为本站整理分类的编号,与课题内容无关,请选题时忽视;
2、若题目上备注三维,则表示文件里包含三维源文件,由于三维组成零件数量较多,为保证预览截图的简洁性,本站将三维文件夹进行了打包。三维及CAD预览截图,均为本站电脑打开软件进行截图的,保证能够打开,下载原件超高清,下载后解压即可;
3、本站所有资源如无特殊说明,都需要本地电脑安装Office2007。图纸软件为AutoCAD,PROE,UG,SolidWorks,CATIA等;
4、本站所有图文资料仅供用户学习参考,不作为任何商用或其他用途;
5、本站不保证下载资源的准确性、安全性和完整性, 不包修改,不支持退换,同时也不承担用户因使用这些下载资源对自己和他人造成任何形式的伤害或损失;
6、 下载文件中如有侵权或不适当内容,请与我们联系,我们立即纠正。