

作品包括:
Word版说明书1份,共49页,约17000字
CAD版本图纸,共4张
目录
第一章 总论 2
第一节 设计任务和内容 2
第二节 基本资料 2
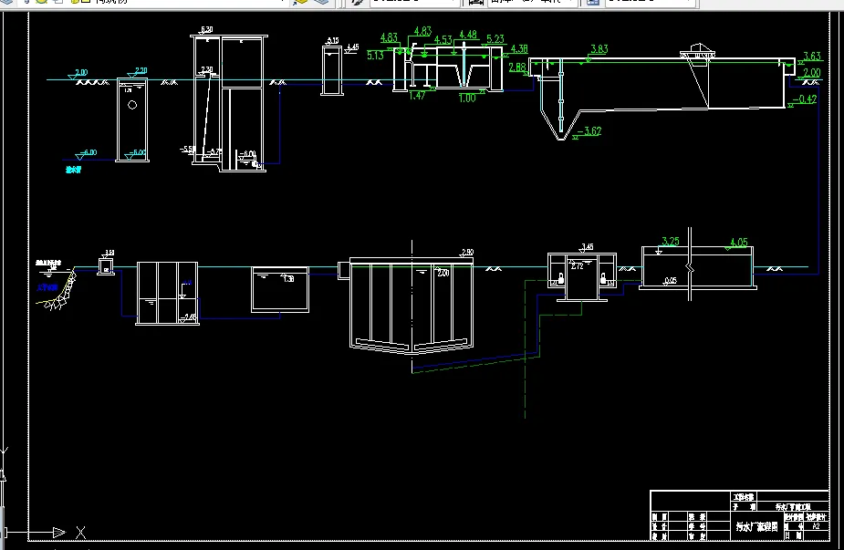
第二章 污水处理工艺流程说明 4
第三章 处理构筑物设计计算 4
第一节 格栅间和泵房 5
1、粗格栅 5
(1)设计参数 5
(2)设计计算 5
2、泵房 6
(1)设计参数 6
(2)、泵房设计计算 6
3、泵后细格栅 7
(1)设计参数 7
(2)设计计算 7
第二节 沉砂池 9
第三节 初沉池 9
第四节 曝气池(氧化沟) 14
1.设计参数 14
2.设计计算 14
第五节 二沉池 19
1.池体设计 19
2.进出水系统计算 21
3.集配水井设计计算 24
第六节 浓缩池及污泥脱水 25
1.污泥量计算 25
2.污泥浓缩池 26
3.贮泥池 29
4.污泥脱水间的设计计算 30
第七节 过滤消毒 31
1.滤池的布置 31
2.滤池的设计计算 32
3.反冲洗系统设计 38
4 .反冲洗泵房设计 40
5.消毒 42
第五章 污水厂总体布置 44
第一节 主要构(建)筑物与附属建筑物 44
第二节 污水厂平面布置 46
第三节 污水厂高程布置 48
温馨提示:
1、题目前面的备注【字母数字编号】为本站整理分类的编号,与课题内容无关,请选题时忽视;
2、若题目上备注三维,则表示文件里包含三维源文件,由于三维组成零件数量较多,为保证预览截图的简洁性,本站将三维文件夹进行了打包。三维及CAD预览截图,均为本站电脑打开软件进行截图的,保证能够打开,下载原件超高清,下载后解压即可;
3、本站所有资源如无特殊说明,都需要本地电脑安装Office2007。图纸软件为AutoCAD,PROE,UG,SolidWorks,CATIA等;
4、本站所有图文资料仅供用户学习参考,不作为任何商用或其他用途;
5、本站不保证下载资源的准确性、安全性和完整性, 不包修改,不支持退换,同时也不承担用户因使用这些下载资源对自己和他人造成任何形式的伤害或损失;
6、 下载文件中如有侵权或不适当内容,请与我们联系,我们立即纠正。