

作品包括:
Word设计说明书1份,共33页,约10000字
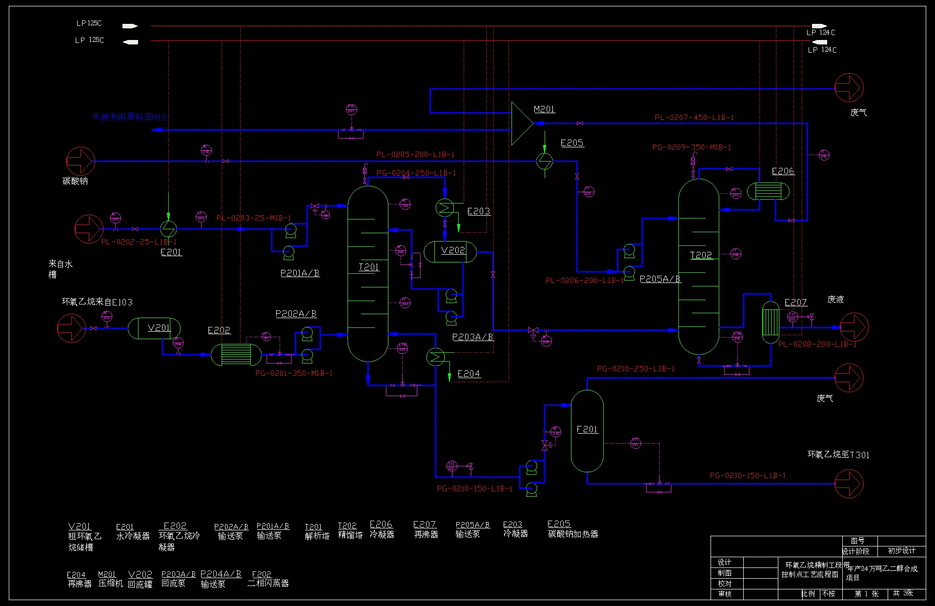
CAD版本图纸,共8张
摘要
年产34万吨乙二醇化工厂可行性设计,乙二醇作为一种常规的化学产品,在制冷剂和聚脂方面得到了广泛的应用。工艺上采用乙烯催化氧化生成环氧乙烷,而后水合制得乙二醇的方法,相对于合成气法、二氯乙烷水解法,方法更为简单、成熟和清洁,同时我们还在此基础上对催化剂技术、塔分离技术、节能技术等方面进行了创新。产品制得纯度为99.99%的乙二醇以及纯度达99.8%的副产物二乙二醇,年产达到34万吨。 本厂整个生产过程较为清洁,且采用高效、节能的生产技术,具有很高的社会效益;同时,原料利用率高、副产物纯度高,生产成本相对较低,为总厂提供丰厚的利润收益,经济效益明显。
温馨提示:
1、题目前面的备注【字母数字编号】为本站整理分类的编号,与课题内容无关,请选题时忽视;
2、若题目上备注三维,则表示文件里包含三维源文件,由于三维组成零件数量较多,为保证预览截图的简洁性,本站将三维文件夹进行了打包。三维及CAD预览截图,均为本站电脑打开软件进行截图的,保证能够打开,下载原件超高清,下载后解压即可;
3、本站所有资源如无特殊说明,都需要本地电脑安装Office2007。图纸软件为AutoCAD,PROE,UG,SolidWorks,CATIA等;
4、本站所有图文资料仅供用户学习参考,不作为任何商用或其他用途;
5、本站不保证下载资源的准确性、安全性和完整性, 不包修改,不支持退换,同时也不承担用户因使用这些下载资源对自己和他人造成任何形式的伤害或损失;
6、 下载文件中如有侵权或不适当内容,请与我们联系,我们立即纠正。