

作品包括:
Word版说明书1份,共46页,约14000字
CAD版本图纸,共3张
摘 要
**水库灌区引水干渠控制灌区农田面积4330hm2,经黄家沟时经比较采用渡槽方案,工程为III等工程,主要建筑物为3级。
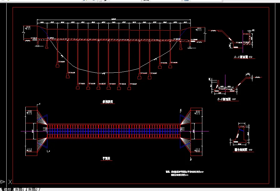
修筑的渡槽采用矩形梁式渡槽,槽底宽为2.0m,侧墙高1.71m,设有间距为2.0m高为0.1m的拉杆,考虑到交通要求,还设有0.85m宽的人行板。黄家沟顶宽约有120m,沟深约为8m,属狭长V形断面,无常流水,沟内有良田,可种植经济作物。耕作深度1.0m。本设计布置等跨的间距为8m的单排架共13跨,与渐变段连接处采用浆砌石槽台。排架与地基的连接采用整体基础。槽身、排架以及基础采用预制吊装形式,为使预制时简单、方便,将排架分为三组。
细部结构中本设计采用沥青填料式止水;支座采用一端固定,一端活动的形式。
关 键 词
渡槽;拉杆;排架
第一章 设计基本资料 …………………………………………………………………… 1
1、工程概况及简介 …………………………………………………………………… 1
1.1、工程概况……………………………………………………………………… 1
1.2、设计要求 …………………………………………………………………… 2
1.3、主要参考书 ………………………………………………………………… 2
第二章 渡槽总体布置……………………………………………………………………… 3
1、槽址选择 …………………………………………………………………………… 3
2、结构选型 …………………………………………………………………………… 3
2.1、槽身的选择 ………………………………………………………………… 3
2.2、支承选择 …………………………………………………………………… 3
3、平面总体布置 ……………………………………………………………………… 3
第三章 水力计算…………………………………………………………………………… 4
1、槽身过水断面尺寸拟定 …………………………………………………………… 4
1.1、尺寸拟定…………………………………………………………………………… 4
1.2、输水水头高 ……………………………………………………………………… 4
2、渡槽进出口的底部高程确定 ……………………………………………………… 5
3、进出口渐变段 ……………………………………………………………………… 6
第四章 槽身设计…………………………………………………………………………… 7
1、槽身断面尺寸拟定 ………………………………………………………………… 7
1.1、尺寸拟定 …………………………………………………………………… 7
2、荷载及荷载组合 …………………………………………………………………… 7
2.1、荷载计算 …………………………………………………………………… 7
3、横向结构计算 ……………………………………………………………………… 8
3.1、受力情况分析 ……………………………………………………………… 8
3.2、拉杆轴向力计算 …………………………………………………………… 9
3.3、侧墙内力计算 ………………………………………………………………10
3.4、底板内力计算 ………………………………………………………………11
3.5、横向配筋计算 ………………………………………………………………12
3.6、拉杆斜截面计算 ……………………………………………………………16
4、槽身纵向结构计算 …………………………………………………………………16
4.1、荷载计算 ……………………………………………………………………17
4.2、计算纵向配筋 ………………………………………………………………17
4.3、斜截面强度计算 ……………………………………………………………17
5、抗裂计算 ……………………………………………………………………………18
5.1、纵向抗裂计算 ………………………………………………………………18
5.2、横向抗裂计算 ………………………………………………………………19
6、吊装计算 ……………………………………………………………………………22
6.1、吊装验算 ……………………………………………………………………22
第五章 排架计算 ………………………………………………………………………… 24
1、排架布置 ……………………………………………………………………………24
2、排架尺寸拟定 ………………………………………………………………………24
2.1、排架高度计算 ………………………………………………………………24
2.2、排架分组计算 ………………………………………………………………24
2.3、排架分组及尺寸拟定…………………………………………………………25
2.4、尺寸拟定 ……………………………………………………………………25
3、荷载计算 ……………………………………………………………………………26
3.1、水平荷载 ……………………………………………………………………26
3.2、垂直荷载(传给每各立柱的荷载) …………………………………………27
4、排架横向计算 ………………………………………………………………………29
4.1、求排架弯矩M ………………………………………………………………29
4.2、轴向力计算 …………………………………………………………………30
4.3、排架的配筋计算 ……………………………………………………………31
4.3、横梁配筋 ……………………………………………………………………32
4.4、排架的纵向计算 ……………………………………………………………33
4.5、排架吊装验算 ………………………………………………………………35
4.6、牛腿设计计算 ………………………………………………………………36
第 六 章 基础计算 ……………………………………………………………………… 38
1、基础结构尺寸拟定 …………………………………………………………………38
1.1、排架基础尺寸拟定 …………………………………………………………38
2、基础的荷载组合 ……………………………………………………………………38
3、基础应力计算 ………………………………………………………………………39
4、基础配筋计算 ………………………………………………………………………39
第七章 稳定计算 ………………………………………………………………………… 40
1、槽身稳定计算 ………………………………………………………………………40
2、渡槽整体沿基础底面抗滑稳定验算 ………………………………………………40
3、渡槽整体抗倾稳定计算 ……………………………………………………………41
4、地基稳定性验算 ……………………………………………………………………41
第八章 细部结构…………………………………………………………………………… 43
1、伸缩缝及止水……………………………………………………………………… 43
2、支座………………………………………………………………………………… 43
3、两岸连接…………………………………………………………………………… 43
温馨提示:
1、题目前面的备注【字母数字编号】为本站整理分类的编号,与课题内容无关,请选题时忽视;
2、若题目上备注三维,则表示文件里包含三维源文件,由于三维组成零件数量较多,为保证预览截图的简洁性,本站将三维文件夹进行了打包。三维及CAD预览截图,均为本站电脑打开软件进行截图的,保证能够打开,下载原件超高清,下载后解压即可;
3、本站所有资源如无特殊说明,都需要本地电脑安装Office2007。图纸软件为AutoCAD,PROE,UG,SolidWorks,CATIA等;
4、本站所有图文资料仅供用户学习参考,不作为任何商用或其他用途;
5、本站不保证下载资源的准确性、安全性和完整性, 不包修改,不支持退换,同时也不承担用户因使用这些下载资源对自己和他人造成任何形式的伤害或损失;
6、 下载文件中如有侵权或不适当内容,请与我们联系,我们立即纠正。