

作品包括:
说明书1份,共37页,约10000字左右
工序卡一套
工艺过程卡一张
CAD版本本图纸,共4张

摘要
设计内容“花键轴”零件机械加工工艺编制及夹具设计。通过对任务书的解读,内容有加工工艺规程,专用夹具两部分。在掌握零件作用以及对其进行分析的基础上,完成了这两部分的设计内容。
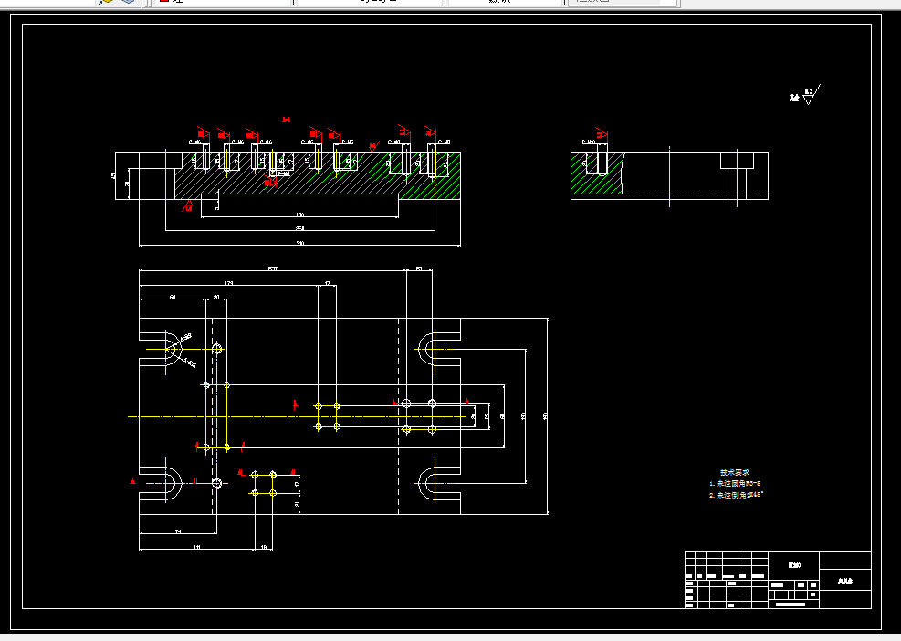
在进行设计之前,对机床专用夹具部分的内容进行了了解和掌握。对零件花键轴的零件图进行了分析,知晓该花键轴的作用是传递相关的运动和动力,因为零件在工作中承受的载荷不是很大,工作相对平稳,其材料是常见45钢,并经正火处理。编写了加工工艺路线,填写过程卡还有工序卡,对其中相应切削数据进行计算。完成了零件毛坯图的绘制,坯料用热轧圆钢。
本次设计的专用夹具是为铣削加工宽为8mm键槽而进行的。采用立式铣床进行加工。在明确定位原理的基础上,完成零件定位方案的设计;选择了定位元件;完成夹紧方案的设计;选择了夹紧元件。还对对刀块、铣削力等。
关键词:花键轴、加工工艺、8mm键槽、夹具、立式铣床
目 录
摘要 I
第一章 花键轴零件结构分析 1
1.1 零件的作用 1
1.2 零件的组成表面 1
1.3 零件的加工要求 2
第二章 机械加工工艺规程设计 3
2.1 机械加工工艺规程概述 3
2.1.1 机械加工工艺规程的概述 3
2.1.2 机械加工艺规程的作用 3
2.1.3 制定机械加工工艺规程的原则 3
2.2 零件生产类型、材料、制造形式及热处理 4
2.2.1 零件的生产类型 4
2.2.2 零件的材料 4
2.2.3 零件的制造形式 4
2.2.4 零件的热处理 4
2.3 零件的毛坯图 4
2.4 零件加工基准的选择 5
2.5 零件加工工艺路线的设计 5
2.6 零件加工装备、装夹方案、刀具及量具的选择 6
2.7 零件加工余量的确定 7
2.8 零件切削用量及基本工时的计算 10
第三章 铣床专用夹具设计 28
3.1 定位方案的确定 28
3.1.1 花键轴定位方案的确定 28
3.1.2 其他零件定位方案的确定 28
3.2 定位元件的确定 28
3.2.1 花键轴定位元件的确定 28
3.2.2 其他零件定位元件的确定 28
3.3 夹紧方案的确定 29
3.3.1 花键轴夹紧方案的确定 29
3.3.2 其他零件夹紧方案的确定 29
3.4 夹紧元件的确定 29
3.3.1 花键轴夹紧元件的确定 29
3.3.2 其他零件夹紧元件的确定 29
3.5 夹具体的确定 29
3.6 导向装置的确定 30
3.7 铣削力的确定 30
3.8 夹紧力的确定 30
3.9 定位误差的确定 31
结论 32
致谢 33
参考文献 34
温馨提示:
1、题目前面的备注【字母数字编号】为本站整理分类的编号,与课题内容无关,请选题时忽视;
2、若题目上备注三维,则表示文件里包含三维源文件,由于三维组成零件数量较多,为保证预览截图的简洁性,本站将三维文件夹进行了打包。三维及CAD预览截图,均为本站电脑打开软件进行截图的,保证能够打开,下载原件超高清,下载后解压即可;
3、本站所有资源如无特殊说明,都需要本地电脑安装Office2007。图纸软件为AutoCAD,PROE,UG,SolidWorks,CATIA等;
4、本站所有图文资料仅供用户学习参考,不作为任何商用或其他用途;
5、本站不保证下载资源的准确性、安全性和完整性, 不包修改,不支持退换,同时也不承担用户因使用这些下载资源对自己和他人造成任何形式的伤害或损失;
6、 下载文件中如有侵权或不适当内容,请与我们联系,我们立即纠正。