

作品包括:
word版本说明书一份,共19页,约8300字
CAD版本图纸,共6张
摘要
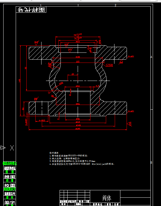
阀门是流体管路的控制装置,它是用来切断和接通管路介质,用于控制流体的压力、方向和流量的装置。本课题设计的阀门为升降式止回阀。它是由阀体、阀盖和阀瓣组成。阀体是阀门中最重要的零件之一,它是用来传输介质的主要流动通道,承受着工作介质的压力、温度、冲蚀和腐蚀,它是阀门总装配的基础。阀盖是阀门中承受压力的重要零件之一,在使用过程中不但承受机制的压力,还承受着阀瓣启闭的冲击压力。阀瓣是阀门中负责启闭的重要零件之一,在使用过程中,通过介质的压力自动启闭,同时,防止介质倒流。本课题设计的阀门为升降式。它既省去了很多零件(如支架、压板、阀杆摇杆……)、节省了原材料,又方便生产、方便使用,不仅给公司节省了生产时间和成本,同时也为使用者带来了很多方便。
关键词:阀门 升降式止回阀 阀体 阀盖 阀瓣
目 录
1绪论……………………………………………………………………………3
2阀门设计的基本内容…………………………………………………………4
2.1阀门的型号编制方法………………………………………………………4
2.2阀门设计所需具备的基本数据……………………………………………8
2.3阀门设计应掌握的数据和技术要求………………………………………8
3止回阀的设计…………………………………………………………………9
3.1升降式止回阀的概述………………………………………………………9
3.2止回阀阀体的设计与计算…………………………………………………9
3.2.1阀体设计的基本内容……………………………………………………10
3.2.2阀体的结构设计…………………………………………………………10
3.2.3阀体壁厚的设计…………………………………………………………10
3.3止回阀阀盖的设计与计算…………………………………………………12
3.3.1阀盖设计的基本内容……………………………………………………12
3.3.2阀盖的结构设计…………………………………………………………12
3.3.3阀盖厚度的设计…………………………………………………………12
3.4止回阀阀瓣的设计与计算…………………………………………………13
3.4.1阀瓣设计的基本内容……………………………………………………13
3.4.2阀瓣的结构设计…………………………………………………………13
3.4.3阀瓣尺寸的设计…………………………………………………………14
4止回阀的检查和试验…………………………………………………………14
4.1止回阀的检查………………………………………………………………14
4.1.1止回阀铸件的检查………………………………………………………14
4.1.2止回阀主要尺寸的检查…………………………………………………15
4.1.3止回阀清洁度的检查……………………………………………………15
4.2止回阀的压力试验…………………………………………………………16
4.2.1阀体的壳体试验…………………………………………………………16
4.2.2阀门的密封试验…………………………………………………………17
结 论…………………………………………………………………………18
致 谢…………………………………………………………………………18
参考文献…………………………………………………………………………19
温馨提示:
1、题目前面的备注【字母数字编号】为本站整理分类的编号,与课题内容无关,请选题时忽视;
2、若题目上备注三维,则表示文件里包含三维源文件,由于三维组成零件数量较多,为保证预览截图的简洁性,本站将三维文件夹进行了打包。三维及CAD预览截图,均为本站电脑打开软件进行截图的,保证能够打开,下载原件超高清,下载后解压即可;
3、本站所有资源如无特殊说明,都需要本地电脑安装Office2007。图纸软件为AutoCAD,PROE,UG,SolidWorks,CATIA等;
4、本站所有图文资料仅供用户学习参考,不作为任何商用或其他用途;
5、本站不保证下载资源的准确性、安全性和完整性, 不包修改,不支持退换,同时也不承担用户因使用这些下载资源对自己和他人造成任何形式的伤害或损失;
6、 下载文件中如有侵权或不适当内容,请与我们联系,我们立即纠正。