

作品包括:
设计说明书一份,共49页,约14000字
任务书一份.
开题报告一份.
翻译一份.
CAD版本图纸,共7张
钢筋弯曲机的结构设计
摘要:通过强度计算分析,认为现有GW-40弯曲机的大部分零件有较大的设计裕量,需要改变个别零部件及电动机功率即可大幅度提高加工能力满足ф40钢筋的弯曲加工。还可升级为GW-50钢筋弯曲机。
GW-40型半自动钢筋弯曲机适用于弯曲Φ6-Φ40毫米钢筋之用,本机的传动机构采用全封闭式,变速杆换挡,可使工作盘得到两种转速,钢筋的弯曲角度由工作盘侧面的挡块调节,机械部分通过电器控制实现半自动。
关键词:钢筋弯曲机 始弯矩 终弯矩 主轴扭矩 控制设备
目 录
1 绪论 1
1.1 国内外发展现状 1
1.2 概 述 1
2 钢筋弯曲机的结构设计 3
2.1 系统性能与参数 3
2.2 系统工作原理及框图 3
2.3 弯矩计算 4
2.3.1 工作状态 4
2.3.2 材料达到屈服极限时的始弯矩 5
2.4电动机选择 6
2.4.1. 电动机的介绍 6
2.4.2. 电机的选择原则 7
2.5轴承的选择 9
2.5.1 滚动轴承的选择 9
2.5.2 16008轴承的配合的选择 9
2.6控制设备的选择 9
2.6.1 变频器的概述 9
2.6.2 变频器的工作原理 10
2.6.3 变频器的类型选择 11
2.6.4 变频器容量的选择 12
2.6.5 技术参数 12
3 参数的计算 16
3.1 V带传动设计 16
3.2 第一级圆柱齿轮设计 19
3.2.1 选择材料 19
3.2.2 按接触强度进行初步设计 19
3.2.3 齿轮校核 21
3.2.4 齿轮及齿轮副精度的检验项目计算 23
3.3 第三级圆柱齿轮的设计 25
3.3.1 选择材料 25
3.3.2 按接触强度进行初步设计 25
3.3.3 校核齿轮 27
3.3.4 齿轮及齿轮副精度的检验项目计算 29
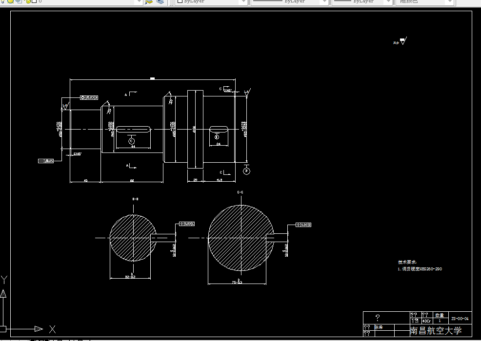
3.4 中间轴的设计 31
3.4.1 计算作用在轴上的力 31
3.4.2 计算支力和弯矩 31
3.4.3 对截面进行校核 34
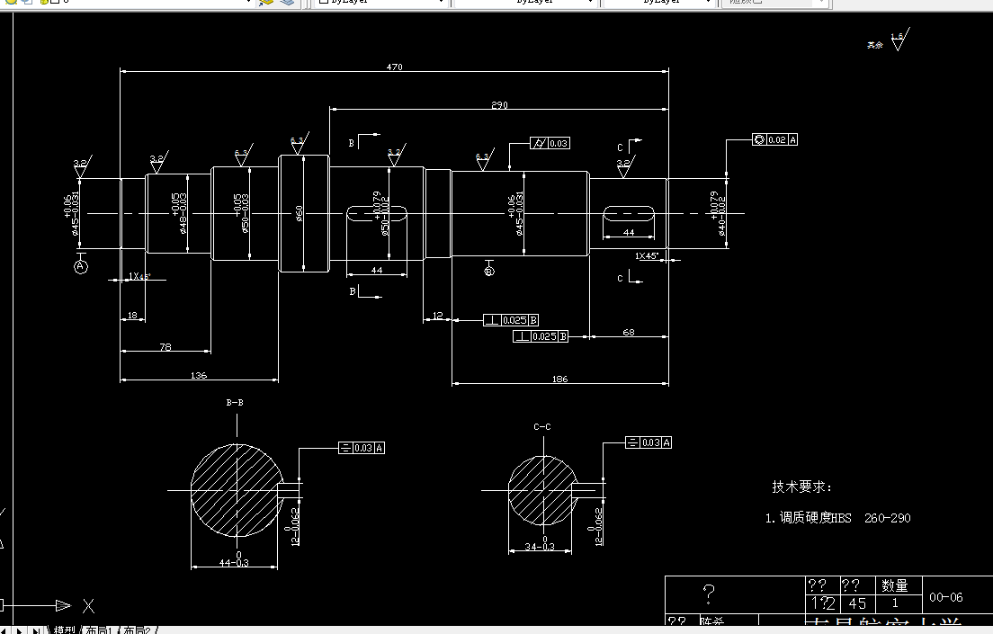
3.4.4 中间轴的工作图 36
3.5 主轴设计 37
3.5.1 计算作用在轴上的力 37
3.5.2 计算支力和弯矩 37
3.5.3 对截面进行校核 39
4 钢筋弯曲机的建模与仿真设计 42
4.1 UG简介 42
4.2 主要零件造型 43
4.2.1 工作台 43
4.2.2 齿轮 43
4.2.3 轴 45
4.2.4 弯曲机三维模型的模拟装配 47
结论 51
参考文献 52
致 谢 53
温馨提示:
1、题目前面的备注【字母数字编号】为本站整理分类的编号,与课题内容无关,请选题时忽视;
2、若题目上备注三维,则表示文件里包含三维源文件,由于三维组成零件数量较多,为保证预览截图的简洁性,本站将三维文件夹进行了打包。三维及CAD预览截图,均为本站电脑打开软件进行截图的,保证能够打开,下载原件超高清,下载后解压即可;
3、本站所有资源如无特殊说明,都需要本地电脑安装Office2007。图纸软件为AutoCAD,PROE,UG,SolidWorks,CATIA等;
4、本站所有图文资料仅供用户学习参考,不作为任何商用或其他用途;
5、本站不保证下载资源的准确性、安全性和完整性, 不包修改,不支持退换,同时也不承担用户因使用这些下载资源对自己和他人造成任何形式的伤害或损失;
6、 下载文件中如有侵权或不适当内容,请与我们联系,我们立即纠正。