

作品包括:
word版设计说明书一份,共79页,约45000字
任务书一份
CAD版本图纸,共7张
A0-泵站.dwg
A0-车间平面布置图.dwg
A0-装缸机.dwg
A2-泵组.dwg
A2-导向套.dwg
A2-液压缸装配图.dwg
A3-连轴器.dwg
摘 要
生产线规划设计是工厂设计的重要环节之一,是工艺投资成败的关键,更关系到企业是否可持续发展。生产线具有较大的灵活性,能适应多品种生产的需要。在产品品种规格较为复杂,零部件数目较多,每种产品产量不多,机器设备不足的企业里,采用生产线能取得良好的经济效益。
众所周知,一个产品的形成过程离不开以下几大环节:产品的开发、设计、产品的制造加工、产品的部件装配及最终装配。这些环节构成了产品的成本因素。如今的社会,已进入了计算机与信息时代,计算机及其软件技术的广泛应用,使产品的开发设计及产品制造加工环节的效率大大提高,而唯有装配环节不能覆盖(除少数装配工序采用机器人作业外),大量的手工劳动(人员作业)仍然并将继续存在。为提高效率、降低成本,我们须为此找出有效的分析管理方法。
本文对生产线进行了设计,主要内容包括液压缸的结构、装配液压缸的工艺过程、车间平面布置以及针对液压缸导向套装配困难进行了立式装缸机的设计。
关键词:生产线; 液压缸; 装配; 车间布置;
目 录
1 绪论 1
1.1生产线概念 1
1.2生产线分类 1
1.3生产线的发展 1
2 生产线设计 3
2.1液压缸结构 3
2.1.1立柱的结构组成 3
2.1.2千斤顶的结构组成 5
2.2装缸工艺过程 6
2.2.1装配前的准备工作 6
2.2.2装配要求 7
2.2.3各种液压缸的装配 8
2.2.4密封件的装配 9
2.3工艺装备 14
2.4车间平面布置 14
2.4.1车间设施布置的发展 16
2.4.2车间设施的布置 17
2.4.3基于不同物料流向而设计的车间设施布置的类型 18
2.4.4生产流程 22
2.4.5工艺过程 24
2.4.6基本要素分析 28
2.4.7操作内容安排 29
2.4.8方案的确定 32
2.5零件的清洗及吹干 33
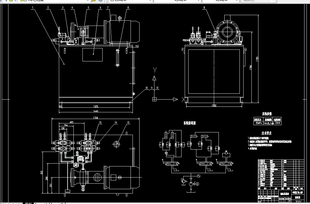
3 装缸机设计 35
3.1装缸机概述 35
3.2机架设计 36
3.2.1机架应满足的要求 36
3.2.2导轨 38
4 液压泵站设计 41
4.1系统原理图 41
4.2液压缸基本参数确定 42
4.3系统压力与各工况流量计算 49
4.4液压泵的选择 51
4.5电动机的选择 54
4.6马达选型 54
4.7液压元件选择 55
4.7.1单向调速阀 55
4.7.2单向阀 55
4.7.3液控单向阀 55
4.7.4溢流阀 56
4.7.5换向阀 56
4.7.6其他元件 56
4.8油箱设计 57
4.9管路选择 59
4.10泵站布置方案 60
5 液压缸设计计算 62
5.1缸筒 63
5.2缸盖 67
5.3导向套 68
5.4缸体端部联接型式 69
5.5活塞 70
5.6活塞杆结构 71
5.7液压缸缓冲、排气装置 72
5.8液压缸油口直径的计算 72
5.9密封装置 73
6 乳化液泵站及物流设备的选择 75
6.1乳化液泵站的选择 75
6.2物流设备的选择 75
结 论 77
参考文献 78
致 谢 79
毕业设计题目: 液压缸装配生产线及液压缸装缸机的设计
熟悉各种液压缸的构造并掌握其装配工艺,设计一条液压缸装配生产线。
设计并绘制车间布置总图、立式或卧式装缸机总装图及装缸机泵站总图,并选取代表性的零部件进行详细计算并绘图,总图量折合后不少于3张0#图纸。
按照《中国矿业大学本科生毕业设计撰写规范》整理计算说明书,总字数不少于35000字
温馨提示:
1、题目前面的备注【字母数字编号】为本站整理分类的编号,与课题内容无关,请选题时忽视;
2、若题目上备注三维,则表示文件里包含三维源文件,由于三维组成零件数量较多,为保证预览截图的简洁性,本站将三维文件夹进行了打包。三维及CAD预览截图,均为本站电脑打开软件进行截图的,保证能够打开,下载原件超高清,下载后解压即可;
3、本站所有资源如无特殊说明,都需要本地电脑安装Office2007。图纸软件为AutoCAD,PROE,UG,SolidWorks,CATIA等;
4、本站所有图文资料仅供用户学习参考,不作为任何商用或其他用途;
5、本站不保证下载资源的准确性、安全性和完整性, 不包修改,不支持退换,同时也不承担用户因使用这些下载资源对自己和他人造成任何形式的伤害或损失;
6、 下载文件中如有侵权或不适当内容,请与我们联系,我们立即纠正。