

作品包括:
说明书1份,共44页,约15000字左右
CAD版本图纸,共4张
中文摘要
制造业是一个国家或地区经济发展的重要支柱,其发展水平标志着该国家或地区的经济实力、科技水平、生活水准和国防实力。而制造业的生产能力主要取决于制造装备——机床的先进程度。
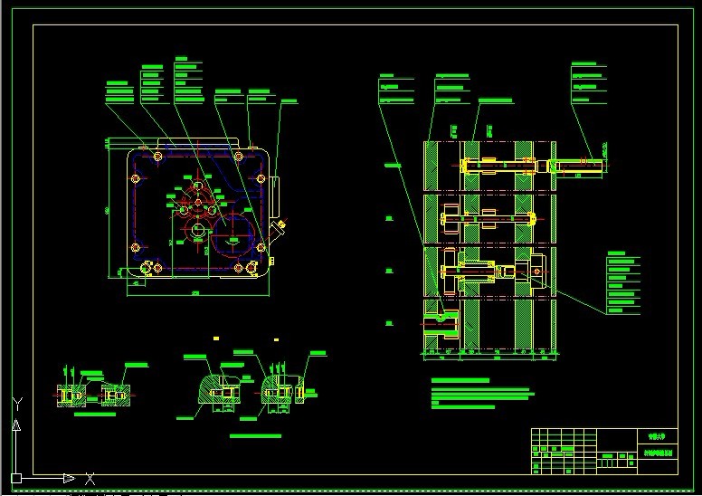
钻孔组合机床是大型组合机床,动力滑台实现进给运动。滑台上的动力箱实现切削运动。该组合机床由侧底座、中间底座、JT机械动力头、多轴箱等组成。本文对各部分的设计进行了详细的计算和论证。
组合机床总体设计----三图一卡①“被加工零件工序图”它是组合机床的设计的主要依据,它是制造使用,检修和调整机床的重要技术条件②绘制加工示意图,它是刀具夹具,多轴箱及通用部件选择主要原始资料,它是调整机床,刀具及试车依据。③绘制机床联系尺寸图,它是检验机床各部件相对于位置及联系是否满足加工要求,并为进一步开展主轴箱,夹具等专用部件,零件的设计提供依据。④生产率计算卡,它用来反映机床的加工过程,完成这一动作所需要的时间,切削用量,机床生产率及机床负荷率。
主轴箱设计,按专用要求进行设计,由通用零件组成,其主要作用是根据被加工零件的要求,安排各主轴位置并将动力和运动由电机或动力部件传给各主轴,使之得到要求的转速,本机床多轴箱箱体尺寸自行设计,用中间传动轴带动主轴传动。
关键词:组合机床,主轴箱,钻孔机床
目 录
第一章 绪论 1
第一节 机床在国民经济的地位及其发展简史 1
第二节 组合机床的国内、外现状 3
第三节 机床设计的目的、内容、要求 4
第二章 组合机床的总体设计 5
第一节 机床总体布局 5
第二节 主要技术参数的确定 5
第三节 “三图一卡”的编制 8
第四节 多轴箱的设计 23
结 论 33
致 谢 34
参考文献 35
附录 生产率计算卡的C语言编程计算 36
第一节 程序的编写 36
第二节 程序的执行 39
温馨提示:
1、题目前面的备注【字母数字编号】为本站整理分类的编号,与课题内容无关,请选题时忽视;
2、若题目上备注三维,则表示文件里包含三维源文件,由于三维组成零件数量较多,为保证预览截图的简洁性,本站将三维文件夹进行了打包。三维及CAD预览截图,均为本站电脑打开软件进行截图的,保证能够打开,下载原件超高清,下载后解压即可;
3、本站所有资源如无特殊说明,都需要本地电脑安装Office2007。图纸软件为AutoCAD,PROE,UG,SolidWorks,CATIA等;
4、本站所有图文资料仅供用户学习参考,不作为任何商用或其他用途;
5、本站不保证下载资源的准确性、安全性和完整性, 不包修改,不支持退换,同时也不承担用户因使用这些下载资源对自己和他人造成任何形式的伤害或损失;
6、 下载文件中如有侵权或不适当内容,请与我们联系,我们立即纠正。