欢迎来到龙图网在线图文分享平台-CAD图纸,设计说明书,工业设计3D模型,三维软件下载!   客服QQ:2363701252
热搜:

工艺夹具 模具设计 数控编程 土木工程 3D模型

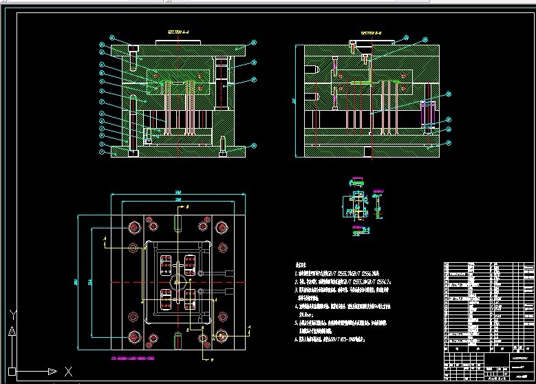
R600-U盘上盖注塑模具设计[含UG三维图] 下载积分:150 资料编号: R600

1.打开支付宝或者微信扫描二维码。
2.填写金额:150 
3.添加备注,填写资料编号:
资料编号: R600
4.支付成功后,请发资料编号到邮箱:jxsj168@qq.com
会有专人在15分钟内把资料发到您邮箱
备注:如果付款忘记填写资料编号,则发邮件时附带您的交易明细截图即可。
请耐心等待,如超过30分钟还没收到,请联系客服QQ:2363701252
点击分享:

作品描述

作品包括:

说明书1份,共34页,约10000字左右

CAD版本本图纸,共11张

UG三维图一份


摘  要

  U盘是一种无需物理驱动器的微型高容量移动存储产品,通过USB接口进行连接。U盘连接到电脑的USB接口后,U盘的资料可与电脑交换。而之后生产的类似技术的设备由于朗科已进行专利注册,而不能再称之为“优盘”,而改称谐音的“U盘”。后来,U盘这个称呼因其简单易记而因而广为人知,是移动存储设备之一。

本设计主要针对U盘上盖塑件,应用计算机辅助模具设计。设计中首先根据塑料制品要求拟定成型工艺方案、初选成型设备、确定模具结构方案,设计浇注系统并进行模流分析、选用模架、选择和校核注射机,完成模具型腔设计并对模具主要零件设计计算,然后应用UG软件,完成整副模具的三维设计,并对模具进行了虚拟装配和试模,针对其中出现的问题,对模具进行了修改,最后导出模具二维工程图。


关键词:U盘上盖;注塑模具;ABS

目录

摘  要 I

Abstract II

前言 1

第一章  塑件成型工艺分析 3

1.1  塑件的分析 3

1.2  ABS的性能分析 3

第二章  模具的结构形式 6

2.1分型面位置的确定 6

2.2型腔数量和排列方式的确定 7

2.3 注射机型号的确定 7

第三章  浇注系统的设计 11

3.1 浇注系统的作用 11

3.2 浇注系统的组成 11

3.3 主流道设计 11

3.4分流道设计 12

3.5 浇口设计  12

3.6 冷料穴设计 13

第四章  成型零件的结构设计及计算 14

4.1成型零件的结构设计 14

4.2 成型零件钢材的选用 15

4.3 成型零件工作尺寸的计算 15

第五章  排气系统的设计 18

第六章  导向与脱模机构的设计 19

6.1导柱、导套的设计 19

        6.2  导向孔的总体布局 20

6.3脱模推出机构的确定 20

6.3.1推杆横截面直径的确定 21

6.3.2推杆的形式 21

第七章  冷却装置的设计 22

7.1冷却时间的计算 22

7.2 冷却水管直径 23

7.3 冷却水道的结构 23

第八章  注射模具结构类型及模架的选用 24

8.1 确定模架组合形式 24

8.2 模具安装校核 24

小结 26

致谢 27

参考文献 28

温馨提示:

1、题目前面的备注【字母数字编号】为本站整理分类的编号,与课题内容无关,请选题时忽视;

2、若题目上备注三维,则表示文件里包含三维源文件,由于三维组成零件数量较多,为保证预览截图的简洁性,本站将三维文件夹进行了打包。三维及CAD预览截图,均为本站电脑打开软件进行截图的,保证能够打开,下载原件超高清,下载后解压即可;

3、本站所有资源如无特殊说明,都需要本地电脑安装Office2007。图纸软件为AutoCAD,PROE,UG,SolidWorks,CATIA等;

4、本站所有图文资料仅供用户学习参考,不作为任何商用或其他用途;
5、本站不保证下载资源的准确性、安全性和完整性, 不包修改,不支持退换,同时也不承担用户因使用这些下载资源对自己和他人造成任何形式的伤害或损失;

6、 下载文件中如有侵权或不适当内容,请与我们联系,我们立即纠正。


线