

作品包括:
说明书1份,共44页,约12000字左右
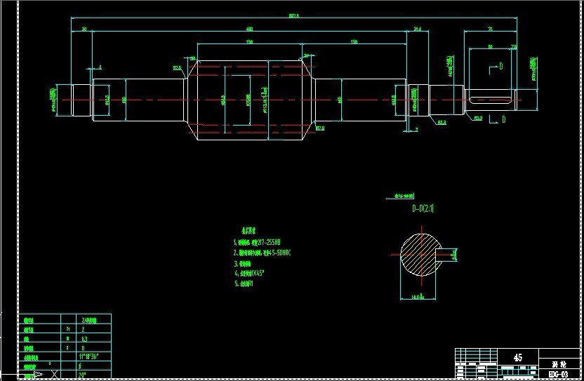
CAD版本本图纸,共3张
摘要
这篇课程设计的论文主要阐述的是一套系统的关于蜗轮蜗杆减速器的设计,运用SolidWords软件对蜗轮蜗杆减速器进行设计和实体造型。
通过对减速器的简单了解,学习设计蜗轮蜗杆减速器并尝试设计增强感性认知和社会的认知能力,也进一步巩固了自己学习过的理论知识,提高综合运用所学知识发现问题并能解决所发现的问题。学习如何进行机械类设计,学习运用多种工具如CAD、SolidWords等软件应用,机械传动装置都会在使用过程中产生不同程度上的磨损,因此要对机械进行维护和保养,使其延长使用寿命,高效化的运行,提高生产率,降低生产成本,获得使用效率的最大化。
蜗轮蜗杆减速器是讲电机的回转数减速到所需要的回转数,并得到较大的转矩的结构,目前用于传递动力和运动的机构当中,应用范围十分广泛。本文首先通过对所需电动机的转速和功率进行计算,再结合表中数据选出合适的电动机。再根据对不同的齿数和模数等参数进行切量的计算,选出最优参数,通过减速器的简单了解,及进一步巩固自己所学过的理论知识,把理论和实践结合到一起,为以后工作和能够更好地学习积累宝贵的经验。
关键词: 蜗轮蜗杆减速器; SolidWords软件; 结构设计; 三维实体建模;
目 录
第一章 绪论 1
1.1 选题背景和目的 1
1.2 减速器简介及其发展现状和前景 1
1.2.1 减速器简介 1
1.2.2 减速器的发展现状和前景 2
1.3 蜗轮蜗杆减速器的介绍 2
第二章 蜗轮蜗杆减速器的参数设计 4
2.1 设计方案 4
2.1.1 减速器的工作条件 4
2.1.2 传动装置布置方案 4
2.2 电动机的选择 5
2.2.1 选择电机的类型 5
2.2.2 选择电机的功率 5
2.3 传动装置及动力参数计算 6
2.3.1 各轴转速的计算 6
2.3.2 各轴功率的计算 7
2.3.3 各轴扭矩的计算 7
2.4 传动结构设计及计算 7
2.4.1 选择蜗杆传动类型 7
2.4.2 选择材料 7
2.4.3 按照齿面接触的疲劳强度进行设计 8
2.4.4 蜗杆与蜗轮的主要参数与几何尺寸 9
2.4.5 校核齿根弯曲疲劳强度 10
2.4.6 验算效率 11
2.4.7 精度等级公差和表面粗糙度的确定 11
2.4.8 热平衡核算 11
2.5 轴的结构设计及计算 12
2.5.1 按扭矩初算最小轴径 12
2.5.2 轴上零件的定位、固定和装配 12
2.5.3 确定轴的各段直径和长度 12
2.5.4 轴上的受力计算及校核 14
2.6 轴承的选择与校核 18
2.6.1 输入轴轴承的选择与校核 18
2.6.2 输出轴轴承的选择与校核 19
2.7 键的选择与校核 20
2.7.1 输入轴与电动机轴采用平键连接 20
2.7.2 输出轴与联轴器连接采用平键连接 21
2.7.3 输出轴与蜗轮连接用平键连接 21
2.8 联轴器的选择与计算 21
2.8.1 与电机输出轴的配合的联轴器 21
2.8.2 与减速器输出轴轴配合的联轴器 22
第三章 蜗轮蜗杆减速器的三维实体设计 24
3.1 三维建模原理 24
3.2 螺栓的三维设计 24
3.3 蜗杆的三维设计 25
3.4 蜗轮的三维设计 27
3.5 箱体的三维设计 29
3.5.1 箱体上的附件结构和作用 29
3.5.2 上、下箱体的建模 30
3.6 虚拟装配 31
3.6.1 虚拟装配的意义 31
3.6.2 装配过程 32
第四章 经济技术性分析 35
参考文献 36
致谢 37
温馨提示:
1、题目前面的备注【字母数字编号】为本站整理分类的编号,与课题内容无关,请选题时忽视;
2、若题目上备注三维,则表示文件里包含三维源文件,由于三维组成零件数量较多,为保证预览截图的简洁性,本站将三维文件夹进行了打包。三维及CAD预览截图,均为本站电脑打开软件进行截图的,保证能够打开,下载原件超高清,下载后解压即可;
3、本站所有资源如无特殊说明,都需要本地电脑安装Office2007。图纸软件为AutoCAD,PROE,UG,SolidWorks,CATIA等;
4、本站所有图文资料仅供用户学习参考,不作为任何商用或其他用途;
5、本站不保证下载资源的准确性、安全性和完整性, 不包修改,不支持退换,同时也不承担用户因使用这些下载资源对自己和他人造成任何形式的伤害或损失;
6、 下载文件中如有侵权或不适当内容,请与我们联系,我们立即纠正。