

作品包括:
说明书1份,共20页,约5800字左右
CAD版本图纸,共6张
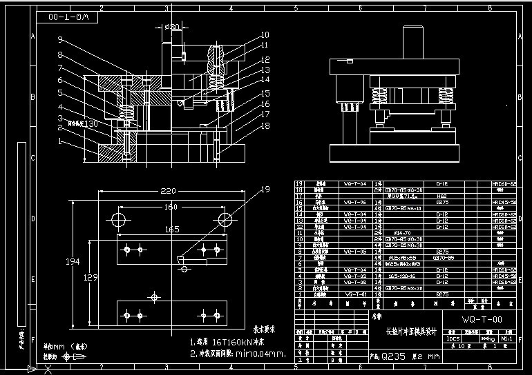
长垫片复合冲压模具的设计
摘要:模具是现代工业的重要工艺设备,随着科学技术的不断进步,它在国民经济中占有越来越重要的地位,发展前景十分广阔。装备制造业在2007年的迅速发展,尤其是汽车和电子电器产品的高速增长,为模具工业的发展营造了良好的市场环境。本次综合实训设计垫片的复合冲压模具,从零件的工艺性分析到模具结构的设计再到工艺计算,一直到最后的模具装配图。
关键词:垫片、复合冲压模具、设计
目 录
引言(绪论)1
一、冲裁件的工艺性分析7
二、确定冲压工艺方案7
三、选择模具结构形式7
1.模具的形式4
2.定位装置4
3.卸料装置4
4.导向零件4
5.模架4
四、必要的工艺计算8
1.排样设计与计算4
2.计算冲压力4
3.计算模具压力中心4
4.计算模具刃口尺寸4
五、垫片复合模主要零件的设计计算4
1.落料凹模 4
2.冲孔凸模长度及强度校核 4
3.凸凹模长度确定及壁厚校核 4
4.凸凹模固定板尺寸 4
5.垫板结构与设计4
6.卸料板的设计4
7.模座的选择4
六、压力机校核 4
1.模柄孔的校核 4
2.模具闭合高度的校核 4
3.压力机工作台尺寸的校核 4
4.冲裁力校核4
七、绘制模具总装配图及零件图14
课程设计小结24
致谢 4
参考文献25
温馨提示:
1、题目前面的备注【字母数字编号】为本站整理分类的编号,与课题内容无关,请选题时忽视;
2、若题目上备注三维,则表示文件里包含三维源文件,由于三维组成零件数量较多,为保证预览截图的简洁性,本站将三维文件夹进行了打包。三维及CAD预览截图,均为本站电脑打开软件进行截图的,保证能够打开,下载原件超高清,下载后解压即可;
3、本站所有资源如无特殊说明,都需要本地电脑安装Office2007。图纸软件为AutoCAD,PROE,UG,SolidWorks,CATIA等;
4、本站所有图文资料仅供用户学习参考,不作为任何商用或其他用途;
5、本站不保证下载资源的准确性、安全性和完整性, 不包修改,不支持退换,同时也不承担用户因使用这些下载资源对自己和他人造成任何形式的伤害或损失;
6、 下载文件中如有侵权或不适当内容,请与我们联系,我们立即纠正。