

作品包括:
word版设计说明书一份,共93页,约33000字
CAD版本图纸,共10张
毕业设计任务书
毕业论文题目:采煤机截割部的设计
毕业论文专题题目:
毕业论文主要内容和要求:
毕业设计内容:
题目:采煤机截割部的设计
主要技术参数:
适应倾角( ):
适应煤质硬度:f =1.8~2.5
截割电机功率:150 kW
滚筒转速:37 r/min
截割高度范围:1.5m 3.2m
截深(m): 0.63
滚筒直径:1.6m
毕业设计要求:
(1)完成采煤机总体方案设计。
(2)对截割部的传动及结构进行设计。
(3)设计完成截割部的组件图、零件图。
(4)编写完成设计计算说明书。
(5)翻译外文文献。
摘 要
设计中所介绍的采煤机截割部适用于倾角 的中厚偏薄煤层的开采。它传动方式为:电动机—摇臂—行星齿轮传动—滚筒。这种传动方式的电动机轴与滚筒轴平行,取消了容易损坏的锥齿轮,使传动更加简单。截割电机横向布置在摇臂上,摇臂和机身连接没有动力传递,取消了纵向布置结构中的螺旋伞齿轮和结构复杂的通轴。
该采煤机截割部主要由一个减速箱和四级齿轮传动组成,电动机输出的动力经由三级直齿圆拄齿轮和行星轮系传动,最后驱动滚筒旋转。截割部还采用四行星单浮动结构,减小了结构尺寸,采用大角度弯摇臂设计,加大了过煤空间,提高了装煤效果。
在采煤机截割部设计过程中,对各级传动齿轮、轴、轴承和联接用的花键等部件进行了设计计算、强度校核和选用。另在行星齿轮传动中,着重分析了四行星轮的结构设计。采煤机滚筒截齿的配置在本设计中也做了合理的分析和布置。对于摇臂调高液压系统,本设计另外选用电机驱动调高泵,其液压元件的选用也做了适当的说明和介绍。最后本设计对采煤机的使用和维护作了简要的说明。
关键词:截割部; 齿轮;行星轮系; 液压; 截齿配置
目 录
1 绪论 1
1.1 采煤机发展历史 1
1.1.1 国外采煤机的发展历史 1
1.1.2 国内采煤机的发展历史 1
1.2 电牵引采煤机的技术特点及趋势 4
1.2.1 电牵引采煤机的发展趋势 4
1.2.2 国内电牵引采煤机的技术特点及发展趋势 4
1.3 采煤机的类型及组成 5
1.3.1 采煤机的类型 5
1.3.2 采煤机的组成 6
2 采煤机的总体方案 7
2.1 采煤机总体方案 7
2.1.1 采煤机总体结构的确定 7
2.1.2 采煤机的适用范围 7
2.1.3 采煤机的主要技术参数 7
2.1.4 采煤机整机主要特点 8
2.2 截割部主要结构的确定 8
2.3 截割部电动机的选择 12
2.4 总传动比及传动比的分配 12
2.4.1 总传动比的确定 12
2.4.2 传动比的分配 13
3 截割部的设计及计算 14
3.1 各级传动的转速、功率、转矩 14
3.2 截割部齿轮的设计计算 15
3.2.1 齿轮1和齿轮2的设计计算 15
3.2.2 齿轮4和齿轮5的设计计算 19
3.2.3 齿轮6和齿轮7的设计计算 24
3.2.4 齿轮1至齿轮9的几何尺寸汇总表 28
3.3 截割部行星机构的设计计算 30
3.3.1 齿轮材料热处理工艺及制造工艺的选定 30
3.3.2 行星机构中主要参数的确定 30
3.3.3 行星机构中各齿轮几何尺寸的计算 33
3.3.4 啮合要素验算 34
3.3.5 齿轮强度验算 35
3.4 轴的设计及校核 43
3.4.1 截Ⅲ轴的设计与校核 43
3.4.2 行星齿轮轴的校核 50
3.5 轴承的寿命校核 51
3.5.1 截Ⅲ轴轴承寿命的计算 51
3.5.2 行星轮轴承寿命的计算 52
3.6 花键联接强度校核 52
3.6.1 截Ⅰ轴花键校核 52
3.6.2 截Ⅲ轴花键校核 53
3.6.3 截Ⅳ轴花键校核 54
3.6.4 太阳轮轴花键校核 54
3.7 滚筒截齿配置 55
3.7.1 滚筒宽度 55
3.7.2 螺旋叶片头数确定 55
3.7.3 螺旋升角的确定 56
3.7.4 截齿配置 57
3.7.5 滚筒截齿的选择 60
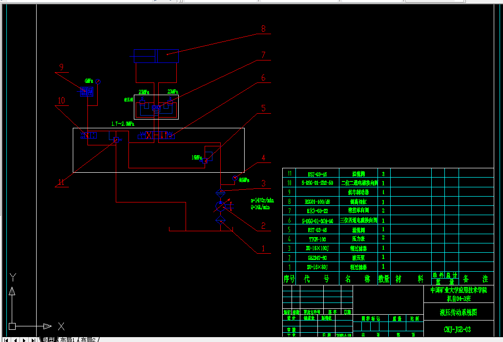
4 截割部液压系统 62
4.1 截割部液压系统 62
4.1.1 液压元件基本组成 62
4.1.2 摇臂调高油路工作原理 63
4.2 液压系统的安装及故障 65
4.2.1 液压系统的安装与维护 65
4.2.2 液压系统故障及其处理方法 66
4.3 截割部的润滑及密封 67
5 采煤机的使用和维护 68
5.1 润滑及注油 68
5.2 地面检查与试运转 69
5.3 下井及井下组装 69
5.4 采煤机的井下操作 70
5.5 机器的维护与检修 71
结 论 73
参考文献 74
英文原文 75
中文译文 86
致 谢 93
温馨提示:
1、题目前面的备注【字母数字编号】为本站整理分类的编号,与课题内容无关,请选题时忽视;
2、若题目上备注三维,则表示文件里包含三维源文件,由于三维组成零件数量较多,为保证预览截图的简洁性,本站将三维文件夹进行了打包。三维及CAD预览截图,均为本站电脑打开软件进行截图的,保证能够打开,下载原件超高清,下载后解压即可;
3、本站所有资源如无特殊说明,都需要本地电脑安装Office2007。图纸软件为AutoCAD,PROE,UG,SolidWorks,CATIA等;
4、本站所有图文资料仅供用户学习参考,不作为任何商用或其他用途;
5、本站不保证下载资源的准确性、安全性和完整性, 不包修改,不支持退换,同时也不承担用户因使用这些下载资源对自己和他人造成任何形式的伤害或损失;
6、 下载文件中如有侵权或不适当内容,请与我们联系,我们立即纠正。